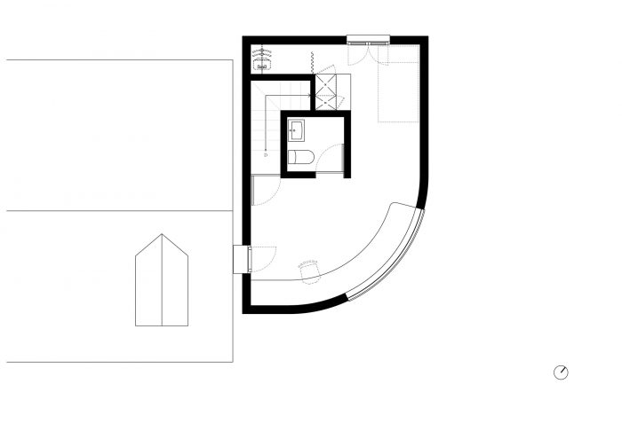
一个单独的森林住宅 - 一个农舍,面积为670平方米,坐落在一个陡峭的斜坡之上,距离通道的高度为60米。客户希望能有一栋房子和他的父母住在一起,这样他就可以搬到这个偏远、宁静的小镇。他找到我们,让我们在他父母拥有的地块范围内设计一栋新房子,他可以作为现有农舍的邻居单独居住。这个房子的特点是一楼有厨房和储藏空间,二楼有一个房间与现有的农舍相连。换句话说,他想把一楼作为一个开放、共享的空间,而把二楼作为一个私人空间。在客户与我们见面之前,他画了一张平面图,勾勒出安排和尺寸,还研究和汇编了与各种环保材料和设施有关的数据。
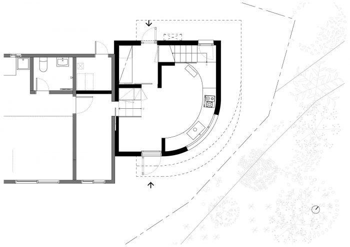
A Solo Forest Dwelling - A farmhouse, on a site of an area of 670m2, sits atop a steep slope at a height of 60m from the access road. The client wanted a house in which to live with his parents so he could move to this remote, tranquil town. He approached us to fulfill the design of a new house in which he might live alone as neighbour to the existing farmhouse, within the confines of the lot owned by his parents. This house had to feature a kitchen and storage space on the first floor, and a room that connected to the existing farming house on second floor. In other words, he wanted to use the first floor as an open, shared space, and the second floor as a private space. Before the client met us, he drew up a floor plan to sketch out the arrangement and size, also studying and compiling data to do with various eco-friendly materials and facilities.





通过研究这些发现,他与我们合作,构思了他所期望的建筑技术。最重要的是,我们为详细的图纸做出了贡献,制定了六个备选方案,与客户分享了一个模型和3D建模数据--尽管这是一个小房子,但我们知道,如果家具位置发生变化,我们只需要绘制新的平面图。根据规划的空间安排,我们开始在现有建筑的右侧为客户设计一个新的建筑。该建筑可以通过厨房和多功能厅与他父母的家相连。然而,这离地块的周边很近,而且由于外面的道路,第一层可用的面积只有20平方米,因此我们将第二层的1米设计成悬臂结构,以扩大空间,并制造了适应墙壁弧形造型的家具,以提高其实用性。在同一阶段,我们还开辟了在空间内看到全景的可能性。
By examining these findings, he conceived of his desired construction technique, in partnership with us. Most significantly, we contributed to the detailed drawings, developing six alternatives, sharing a model and 3D modeling data with the client – even though it is a small house, we were aware that we would only have to draw up new floor plans should the furniture position change. In light of the planned spatial arrangement, we set upon devising a new building for the client inside the right side of the existing building. The building could be connected to his parents’ home via the kitchen and multi-use room. However, this was close to the perimeter of the lot and because of the outside path the area available to the first floor was only 20m2, and so we designed 1m of the second floor as a cantilever structure to expand the space and manufactured furniture that adapted to the curved shaping of the walls to improve its practicality. At this same stage, we also opened up the possibility of a panoramic view within the space.

一个有问题的场地面临着一个建筑商的坚韧--因为这个房子位于山的中间,需要一个简单的建筑技术,我们很难选择合适的建筑公司。虽然建筑规模不大,但我们希望在首都找一家有实力的建筑公司,而不是当地的建筑公司。最后,通过熟人的介绍,我们认识了一个建筑公司的经理;即使在工程完成了很久之后,我们仍然非常感谢他。选择错误的建筑公司会导致糟糕的结果,即使设计得很好。施工持续了11个星期。由于地处山区,我们住在离施工现场很近的地方,并为每个施工阶段或过程请来了最好的技术人员。因此,所完成的细节都具有很高的质量。
A Problematic Site Faced with a Builder’s Tenacity - Because this house is located in the middle of the mountain, a simple construction technique was required and we had difficulty selecting the right construction company. Although the construction scale was small, we wanted a competent construction company in the capital rather than a local construction company. Finally, we met a manager of a construction company through the introduction of an acquaintance; we are still really grateful to him even after long the construction work has been completed. Selecting the wrong construction company can result in poor outcomes, even if a design is nicely worked out. Construction lasted eleven weeks. We stayed in lodgings close to the construction site, because of the mountainous location, and brought in the best technicians for each construction phase or process. As a result, the completed details were of a very high quality.




对于建筑的基础,我们用钢筋混凝土完成了地板,并在墙壁和屋顶上应用了轻质的木质框架系统。之后,屋顶用锌完成,外墙用monocouche完成,以使外墙的弧形表面更加整齐。在规划内部空间时,我们决定创造不同的氛围,因为一楼和二楼有不同的特点。在共用的厨房里,我们在一楼铺设了瓷片,使其便于客户清洁,而墙壁则用桦木装饰。沿着弧形墙的厨房家具是由桦木制成的,因此人们可以在水槽前凝视外面的风景。当你走上桦木墙面衬托的楼梯时,脱掉鞋子后,就会到达二楼的空间。这个空间是用硅藻土装修的,这是一种环保的材料。我们在各个方向的主要位置安装了窗户,这样居住者就可以在院子里或在远处的山上看到。
For the foundations of the building, we finished the floor using reinforced concrete and applied a light weight wood framing system to the walls and the roof. After that, the roof was finished with zinc and the outer walls were finished with monocouche to neaten up the curved surface of the outer walls. When planning the internal spaces, we decided to create different atmospheres, because the first floor and the second floor have different characteristics. In the shared kitchen we laid porcelain tiles on the first floor, making them easy for the client to clean, while the walls were finished with birch. The kitchen furniture along the curved wall is made of birch so people can gaze at the outside view in front of the sink. When you go up the stairs lined with the birch walls, after taking off your shoes, you reach the spaces on the second floor. This space was finished with diatomite, which is an eco-friendly material. We installed windows in primary positions in all directions so that the occupants can look down the yard or out over the distant mountains.

不朽景观中的森林住宅--这里位于山中的空地被山脉环绕,除了壮观的秋季红叶外,冬季的雪景也无比美丽。你可以在屋内看到周围的风景,享受在大自然中冥想的时刻。虽然它是一个单一的体量,但朝向周围柔和地盘绕的外墙似乎在扩张,并将自己卷入森林。相反,通过屋内的弧形玻璃看到的外部景观,使你凝视着森林的许多面孔。
A Forest Dwelling in a Monumental Landscape - The clearing here in the middle of the mountain is surrounded by the mountain range, and in addition to the spectacular fall foliage, the winter snowy scenes are incredibly beautiful. You can see the surrounding landscape from inside the house and enjoy moments of meditation in nature. Although it is a single volume, the outer walls that coil softly towards the surroundings seem to expand and draw themselves into the forest. On the contrary, the external view, seen through the curved glass inside the house, makes you gaze out into many faces of the forest.




















Architects: DRAWING WORKS
Area : 59 m²
Year : 2018
Photographs :Kim Jae-kyeong
Engineering : Eun Structural Engineering
Architect In Charge : Youngbae Kim
Design Team : Suah Hwang
City : Yeongdong-gun
Country : South Korea