Oranje城堡是Archohm与全球知名的荷兰建筑公司MVRDV合作的一个住房项目。该项目占地7英亩,位于勒克瑙即将开发的地区之一,就在Amar Shaheed路上,这是连接该市和机场的主要动脉。俯瞰贡提河的绿色缓冲区,Oranje城堡是一个独立的住房开发项目,其中共有437个单元,类型混合,从3BHK标准公寓到3&4BHK单元,带专属露台,以及带私人露台的豪华5BHK顶楼。
The Oranje castle is a housing project on which Archohm collaborated with the globally-renowned Dutch architectural firm MVRDV. The 7-acre site is situated in one of the upcoming areas of Lucknow, just off the Amar Shaheed path, which is the main artery connecting the city to its airport. Overlooking the Gomti River across its green buffer, the Oranje Castle is a self-contained housing development in which there is a total of 437 units with a mix of typologies from 3BHK standard apartments to 3 &4BHK units with exclusive terraces as well as luxurious 5BHK penthouses with private terraces.



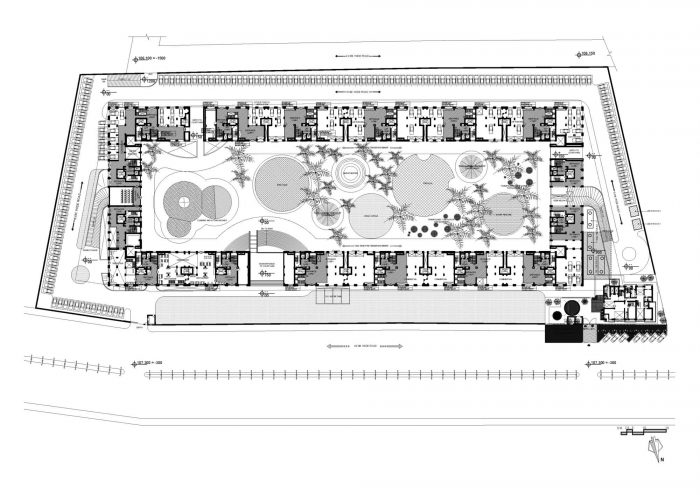
在概念上,该设计打破了塔楼的形态,即典型的塔楼被设计并印在整个场地上,很少考虑到方向、质量、变化或隐私。在奥兰治城堡,住宅单元沿外围以环形形式排列,围绕着一个大庭院,大小相当于两个足球场,确保每个公寓都有景观连接。中心的巨大庭院在两套公寓之间创造了最大的距离,邻居的窗户是最远的,从而使所有单元都有足够的隐私以及足够的自然光和通风。
Conceptually, the design breaks away from the tower morphology, where a typical tower is designed and stamped all over the site with little regard for orientation, massing, variation, or privacy. At the Oranje Castle, the dwelling units are arranged in a ring format along the periphery around a large courtyard, the size of two football fields, ensuring a landscape connection for each apartment. The massive courtyard in the center creates the maximum distance between two apartments in a manner that the window of the neighbor is the farthest possible, thus allowing enough privacy as well as adequate natural light and ventilation to all units.




标准的3BHK公寓占据了较低的7层,而带有专属露台的大型公寓则位于较高的楼层。建筑形式的体量在高层开始得到调节,以便为私人露台留出空间,从而打破了单调的轮廓。因此,没有两座塔是相同的。此外,所有位于不同楼层的露台都有花园,为项目提供了一个额外的绿色维度。起伏的天际线的趣味性延伸到了砖砌的外墙,外墙有两种阳台,一种是镂空的,另一种是从表面投射出来的,给住宅区带来了动态的大面积空隙的表达。
The standard 3BHK apartments occupy the lower seven floors, while the larger apartments with exclusive terraces are located on the higher floors. The massing of the built form begins to get modulated at the upper floors to make room for private terraces, thus, breaking the monotony in the silhouette. As a result, no two towers are identical. Further, all terraces, which are at different levels, feature gardens that render an additional green dimension to the project. The playfulness of the undulating skyline is extended onto the brick-clad facade which is punctuated with balconies that are of two kinds - hollowed out as well as projected from the surface, lending a dynamic mass-void expression to the housing complex.



这个项目的景观设计是由柏林的TOPOTEK 1公司完成的。中央庭院的概念来自于传统的印度花园,其特点是不拘一格地结合了活的动物、水喷泉和茂盛的遮阳植物。除此之外,印度传统纺织品设计的复杂几何图形和当代艺术家阿尼什-卡普尔(Anish Kapoor)令人回味的形式,构成了TOPOTEK1的Oranje城堡砖园的折衷灵感元素。
The landscape design for this project has been done by TOPOTEK 1, a Berlin-based firm. The concept for the central courtyard derives from the traditional Indian garden, which features an eclectic combination of live animals, water fountains, and lush shade-giving plants. Along with this, the complex geometries of traditional Indian textile design and the evocative forms of contemporary artist Anish Kapoor, form the eclectic elements of inspiration for TOPOTEK1’s Oranje Castle Brick Gardens.

砖块花园的项目包括三个类别。活动、体验和运动。活动包括院子里的游戏元素,而体验包括自然元素—鸟舍、池塘、草坪和凉棚,所有这些都点缀在砖块花园中。运动场被安置在沿着住房外部外围的绿色带中。相应地,新项目的形式也发生了变化,这在鸟笼的圆顶和游戏元素中很明显--大型雕塑砖圆顶、地板上由蹦床横跨的圆形开口和攀爬网。
The program of the Brick Gardens comprises three categories: Activity, Experience, and Sport. The activity consists of the play elements in the courtyard, while Experience consists of natural elements – an aviary, pond, lawn, and pergola, all punctuating the brick gardens. Sports pitches are accommodated in the green band running along the external periphery of the housing. Correspondingly exciting forms have evolved for the new programs, as is evident in the dome of the bird cage and in the play elements – large sculptural brick domes, circular openings in the floor spanned by trampolines, and climbing nets.




















































Architects: MVRDV, Studio Archohm
Area : 131602 m²
Year : 2022
Photographs :Noughts & Crosses LLP
Structural Consultants : Shekhar Design Centre
Mechanical Consultants : Consummate Engineering Services Pvt. Ltd.
Electrical Consultants : Consummate Engineering Services Pvt. Ltd.
Civil Consultants : Archohm Consults
Principal Architect : Sourabh Gupta
Design Team : Amit Sharma, Sanjay Rawat, Sukhmani Singh, Kriti Aggarwal, Prachi Saxena, Tejpal Singh
Clients : Suraj Infraventure Pvt. Ltd.
Landscape Consultants : Topotek1
Hvac Consultans : Armstrong Engineering Services
Plumbing Consultants : Consummate Engineering Services Pvt. Ltd.
Concept Architects : MVRDV
City : Lucknow
Country : India