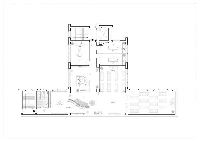
这个精品瑜伽馆的设计是基于流动的理念--一个在瑜伽练习中用来描述流动运动和冥想的术语。在这个空间里,这些想法通过空间之间的平滑过渡和大量使用可塑性强的材料(如织物和麻混凝土)体现出来。入口处是一个大的接待区,中央的办公桌可以作为一个临时的酒吧。一张可重新配置的沙发顺着大屏幕的柔和曲线作为空间的分隔物。一边是一个大的饮水机,提醒来访者洗手,而另一边则通向练习室。
The design of this boutique Yoga studio is based on the idea of flow - a term used in yoga practice to describe a sense of fluid movement and meditation. Within the space, these ideas manifest through smooth transitions between spaces and the extensive use of malleable materials such as fabrics and hempcrete. The entrance opens up onto a large reception area with a central desk doubling up as an occasional bar. A reconfigurable sofa follows the soft curve of a large screen acting as a space divider. On one side a large water fountain reminds visitors to wash their hands while the other side leads into the practice rooms.





这个精品瑜伽馆的设计是基于流动的理念--一个在瑜伽练习中用来描述流动运动和冥想的术语。在这个空间里,这些想法通过空间之间的平滑过渡和大量使用可塑性强的材料(如织物和麻混凝土)体现出来。入口处是一个大的接待区,中央的办公桌可以作为一个临时的酒吧。一张可重新配置的沙发顺着大屏幕的柔和曲线作为空间的分隔物。一边是一个大的饮水机,提醒来访者洗手,而另一边则通向练习室。
The color palette is muted, with a focus on materiality and texture created in collaboration with two emerging artists. The front desk and water fountain were created in collaboration with Yasmin Bawa, using a custom process of a hempcrete structure finished with pigmented lime plaster to create the surface textures. The large-scale privacy screen separating the lounge area from the changing rooms was painted by the young Viennese Artist Denise Rudolf Frank.


在全球大流行期间设计和建造的Original Feelings瑜伽馆是一个允许大量个人空间、通风和安全协议到位的空间。以限制条件为设计契机,我们的目标是创造一个能超越当前危机的空间,让瑜伽师和客人感到受欢迎并找到他们的流动。
Designed and built during the global pandemic, Original Feelings Yoga studio is a space that allows for plenty of personal space, ventilation, and safety protocols to be in place. Taking a constraint as a design opportunity our goal was to create a space that will last beyond the current crisis and allow for yogis and guests to feel welcome and find their flow.















Architects: Some Place Studio
Area : 300 m²
Year : 2020
Photographs :Linus Muellerschoen
Manufacturers : Backhausen, Bisley, Thyssen Group
City:Berlin
Country: GERMANY