位于圣地亚哥北部的一个住宅区,Orqe房子是对住宅建筑的传统准则进行了详尽的净化工作的结果。一个连续的皮肤,汇集了传统屋顶的抽象的形式属性,包裹着一个看起来很熟悉的内部。
Located in a residential neighborhood in the northern part of Santiago, the Orqe House is the result of an exhaustive exercise of purification of the traditional canons of residential architecture. A continuous skin that brings together the formal attributes of the abstraction of a traditional roof, envelops an interior that appears familiar.




每一块,每一个元素,每一个关系都在它被期望的地方,而当它涉及到居住时,房子就消失了,把它的主角让给它的居住者。
Each piece, each element, each relationship is where it is expected to be, and when it comes to inhabiting, the house disappears, yielding its protagonism to its dwellers.


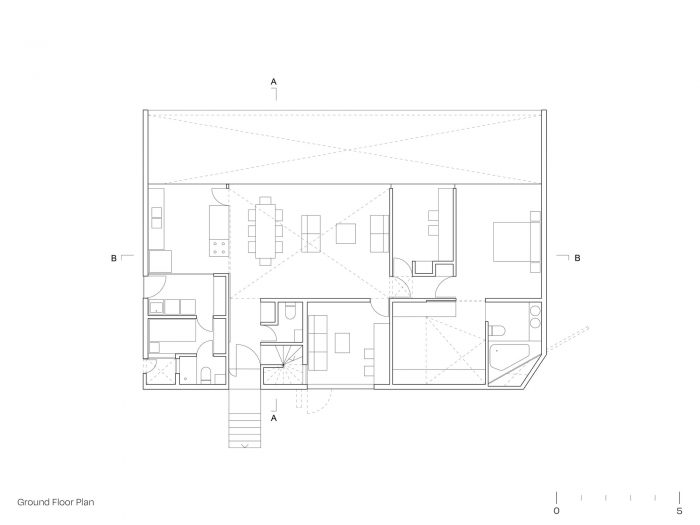
在不平坦的土地上,信封被埋在街道上,并向北开放,巩固了一个共同的地面,允许淡化房子内部和室外露台之间的限制,所有的公共空间都位于露台上。这个围护结构构成了整个房子,它被剥去了所有的物质借口,并以最原始的形式展示出来:完全由原木建成,放在一个纯混凝土地板上。
On uneven terrain, the envelope is buried towards the street and opens towards the north, consolidating a common ground that allows diluting the limits between the interior of the house and the outdoor terrace in front of which all the common spaces are located. This envelope, which makes up the entire house, is stripped of all material pretensions and is shown in its most primitive form: built entirely of raw wood and resting on a pure concrete floor.

















Architects: Iván Bravo Arquitectos
Area : 136 m²
Year : 2016
Photographs :Aryeh Kornfeld
Lead Architect : Iván Bravo
Collaborator : Elias Maturana
City : La Reina
Country : Chile