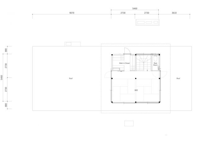
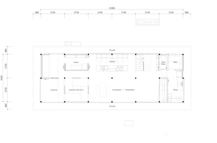
该场地位于山梨县山梨市的北部,被葡萄园包围,可以看到甲府盆地和富士山的全景。该建筑位于场地的一角,总面积为920平方米,包括470平方米的建筑面积和450平方米的葡萄园面积。这是一座两层的木制建筑,总面积为123平方米,建筑面积为92平方米。
The site is located in the northern part of Yamanashi City, Yamanashi Prefecture, surrounded by vineyards, with a panoramic view of the Kofu Basin and Mt.Fuji. This architecture is located in a corner of the site with a total area of 920m2, consisting of 470m2 of area for building and 450m2 of area for the vineyard. This is a two-storied wooden building with a total floor area of 123m2 and a building area of 92m2.





业主是一个四口之家,一对30岁的夫妇和两个3岁和1岁的孩子。建筑建成后,移交给了这个家庭,他们的生活也随之开始。这个建筑是一个可以随着家庭的成长而改变的容器。该建筑的规划是为了能够围绕灵活的配置而发展。
The owner is a family of four, a couple aged 30 and two children aged 3 and 1. After the construction, the building was handed over to the family, and their life began. This architecture is a vessel that can be changeable as the family grows. The building was planned to be able to develop around a flexible configuration.

平面图以2730毫米的网格为基础,整个结构由木柱和木梁组成。随着家庭生活周期的变化,房间的配置和物体的位置都可以改变。这种网格允许更新墙壁和配件。
The floor plan is based on a grid of 2,730mm, and the entire structure is made up of wooden columns and beams. As the life cycle of the family changes, the configuration of rooms and the location of objects can be changed. This grid allows for the renewal of walls and fittings.



虽然这在传统的日本建筑中很常见,但我认为这种结构非常适用于现代生活的变化和速度。建筑物的形状和外部的设计被设计得很简单,同时也没有忘记主要演员是居住在那里的家庭。建筑物的形状和外观设计很简单,牢记主要角色是住在那里的家庭,重视在那里发生的生活流。
Although this is common in traditional Japanese architecture, I think that this structure is very suitable for the changes and speed of modern life. The shape of the building and the design of the exterior is designed to be simple, without forgetting the fact that the main actors are the families living there. The design of the building's shape and exterior is simple, keeping in mind that it is the family that lives there that plays the main role, and valuing the flow of life that takes place there.














Architects: SAKUMAESHIMA
Area: 92 m²
Year: 2021
Photographs: Satoshi Shigeta
Manufacturers: IOC, Lonseal Corporation, Nagoya Mosaic-Tile
Constructor: Kubota Archtek
Architects:SAKUMAESHIMA
City:Yamanashi
Country:Japan