1954年,圣保罗市收到了后来成为其最著名的明信片之一的东西:伊比拉普埃拉公园。由奥斯卡-尼迈耶(Oscar Niemeyer)设计的这个城市公园,作为现代建筑的一个标志,已经成为该市最受欢迎的目的地之一,也是周围社区发展的中心。在这个地标创建68年后,全球工作室Perkins&Will用Oscar Ibirapuera更新了该地区的建筑参数,这是圣保罗高端市场上最令人印象深刻的住宅项目之一,可以永久看到城市最繁华的绿色区域。
In 1954, the city of São Paulo received what would become one of its most celebrated postcards: the Ibirapuera Park. Designed by Oscar Niemeyer, the urban park, an icon of modern architecture, has established itself as one of the most popular destinations in the city, as well as the epicenter of the development of the surrounding neighborhood. After 68 years of this landmark's creation, the global studio Perkins&Will updates the architectural parameters of the region with Oscar Ibirapuera, one of the most impressive residential projects in the high-end São Paulo market, with a permanent view of the city's most exuberant green area.


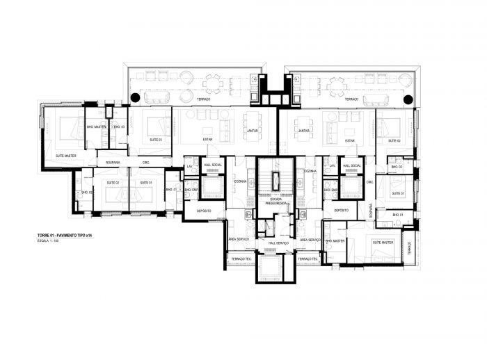
该项目由Trisul房地产公司建造,提供186平方米、227平方米或233平方米的公寓,有3或4间卧室和最多4间套房。Perkins&Will公司的设计总监Douglas Tolaine说:"这个平面图的构思是为了让客厅有9米长的无柱面,提供Ibirapuera公园的宽阔全景--这在这个城市是独一无二的"。
Built by Trisul Real Estate Company, the project offers apartments with 186 m2, 227 m2, or 233 m2, with 3 or 4 bedrooms and up to 4 suites. "The floor plan was conceived so that the living room could have 9 meters-facade free of pillars, providing a wide panoramic view of Ibirapuera Park – something unique in the city", says Douglas Tolaine, Design Director at Perkins&Will.


公共区域有一个双层高度的美食聚会室、带有20米泳道的室外和室内游泳池、日光浴室、干式和湿式桑拿、温泉、健身室、普拉提室、游乐场、游戏室和自行车架。公共区域的室内设计是由Fernanda Marques负责的,他负责提高空间的舒适性和流畅性感受。Benedito Abbud的景观设计因安装在阳台外墙上的垂直花园而引人注目,也因热带树种(如矮小的棕榈树)和本地树种(如亚当的肋骨)在底层的协调而引人注目。
The common areas have a gourmet party room with double height, outdoor and indoor pools with a 20-meter lane, a solarium, dry and wet saunas, a spa, a fitness room, a pilates room, a playground, a playroom, a game room, and a bike rack. The common area’s interior design is by Fernanda Marques, responsible for improving the comfort and fluidity feelings of the spaces. Benedito Abbud's landscaping stands out for the vertical gardens installed on the facades of the balconies, and also for the harmonization between tropical species, such as short-stature palm trees, and the native ones, such as Adam's rib, positioned on the ground floor.


当代现代主义。奥斯卡-伊比拉普埃拉美学的指导思想是重新解释被认为是巴西现代主义标志的元素,如仅由柱子支撑的屋顶、有机形状和外墙上的砖顶。贯穿公共区域的帐篷直接参考了尼迈耶设计的Ibirapuera公园的帐篷,距离该建筑15分钟路程。奥斯卡-伊比拉普埃拉还提供了一个宽敞的走道,其两侧完全开放,巩固了与环境的巨大融合。
Contemporary modernism. The Oscar Ibirapuera aesthetics is guided by reinterpretations of elements recognized as hallmarks of Brazilian modernism, such as roofs supported only by columns, organic shapes, and brise-soleil on the facades. The marquee that winds through the common areas is a direct reference to the magnificence of Ibirapuera Park's marquee designed by Niemeyer, located 15 minutes away from the building. Oscar Ibirapuera also offers a generous walkway fully open on its sides, consolidating a great integration into the environment.



在帐篷的设计中,在天窗中,以及在室外游泳池中,有机形状同样引人注目。圆润的边缘,天蓝色的涂层,以及与门廊的接近,都让人想起尼迈耶的杰作之一,卡诺亚之家的外观,受到国家遗产保护机构(Iphan)的保护。
Found in the design of the marquee, in the skylights, and also in the outdoor pool, the organic shapes are equally striking. The rounded edges, the sky blue-color of the coatings, and the proximity of the marquee all combined recall the exterior of one of Niemeyer's masterpieces, the Casa Canoa, protected by the National Heritage Preservation Agency (Iphan).



外墙上的可移动桥底由斜面木板制成,对现代主义中广泛使用的这一特征进行了现代的重新诠释,以保护室内免受阳光的照射,同时赋予建筑活力。木板作为墙面的装饰重新出现在底层,与宽大的白色金属格子形成对比,设计成几何图案,并强调了通道区域的节奏。
The movable brises-soleils present on the facades and made with beveled wood panels offer a contemporary reinterpretation of this feature widely used in modernism to protect the interiors from the incidence of sunlight while giving the building liveliness. The panels reappear on the ground floor as a finishing of the walls, contrasting with a wide white metallic lattice designed with a geometric pattern, and accentuating the rhythm of the passage areas.





空间创造的准确性使该项目能够唤醒人们的感觉,同时激发出永久性。通过这种方式,奥斯卡-伊比拉普埃拉调和了高端项目所要求的创新和城市性,同时邀请人们在最大和最美丽的城市绿地中进行沉浸式体验,为其居民提供必要的宁静来平衡他们的日常工作。以建筑传统为出发点,奥斯卡-伊比拉普埃拉将当代性转化为常年性和长期性的发展,与环绕它的公园走着同样的道路。
The accuracy in the creation of spaces allows the project to awaken sensations while instigating permanence. In this way, Oscar Ibirapuera reconciles the innovation and urbanity that high-end projects demand while inviting an immersive experience in the largest and most beautiful city’s green area, providing its residents with the necessary serenity to balance their daily tasks. With architectural traditions as its starting point, Oscar Ibirapuera translates contemporaneity in order to evolve perennial and long-lived, following the same path as the park that surrounds it.

























Architects: Perkins&Will
Area : 25022 m²
Year : 2022
Photographs :Leonardo Finotti
Lead Architect : Douglas Tolaine
Engineering : Trisul
Landscape : Benedito Abbud
Project Management : Renata Marques
Structure : França e Associados
Metalic : Beltec
Electrical And Hydraulic Installations : SPHE
Mechanical Installations : Willem Scheepmaker & Associados
Seals : Addor
Interiors : Fernanda Marques
Foundations : Apoio
Lighting : Castilha Iluminação
Acoustic : Giner
Automation : Studiolo Engenharia
Waterproofing : PROASSP
Project Team : Douglas Tolaine, Fernando Vidal, Lara Kaiser, Adriana Barbosa, Silvia Seabra, Thiago Scandolara, Leticia Ferolla, Cesar Ramos, Paul Bringold, Fernando Afonso, Fátima Oliveira, Rodrigo Gianoni, Guilherme Ramalho
Collaborator : P&S Consultores
City : Ibirapuera
Country : Brazil