设计理念。该建筑与现有建筑保持了一定的距离。光线照射量,与景观的视觉关系,以及现有组织和新体量之间的巨大空隙都经过深思熟虑的规划。
Design concept. The building is located at a respectful distance from the existing buildings. The amount of light exposure, the visual relationships to the landscape, and the generous voids between existing tissue and new volume have been thoughtfully planned.



在高度和体积方面,该建筑对其周围环境的反应是通过尊重地下沉和上升来对应给定的路线,塑造其外观和方向与给定位置的理想关系。通过动态地向前倾斜,体量正式包围了前院,在城市广场上明显获得了一个突出的角色,并象征性地向客人鞠躬。
In terms of height and volume, the building reacts to its immediate surroundings by respectfully sinking and rising in correspondence to given alignments, shaping its appearance and orientation in an ideal relationship to the given location. By dynamically leaning forward, the volume formally encloses the forecourt, gaining clearly a prominent role within the town square and symbolically bowing to the guests.



前院和底层采用同质的铺装材料,有意模糊了室外和室内的界限,作为对客人的一种邀请姿态。在底层西侧有一个玻璃门面,外墙呼应了这种开放的态度,它的木质外壳像一个张开的嘴,朝着广场和河流。
One homogeneous paving material for the forecourt and ground floor blurs intentionally the boundaries between outdoor and indoor, as an inviting gesture to the guests. With a glazed front on the ground floor westside, the façade echoes this open attitude, lifting its wooden shell like an open mouth towards the square and the river.


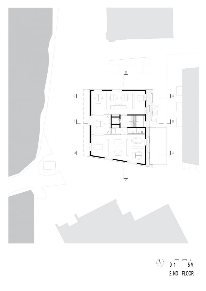
由于其形式上的自由,广场可以灵活地重新组织各种活动,而室内互动展览则展示了附近的自然环境及其未开发的潜力。建筑内部围绕着一个中央分配核心组织,有一个开放的楼梯和一个电梯穿透内部空间。地下汽车通道由邻近酒店的车库提供。
The square can be flexibly reorganized for various events thanks to its formal freedom, while indoor interactive exhibitions present the natural surroundings nearby and their unexplored potential. The building interiors are organized around a central distribution core, with an open staircase and an elevator piercing the interior spaces. Underground car access is provided by the garage of the adjacent hotel.


在高层,灵活的分布安排、落地家具和玻璃隔断清楚地界定了工作小组和主题区域,可随时重新安排。构造性元素也使任何功能区的自由分布和多功能解决方案在任何成果期都能实现。作为顶层的一个特点,一个倾斜的屋顶产生了一个宽敞的空间,而一个超大的玻璃框架在自然环境、建筑和用户之间创造了一个非凡的相互作用。
On the upper floors, flexible distribution arrangements, floor-to-ceiling furniture, and glass partitions clearly define working groups and thematic areas, rearrangeable anytime. Constructive elements enable as well free distribution and versatile solutions for any functional area, over any fruition period. As a particular feature on the top floor, a sloping roof generates a generous space, while an oversized glass frame creates an extraordinary interplay between natural surroundings, buildings, and users.



建筑。我们选择采用木质结构元素,使得施工时间很短,这也是我们对自然的承诺的一个明显标志。材料可以在当地生产并迅速交付。执行程序保证了低能耗标准的实施,从而保证了能源优化的建筑。地下室是用防水钢筋混凝土建造的。地下车库的设计是为了满足最大容量的使用,并通过增加停车位的数量来进一步实现。
Construction. Our choice to employ structural wooden elements enabled short construction times and it’s a clear sign of our commitment to nature. Materials could be locally produced and quickly delivered. The execution procedures guaranteed the implementation of low-energetic standards and thus an energy-optimized building. The basement was built in waterproof reinforced concrete. The underground garage has been designed to fulfill a maximum capacity usage, further implemented by an additional number of parking places.




材料。在选择地区材料时,明确参考了周围的景观。通过巧妙的安排和组合,该建筑具有现代的、诚实的特征,并强烈参考了传统的工艺。
Materiality. Regional materials have been chosen with a clear reference to the surrounding landscape. Through skillful arrangements and combinations, the building got a modern, honest character with a strong reference to traditional craftsmanship.


宽敞的底层,高科技的信息点和克制的线性设计,体现了厄兹塔尔旅游的前瞻性战略。外表采用预制灰色落叶松木瓦,全高木窗,以及底层的开放式玻璃幕墙,创造了一个独特的整体形象,超越了周围的建筑。
The spacious ground floor, with its high-tech information point and a restrained linear design, reflects the forward-looking strategy of Ötztal Tourism. The outer skin clad in pre-grey larch shingles, full-height-wooden windows, and the open glass façade on the ground floor created a distinctive overall image, outgrowing the surrounding buildings.












Architects: Obermoser + partner architekten
Area : 15985 ft²
Year : 2021
Photographs :Christian Flatscher
Manufacturers : AutoDesk, Nocker, Tip Top Fenster, Tischlerei Riml, Zimmerei Thurner
Structure Engineers : ZSZ Ingenieure ZT GmbH
Electric Engineers : Eidelpes Ingenieurbüro für Elektrotechnik
Acoustic Consultants : FIBY ZT-GmbH
Architecture Project Leader Design : Johann Obermoser
Architecture Project Leader Execution Phase : Christoph Neuner
Architecture Team : Felix Fehr, Sandra Seeber, Andreas Norz
Program / Use / Building Function : Public information center and offices
City : Sölden
Country : Austria