Outdoor Arts Element之家博物馆是一个结构性绝缘板(SIPS)模块建筑,通过整合被动系统和现场能源发电,设计为独立于公共设施运行。这座房子作为星轴的招待所和游客中心,星轴是艺术家查尔斯-罗斯在新墨西哥州的一个附近的土地艺术项目。
The Museum of Outdoor Arts Element House is a structural insulated panel (SIPS) modular building designed to operate independently of public utilities by integrating passive systems and on-site energy-generation. The house functions as a guest house and visitor center for Star Axis, a nearby land art project by the artist Charles Ross in New Mexico.



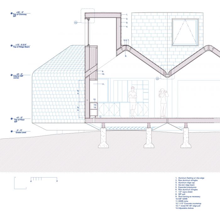
使用简单的可持续建筑实践来提高环境性能,一切都被剥离到基本组件。房子的组织是基于一个扩展的几何增长系统,向外辐射和聚集,一个又一个模块。一个分散的太阳能烟囱体量的领域取代了传统的家庭炉灶的固体质量。
Using simple sustainable building practices to increase environmental performance, everything is stripped down to basic components. The organization of the house is based on an expansive geometric system of growth, radiating and aggregating outward, one module after another. A decentralized field of solar chimney volumes replaces the traditional solid mass of the domestic hearth.


由户外艺术博物馆委托建造,作为 "星轴 "的招待所,"星轴 "是查尔斯-罗斯创造的11层楼的雕塑观测站。
Commissioned and built by the Museum of Outdoor Arts as the guest house for Star Axis an eleven-story sculptural observatory created by Charles Ross.



















Architects: MOS Architects
Area: 1500 ft²
Year: 2014
Photographs: Florian Holzherr
Structural Engineer: Edward Stanley Engineers
Design Team:Michael Meredith, Hilary Sample, Ashley Bigham, Jason Bond, Ryan Culligan, Gideon Danilowitz, Michael Fa-ciejew, Steven Gertner, Jason Kim, Kera Lagios, Ryan Ludwig, Gabrielle Marcoux, Meredith McDaniel, Elijah Porter, Michael Smith, Mathew Staudt, Marrikka Trotter
Climate Engineer:Paul Stoller
City:Anton Chico
Country:United States