Overcast House是伦敦北部一栋维多利亚式房屋的单层后部扩建,创造了一个灵活的底层空间,在重新配置房屋的同时,也让它成为生活的家。
Overcast House is a single-storey rear extension to a Victorian house in north London, creating a flexible ground floor space that accommodates working-from-home while reconfiguring the house to make it a home for life.



项目的名字表达了将间接光引入空间的核心策略,并参考了 "阴影捕捉者 "的外部皮肤--即使在没有阳光直射的情况下,也能在后立面模拟阴影的着色浇铸混凝土块。
The project name speaks of a central strategy to bring indirect light into space and references the ‘shadow catcher’ external skin – pigmented cast concrete blocks that model shadows on the rear façade even in the absence of direct sun.


房子的主人--日本个人色彩顾问和平面设计师Keiko Cummings和她的丈夫Alan是一名学者--指定Office S&M扩大他们一楼的厨房,使其适合作为咨询空间使用。客户对色彩和光线的浓厚兴趣使建筑师和客户进行了有益的对话、实验和探索。
The house owners – Keiko Cummings, a Japanese personal colour consultant and graphic designer, and her husband, Alan, an academic – appointed Office S&M to enlarge their ground floor kitchen and make it suitable for use as a consultation space. The client’s passionate interest in colour and light made for a rewarding process of dialogue, experimentation and discovery for architect and client.

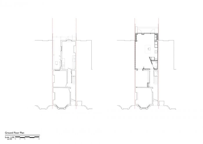
该项目将Keiko的工作室空间进行了搬迁,该空间原位于房子的前部,朝南。不断变化的阳光和阴影使她在与客户见面时很难保持色彩的一致性。
The project relocates Keiko’s studio space, which was formerly in the front of the house with a south-facing aspect. Changing sunlight and shadows made it hard to maintain colour consistency when she met her clients.

对新空间的一个主要要求是恒定、均匀的光线--这是业主进行色彩分析的必要条件。要求一个光线充足的空间,避免阳光直射,这是一个不寻常的挑战。狭窄的房子还需要容纳一张可容纳10人的咨询桌,以及一个底层的淋浴间,以保证未来的住宅。
A primary requirement for the new space was constant, even light – conditions necessary for the owner to undertake colour analysis for her work. The brief for a well-lit space that would be shielded from direct sunlight was an unusual challenge. The narrow house also needed to accommodate a table seating 10 people for consultations and a ground floor shower to futureproof the home.

建筑师的对策是在新的扩建部分利用北面的光线。精心塑造的屋顶灯为窗户遮挡了阳光的直射,而平面上更深的平屋顶灯则被现有的房子保护起来。这种锯齿形屋顶灯更多地被用于艺术馆和旧工厂,而不是住宅,它让全天均匀的北光进入,而不是直接的阳光,因为阳光会急剧改变颜色。这种安排使建筑师能够仔细控制室内的照明条件。
The architects’ response has been to make use of north light in the new extension. Carefully shaped rooflights shield the windows from direct sun, while a flat rooflight deeper in plan is protected by the existing house. These sawtooth rooflights are more commonly used in art galleries and old factories than homes, letting in even north light throughout the day, rather than direct sunlight which changes colour drastically. The arrangement allowed the architects to carefully control the lighting conditions inside.

从大厅入口到咨询空间的路线是一个关键的考虑因素。它的设计使日常生活的痕迹(淋浴间、厕所和厨房橱柜)可以被隐藏起来;当客户参加咨询时,他们进入了一个宁静的工作室空间。地板的对角线方向吸引客人进入空间,卫生间墙面的锐角--这是一种节省空间的策略--与截面上的屋顶灯的角度形状相呼应。
The route from the hall entrance to the consultation space was a key consideration. It has been designed so that the signs of everyday life (shower room, toilet and kitchen cupboards) can be concealed from view; when clients attend consultations, they enter a serene studio space. The diagonal orientation of floor planks draws guests into the space, and the sharp angle of the toilet wall – a space saving strategy – echoes the angular shape of the rooflights in section.

在室内,金箔均匀并温暖了北光和进光,它与 "潮流 "色彩的调色板相结合。新薄荷色(2020年潘通色)被用来柔化钢梁的工业质感,现在它的功能是展示维多利亚时代的玻璃器皿系列;而千禧粉色(2018年潘通色)瓷砖的色块则在视觉上扩大了小浴室。
Inside, gold leaf evens out and warms up the north light and incoming light, and it is combined with a palette of ‘trending’ colours. Neo-Mint (Pantone colour of 2020) is used to soften the industrial quality of the steel beams, which now function as a display for a Victorian glassware collection; and colour blocking in tiles of Millennial Pink (Pantone colour of 2018) visually enlarges the small bathroom.

通过探索性的色彩选择,形成了一个有效的工作空间、宽阔的厨房和一个新的娱乐空间;所有这些都在柔和的无影灯下熠熠生辉。该项目在Covid-19大流行期间完成,并容纳了各种活动,包括瑜伽等日常仪式,有效地展示了其适应性。
An exploratory colour selection has resulted in an effective workspace, expansive kitchen and a new convivial space for entertaining; all glowing with gentle shadowless light. The project was completed during the Covid-19 pandemic and has accommodated a variety of activities, including daily rituals like yoga, effectively demonstrating its adaptability.














建筑师:Office S&M
面积:114平方米
年份:2020年
摄影:Megan Taylor
厂商:Buster and Punch, Fired Earth, Inopera, Toto, Velfac, DIY Kitchens, Molts Lighting, Switch
项目建筑师:Hugh McEwen
设计团队:Hugh McEwen, Catrina Stewart, Beth Bird
家私製造商:Ylber Gashi, YG Builders Ltd
混凝土砖:Mortise Concrete
现场工程:Stephen Foster Foster Structures
总包方:Ylber Gashi YG Builders Ltd
建筑控制:Butler and Young
工料测量师:SJB Projects
城市:伦敦
国家:英国
Architects: Office S&M
Area: 114 m²
Year: 2020
Photographs: Megan Taylor
Manufacturers: Buster and Punch, Fired Earth, Inopera, Toto, Velfac, DIY Kitchens, Molts Lighting, Switch
Project Architect:Hugh McEwen
Design Team:Hugh McEwen, Catrina Stewart, Beth Bird
Furniture Builder:Ylber Gashi, YG Builders Ltd
Concrete Blocks:Mortise Concrete
Site Engineering:Stephen Foster Foster Structures
Main Contractor::Ylber Gashi YG Builders Ltd
Building Control:Butler and Young
Quantity Surveyor::SJB Projects
City:London
Country:United Kingdom