这是为来自纽约的时尚品牌OVERCOAT的日本基地做的项目。工作室被要求将纽约的基地与支持该品牌产品的日本基地连接起来,同时在那里设立第一家直接管理的商店。
This is the project for the Japan base of OVERCOAT, a fashion brand from New York. The studio was required to connect the base in New York with the base in Japan that supports the brand’s products, and also to have the first directly managed store there.




该品牌的设计师Ryuhei Oomaru先生是一位备受赞誉的图案制作者,他为纽约和国外的顶级品牌提供咨询服务,将其设计具体化。我想,能够窥视一个对服装制作如此重视的品牌的现场,对顾客来说将是一种无与伦比的体验。因此,我决定不创造一个商业印象,而是要创造一个即兴的空间,充分利用现有的空间。
The brand’s designer, Mr. Ryuhei Oomaru, is a highly regarded pattern maker who provides consulting services to top brands in New York and abroad to materialize their designs. I thought that being able to peek into the site of a brand that takes clothes-making so important would be an unparalleled experience for customers. Therefore, I decided not to create a commercial impression, but to create an improvisational space that makes the most of the existing one.


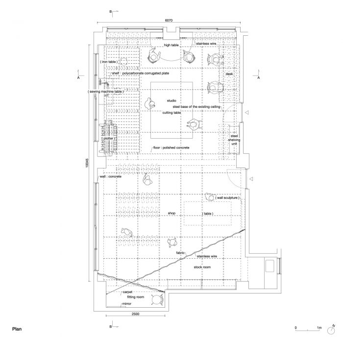
首先,现有天花板的钢基被用高强度的连接五金件加固,并重新使用。它在功能上可以作为悬挂存货和样品的地方,作为悬挂衣架杆的地方,以及作为放置织物的波纹板的地方。室内被抛光,以利用现有混凝土框架的纹理,而不安装新的地板、墙壁和天花板。库存室和试衣间被框架之间串起的电线和挂在上面的织物隔开。
Firstly, the steel base of the existing ceiling was reinforced with high-strength joint hardware and reused. It can be used functionally as a place to hang stock and samples, as a hanging place for hanger bars, and as a place-to-place corrugated plate to hold fabrics. The interior was polished to take advantage of the texture of the existing concrete frame without installing new floors, walls, and ceilings. The stock room and the fitting room are partitioned off by wires strung between the frames and fabrics hung from them.



灵感来自于衣服的制作方式,即通过捏住织物来产生褶皱,双夹子被用于挂钩。裁剪台的两侧有铝制的角钢导轨,可以将现成的集装箱箱体单独拿进去和拿出来,使它们看起来很有特色,同时在功能上可以容纳大量的辅助材料。
Inspired by the way clothes are made by pinching fabric to create folds, double clips were used for the hooks. The sides of the cutting table have aluminum angle guides that allow ready-made container boxes to be taken in and out individually, making them look distinctive while functionally containing a large number of secondary materials.


在这里,顾客可以 “参观工作室,直接听取创作者的意见,并购买衣服。我们的目标是创造一个让人们能够透明地、无界限地感受品牌的地方。
Here, customers can “visit the studio, hear directly from the creator, and buy clothes. We aimed to create a place where people can feel the brand transparently and without boundaries.














Architects: Atelier Write
Area: 75 m²
Year: 2023
Photographs:Kenta Hasegawa
Manufacturers: ENDO Lighting Corporation, ITC, Ishinomaki Laboratory, Karimoku New Standard, Kvadrat, Magis, Negurosu Denko, SANKO METAL INDUSTRIAL CO.LTD
Construction: Mitsui Takaaki
Architect: Takuya Sakamoto
Furniture Fabrication: HAND
City: Minato City
Country: Japan