一个有生命力的地方,与自然结合在一起。在日本长野市建立了一个新的工厂、咖啡馆和直销店,作为历史悠久的烧饼店 "Iroha-do "的新发展。
A place with a life force that unites with nature. A new factory, cafe, and direct sales store were built in the city of Nagano City, Japan as a new development of the long-established Oyaki shop ``Iroha-do''.




"烧饼 "是一种使用蔬菜和小麦的烤制 "食品",自日本绳文时代以来就扎根于'信州'地区,这个建筑也旨在成为一个在数万年的长轴上 "诞生并回归大地的建筑 "的地方--使用县内生产的木材和建筑工地的剩余土壤。
"Oyaki" is a baked "food" using vegetables and wheat that has been rooted in the region 'Shinshu' since the Jomon period in Japan, and this architecture also aims to be a place where "the architecture that was born and returns to the earth" over a long time axis of tens of thousands of years—using lumber produced in the prefecture and surplus soil from construction sites.



对于这个概念,我们专注于1。大地的记忆。/ 2. 2. 当地的天然材料和传统技术。3. 制作过程:与设计和施工合作。4. 大地的升华。一个与地球相连的地方。5. 作为生命的有机体的运动:创造、变化、成长和循环。
For the concept, we focused on 1. Memories of the earth. / Genius loci 2. Local natural materials and traditional techniques. 3. Making process: collaboration with design and construction. 4. Uplift of the earth. A place connected to the earth. 5. Movement as a Life-living organism: creation, change, growth, and circulation.


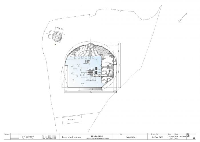
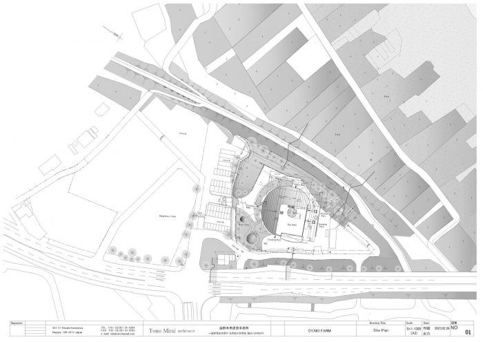
代表工厂/地区和咖啡馆/社会的两个圆圈重叠交错,而弧形的屋顶与周围的山脉产生共鸣,是为了满足日本的初级能源消耗标准而建造的。整个建筑是一个1500平方米的半防火木制建筑,结构材料为雪松和柏树。北面是玻璃幕墙,最大长度为7米的雪松鼓形支柱。
The two circles representing the factory/region and the cafe/society overlap and interlock, while the arc-shaped roof resonates with the surrounding mountains built to meet primary energy consumption standards in Japan. The entire building is a 1,500m2 semi-fire-resistant wooden building with structural materials of cedar and cypress. The north side is a glass curtain wall with cedar drum pillars with a maximum length of 7m.


在辐射状的柏木梁上的雪松梁和檩条,一根椽子,以及屋檐悬空3米的屋顶是由当地木匠手工雕刻的,没有使用手杖。它是用日本传统工艺方法在转角屋顶上做的扇形椽子。夯土墙的顶灯,自然通风的大厅高侧窗,以及从屋顶落下的雨水,都在用这种建筑和景观连接着天空和大地,减少二氧化碳,使地球再生。
The Cedar beams and purlin on top of the radiating cypress beams, a rafter, and a roof with a 3m overhang of the eaves were hand-carved by a local carpenter without the use of a cane. It is done with the Japanese traditional craftsmanship method of fan rafters in the corner roof. Toplights of the rammed earth wall, natural ventilation high side window of the hall, and falling rainwater from the roof are connecting the sky and earth with this architecture and landscape, reducing CO2 and regenerating the earth.








Architects: Tono Mirai Architects
Area: 1415 m²
Year: 2022
Photographs:takeshi noguchi
Lead Architect: Tono Mirai
Structural Design: Kishinoue Structural Office, Daisuke Kishinoue
Construction: Terashima Construction Company, KYOEI LUMBER Incorporated
Landscape: Miumi
Owner: Irohado Ltd.
Freezer System Construction: Moriya Corp.
City: Nagano
Country: Japan