背景一 地点
OZ 3459是一栋有七个住房单元的公寓楼,位于布宜诺斯艾利斯市的一个住宅区--萨维德拉社区。它位于一个不寻常的城市街区的一条小巷里,高度受到r2bi分区法规的限制,这个8.66米x18.00米的小区域给了我们在整个土地面积上放置建筑的可能性。
该建筑在前后立面上融入了邻里的尺度,将庭院与邻里的边界连接起来,并在顶层产生一个后退。建筑设计比分区法规允许的楼层少一层。该项目采用了布宜诺斯艾利斯许多传统社区特有的庭院建筑模式。
Context I Location
OZ 3459 is a condo building with seven housing units located in the Saavedra neighborhood, a residential area in the city of Buenos Aires. Located in an unusual city block on an alley, with height limitations set by the r2bi zoning code, this small area of 8.66 m x 18.00 m gives us the possibility of placing a building on the entire land area.
The building incorporates the scale of the neighborhood on the front and back facades, joining the courtyards with the neighboring boundaries, and producing a setback on the top floors. Construction is designed with one floor less than allowed by the zoning code. The project takes the pattern of the architecture of courtyards, characteristic in many of the traditional neighborhoods of Buenos Aires.


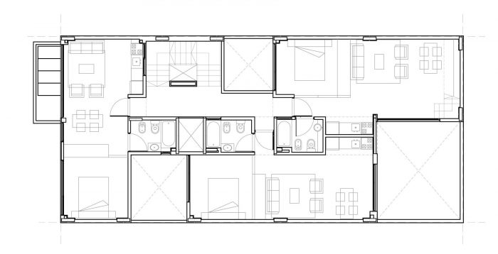
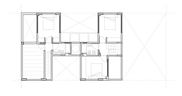
配置上的一致性
该项目分为四层,有一个庭院系统和一个中央服务区,私人和半公共空间围绕它布置。这种建筑体量与连续的庭院的衔接允许创建交叉通风的空间,在一天中的不同时间捕获自然光。
一二层的单元是单间公寓,有可能被分割或作为一个单一的空间工作,因为它们可以作为办公室使用。在二楼,布置了两个复式单位,它们在顶层向后退去,产生了露台。
ConfigurationI Consistency
The program is organized into four stories, with a system of courtyards and a central service block, with the private and semi-public spaces laid out around it. This articulation of the building volume with the succession of courtyards allows for the creation of spaces with cross ventilation, which capture natural light at different times of day.
The units on the first two floors are studio apartments, with the possibility of being divided or working as a single space, since they can be used as an office. On the second floor, two duplex units are laid out, which are set back on the top floor to generate terraces.


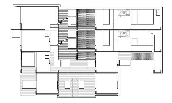
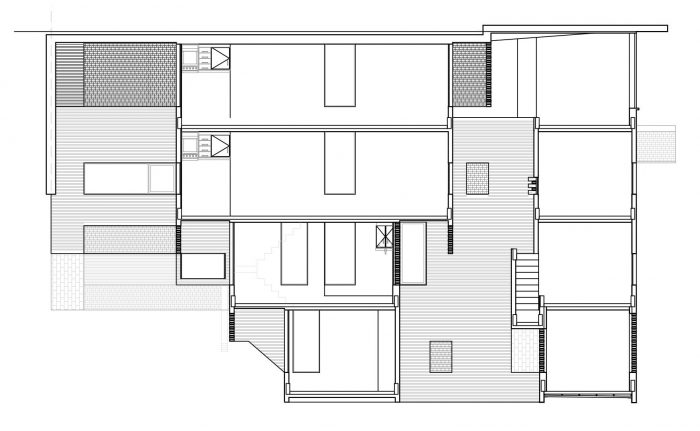
构造一 材料
该结构由钢筋混凝土组成,外墙用普通砖建造。砖以不同的方式排列,以覆盖地板、墙壁和天花板,以及实现不同程度的隐私、亮度和不透明度。与砖的红色形成对比的是,室内用灰色和白色的中性材料进行装饰。
材料的渗透性和光线的入射性在一天中改变了建筑及其周围环境的空间质量。
Tectonics I Materiality
The structure is comprised of reinforced concrete, and the exterior envelope was built with common brick. The brick was arranged in different ways both to clad floors, walls and ceilings, as well as to achieve different levels of privacy, brightness and opacity. Contrasting the reddish color of the brick, interiors were finished with neutral materials, in gray and white colors.
The permeability of the material and the incidence of light change the spatial qualities of the building and its surroundings throughout the day.

建议一 结果
在建筑的体积配置和材料决议之间寻求一致性,因为空间的布局允许有庭院的空间,它类似于存在于砖块图案中的光线入口。
该提案提出的另一个挑战是,在不影响空间质量的情况下,在一个小区域内设计特定的住宅密度。该建筑设法在一个城市街区衔接私人和半公共的空间,室内和室外。
Proposals I Results
There is a search for coherence between the volumetric configuration of the building and its material resolution, because the layout of the spaces allow room for courtyards, which resemble light entries that exist in brick patterns.
Another challenge raised by the proposal was to design for a specific residential density in a small area, without compromising spatial quality. The building manages to articulate private and semi-public spaces, indoor and outdoor, in an urban neighborhood.























Architects: arqtipo, estudiotrama
Year : 2013
Photographs :Federico Kulekdjian
Structures : Pablo Lulkin
Construction : arqtrama S.R.L
Land Area : 162 m2 – 8,66 m x 18,70 m
Project Architects : Diego Aceto, Dario Litvinoff, Diego Lorenzo, Matías Tozzini
Collaborators : Paola Castelnuovo, Cecilia Gimenez, Lucas Gorroño
City : Olavarría
Country : Argentina