这个整体改革项目产生于对如何从性别角度和情感设计上使当代住房更加灵活的调查。位于马德里标志性的拉瓦皮埃斯区的有三间小卧室的1960年代的住宅不适应其新居民的生活方式。
This integral reform project arises from an investigation on how to make contemporary housing more flexible from a gender perspective and from the emotional design. The 1960s house with three small bedrooms located in the emblematic neighborhood of Lavapiés in Madrid, does not adapt to the way of living of its new inhabitant.




生活即表演。该项目产生于对灵活的空间性的寻求,它引起了与新主人的爱好有关的变化行为的场景:绘画工作室、工作室、电影院或15人的品酒会。住宅的基本部分是两个双胞胎立方体--潮湿区域的容器--它们反过来解决了房子里的所有装置。色彩的重要性是非常存在的,因为它是一个家庭--展览空间。灵感来自维姆-文德斯(Wim Wenders)的《德克萨斯的巴黎》(Paris, Texas)的氛围;图像作为一个即将到来但同时又无法实现的真相的调解人。
Life as performance. The project arises from the search for a flexible spatiality that gives rise to scenarios of changing acts in relation to the hobbies of its new owner: painting workshop, studio, cinema or tastings for fifteen. The fundamental piece of the house are two twin cubes - containers for the wet areas - which in turn resolve all the installations of the house. The importance of color is very present as it is an exhibition space. Inspired by the atmosphere of Wim Wenders' Paris, Texas; the image acts as a mediator of an imminent, but at the same time unattainable truth.

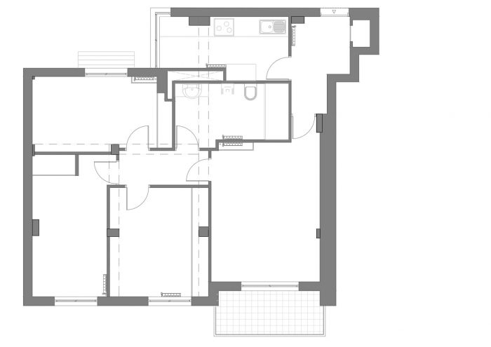
新方案旨在将厨房的社交区域与生活空间联系起来,使烹饪的功能更加灵活和公开;始终寻求打破分配预定活动和空间的角色。卫生间像法国或日本的住宅一样被分割开来,将厕所与一个亲密的空间分开,现在沐浴在色彩之中。浴室反过来成为一个洗衣房,容纳了淋浴--浴缸--脏衣服和干净衣服的循环,使每个人都成为这个过程的一部分。
The new program aims to link the social areas of the kitchen to the living space, making the functions of cooking more flexible and public; always seeking to break the roles that assign predefined activities and spaces. The bathrooms are fragmented as in French or Japanese homes, separating the toilet from a space of intimacy; now bathed in color. The bathroom, in turn, becomes a laundry room, housing the cycle of shower - bathtub - dirty clothes and clean clothes - making everyone part of the process.

花蜜汁+水蓝+印度黄是用于开发过程和主持行动的主要颜色。房子的其余部分是一个中性的集装箱装备,结构紧凑。梅利松地板是原始住宅的唯一痕迹,其布局显示了房屋的原始分布。
Nectar Juice + Acqua Blue + Indian Yellow are the main colors used to develop processes and host actions. The rest of the house is a neutral container equipped and compact. The Meli Pine floor is the only trace of the original house, whose layout reveals the original distribution of the house.

这项委托从史密斯夫妇的建筑思想出发,以回应从一开始就有序地控制所有日常存在的物品和财物的需要,以及实现不乱的生活空间的想法。
The commission starts from the Smithsons' architectural thought of responding to the need to control from the beginning in an orderly manner all the objects and belongings that daily existence brings along with the idea of achieving an uncluttered living space.

无论是移动的办公桌,还是使房间独立的波纹玻璃和锻铁的三层门,以及陈列栏上漂浮的画作,都产生了使主空间分区的变化空间。
Both the mobile desk table and the triple door of corrugated glass and wrought iron that separates the room or the floating paintings in the display rails, generate changing spaces that zonify the main space.







Architects: SUAV
Area : 75 m²
Year : 2021
Photographs : Milena Villalba
Suppliers : Krion, Cortizo, Hisbalit, JUNG, Kerlanic
Architects In Charge : Paula Herrera, Beatriz María Jiménez
Collaborator : Carmen de Miguel
City : Madrid
Country : Spain