PAEIZ 6项目位于德黑兰,在3条街道的交叉口。在项目的北部有一个小的绿色空间。出于这个原因,建筑群的入口被定义在这个部分,以确保更容易进入,并能够从大厅享受到所需的绿色景观。具有正负水平层次的外墙外壳受到NAHAZ O NAKHIR(伊朗历史建筑中的一种砌砖方法)的启发,这样观众就可以在一天中的每个小时看到不同的光和影。在这些形状中,使用植物也有助于避免常规。
The PAEIZ 6 project is located in Tehran, at the intersection of 3 streets. There is a small green space in the northern part of the project. For this reason, the entrance of the complex was defined in this section to ensure easier access, and to be able to enjoy the desired view of the greenery from the lobby. The facade shell with its positive and negative horizontal levels is inspired by NAHAZ O NAKHIR (a kind of bricklaying method in Iranian historical architecture) so that the viewer can see different lights and shadows at each hour of the day. Among these shapes, Using plants also helps to avoid routine.




选择砖和石头的组合,同时又有相互之间的和谐,这样做是为了尊重城市,为了尽可能地伴随周围的建筑。通过设计像拼图一样的窗户,有不同的各种尺寸,除了与常见的形式不同外,还形成了一个综合的形状。垂直通道被放置在东侧的中间位置,以便各单元能够尽可能多地利用自然光,从而使分割和公共空间被减少到最低限度。楼梯、电梯和走廊以其透明的材料划分单元,从而保持了空间的视觉联系,因此,它显得更大。
Choosing the combination of brick and stone, while having harmony with each other, has been done in order to respect the city and in order to accompany the surrounding buildings as much as possible. By designing windows like puzzles with different and various dimensions, in addition to being different from the common forms, has formed an integrated shape. Vertical access is placed in the middle of the eastern side so that the units can use as much natural light as possible so that the division and common spaces are reduced to a minimum. Stairs, elevators and corridors which are dividing the units with their transparent material led to maintaining the visual connection of the spaces and as a result, it appears larger.



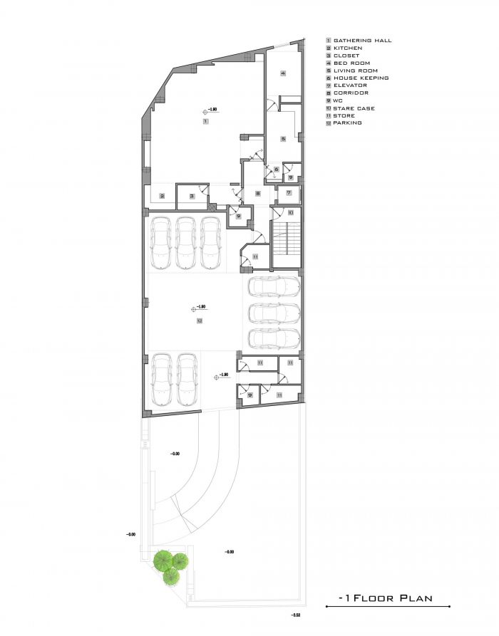
作为我们的设计主流,在外墙、大厅、地下室、单元之间的大厅和室内设计中都可以看到植物的使用。由于有两个坡道,院子里没有足够的空间来美化环境。为了解决这个难题,坡道的屋顶准备用来种植植物。底层由两部分组成,南部是停车场,北部是大厅。大厅在有座位和等候区的同时,还包括一个岗亭和安全设备,上面有喷泉和植物的装饰。-1和-2层包括停车场和储藏室,一个聚会厅和一个看守所。
As our design mainstream, the use of plants in the facade, lobby, basements, the lobby between units and interior design can be seen. The yard did not have enough space for landscaping as a result of having two ramps. In order to solve this challenge, The roof of the ramp is prepared to grow plants. The ground floor consists of two parts, the southern part is parking and the northern part is lobby. The lobby, while having seating and waiting areas, includes a guard post and security equipment, which is decorated with Fountain and plants. -1 and -2 levels consist of parking and storage, a gathering hall and a caretaker.

住宅项目有5层,共包括15个三居室的住宅单元。屋顶有各种设施,如浴室、厨房、烧烤炉、按摩浴缸、日光浴区、座位和步行区。由于单位的数量和同时使用的可能性,众多的座位空间分布在分散的地方。穿过花园的步行路径已经确定了一个合适的步行空间。由于希望向北(德黑兰北部的山脉)和向南(QEITARIEH公园)眺望,这两边的墙被缩短了空隙,而俯瞰街区的西墙则被更高的墙包围。
The residential project with 5 floors, totally includes 15 three-bedroom residential units. The roof has various facilities such as a bathroom, kitchen, barbeque, Jacuzzi, sunbathing area and seating and walking areas. Numerous seating spaces are located at scattered points due to the number of units and the possibility of simultaneous use. Walking paths through the gardens have defined a suitable space for walking. Due to the desired view to the north (mountains in the north of Tehran) and south (QEITARIEH Park), the walls of these two sides have been shortened with gaps, while the western wall overlooking the neighborhood is surrounded by higher walls.

































Architects: Hamedart
Area: 3700 m²
Year: 2021
Photographs: Mohammad Hassan Ettefagh
Manufacturers: AutoDesk, Adobe, Deland, Tabriz Tile
Design Colleague:Shadi Shademanrooz
Client:Yousef Farahani
Structure Design:Ashkan Feizi Raad
Executive Supervisor:Farid Farahani, Ali Farahani, Salar Negahban
Diagram Design:Melika Asgari Sereshg, Fatemeh Sadat Abiri
Executive Group:Farasazan Group
City:Tehran
Country:Iran