该项目位于桑坦德省的弗洛里达布兰卡镇的La Mesa de Ruitoque。La Mesa de Ruitoque位于布卡拉曼加高原以南7公里处,属于热带气候,温度在20°-27°c之间波动。这是一个优越的位置,从北面可以看到山的内部,从南面可以看到布卡拉曼加市,可以看到这个美丽景观的全貌。
The project is located in La Mesa de Ruitoque, the town of Floridablanca in the department of Santander. La Mesa de Ruitoque is 7km south of the Bucaramanga plateau and has tropical weather with temperatures oscillating between 20° and 27°c. This is a privileged location with views of the inside of the mountains from the north, and the city of Bucaramanga from the south, providing a full view of this beautiful landscape.



最初的想法是在一块1997平方米的高坡地上建造一个家庭乡村别墅。这个方案由于COVID-19大流行而被改变,当时客户决定把这个项目作为他们的住宅。这改变了第一个方案,但我们保留了最初提出的开放式建筑概念。
The idea was to initially build a family country house in a lot with a high slope of 1997 m2. This proposal was altered due to the COVID-19 pandemic when the client decided to make the project their residential home. This changed the first plan, but we kept the open architecture concept that had been initially proposed.



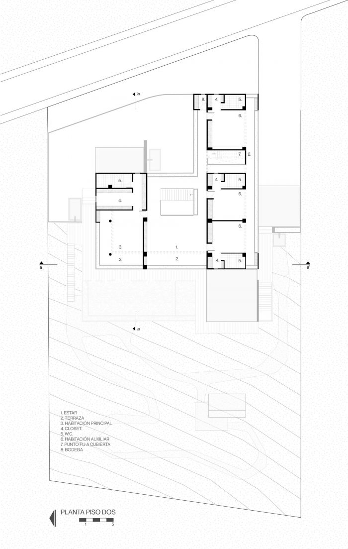
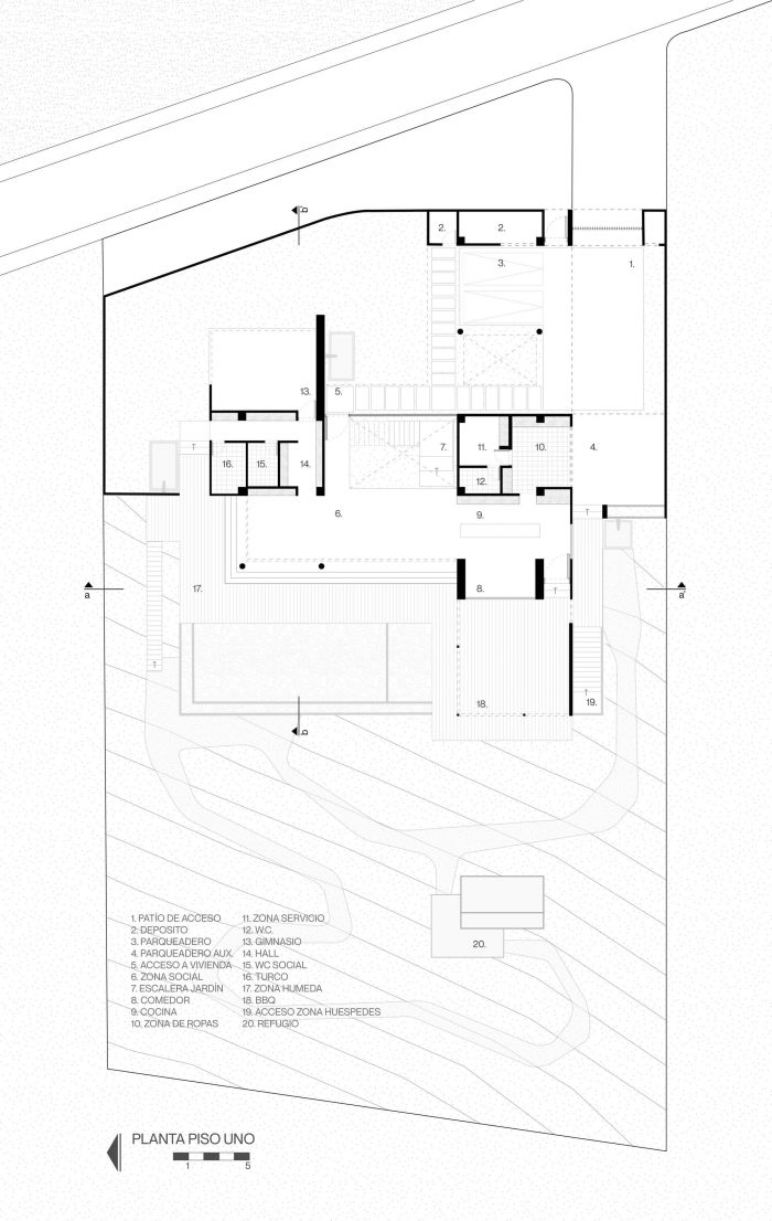
该方案主要以两层楼的形式开发,分布如下:
The program is mainly developed in two stories distributed as follows:


入口处通过一系列的院子产生,这些院子衔接着停车区和通往房屋的通道。你通过一个院子进入房子,院子的尽头是一堵混凝土墙,从那里出现了一个由雨水产生的水镜。垂直于这面墙,一个格子显示了通道,允许窥视住宅和后面的景观。
The entrance is generated through a series of yards that articulate the parking area and the access ways to the house. You enter the house through a yard that ends in a concrete wall, from which a water mirror emerges that is generated by rain. Perpendicularly to this wall, a lattice indicates the access, allowing a peek of the home and the landscape in the back.


一楼的体量是一个长方形的棱镜,与土地最高处的景观平行发展,从城市和远处的山脉的优越景色中获益。这个体量内有服务区,外有公共区域。从这些地方,露台和游泳池区域展开,成为对土地的自然环境和远处景观的眺望。
The volume of the first floor is a rectangular prism, developed parallelly to the landscape in the highest part of the land, profiting from the privileged view of the city and the mountains far away. This volume holds inside the service areas and outside the common areas. From these, the terrace and pool area unfold and become a lookout for the natural surroundings of the land and the distant landscape.

在这块土地的自然环境中,一系列的小路可以让你到达家庭避难所,一个位于森林中间的小木屋。从这些小路,你也可以进入位于观景平台下面的技术区和客人区。
In the natural surroundings of the land, a series of pathways allow you to arrive at the family shelter, a small wooden cabin in the middle of the forest. From these pathways, too, you can access the technical and guest areas that are located below the viewpoint platform.

第二层可以从一个被植被包围的设定点进入,由一个帐篷照明。这个体量拥有私人区域:在一侧,主卧室被一个俯瞰城市的露台所包围,通过客厅与主卧室垂直的体量衔接,其中3个次要的卧室被一个周边的露台所整合,将其与La Mesa de Ruitoque的景观相结合。从二楼,人们可以进入绿化棚。那里是太阳能电池板的位置,为房子提供能源,还有一个可以看到全景的瞭望台。
The second floor can be accessed from a set point surrounded by vegetation and lit by a marquee. This volume holds the private area: on one side, the main bedroom is surrounded by a terrace overlooking the city articulated through the living room with a perpendicular volume to the main one in which 3 secondary bedrooms are integrated by a perimetral terrace that binds it to the landscape of La Mesa de Ruitoque. From the second floor, one can access the green shed. There’s where the solar panels are located, that supply the house with energy and a lookout with a panoramic view.


建筑方案可以被定义为两个纯粹的矩形体量,呈L型排列,周围是植被,与房子的外部材料混凝土形成对比。在房子的内部,木材占主导地位,与根据空间设计的花园融为一体。这些倾向于产生透明性,由于房子的设置,与室外的景观融为一体。
The architectural proposal can be defined as two pure rectangular volumes arranged in an L shape, surrounded by vegetation that contrasts with the concrete, the exterior material of the house. On the inside of the house, the wood predominates and integrates with the gardens that were designed according to the spaces. These tend to generate transparencies that, thanks to the house’s setup, get involved with the outdoor landscape.










Architects: Fernán Olarte Pinto / OG Arquitectura & Construcción
Area : 6975 ft²
Year : 2022
Photographs :Juan Serrano
Manufacturers : Accesorios y Acabados, Best Life Tecnology , Concremovil, Diaco, Ecoenergy, Etalum, Hunter Douglas
Architect Designer : Fernán Olarte Pinto
Builder Architect : Fernán Olarte Garcia
Construction Resident : Sergio Carvajal Paez
Landscaping : URRETA Arquitectura del paisaje
Civil Engineering : Camilo Celis Melo
Electrical And Communications : Globalcet
Carpentry : Ambienta Studio
Solar Panels : Ecoenergy
Program : Vivienda Unifamiliar
Country : Colombia