"Pandemos agora "是一家位于卢森堡的小型精品店,主要销售希腊化妆品和熟食产品。
“Pandemos agora ” is a small boutique shop in Luxembourg mostly for Greek cosmetic and deli products.



对于这个40平方米的商店,KLab建筑事务所必须在一个大的展示区中结合不同的产品尺寸,给人一种几乎是博物馆的感觉。产品发挥了重要的作用,因为大多数产品都有一个特别设计的包装,这也是他们被业主选中的主要原因之一。
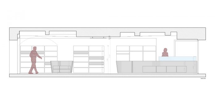
For the 40 square meters shop KLab architecture had to combine different product dimensions in a large display area, giving an almost museum feeling. The products play significant role as most of them have an exceptionally designed packaging, one of the main reasons they were chosen by the owner.

在设计过程中,业主要求店内有一个 "希腊的光环",这在设计过程中起到了重要作用。你如何在不使用陈词滥调的形式和来自古老时代的图像的情况下诠释这一点,因为几十年来,这些都是希腊的代名词,大多在希腊以外的希腊餐馆使用?
The owner’s request of a “Greek aura” within the shop played an important role in the design process: How do you interpret this without using cliché forms and images from the archaic times which for decades are synonymous to everything Greek mostly used at Greek restaurants outside Greece?

KLab的灵感来自基克拉迪群岛的建筑。商店又长又窄,在街上有一个小立面。新的家具曲线墙吸收了现有结构的任何障碍,如柱子、配电盘等,为产品产生了不同大小和深度的空间。白色,光滑的曲线与退化的穿孔蓝色天花板相结合,在相当复杂的形式中提供了一种纯洁和简单的感觉。希腊的光环 "在对基克拉迪强烈的光线和基克拉迪乡土建筑的抽象诠释中被重新定义。
KLab was inspired by the Cycladic islands architecture. The shop is long and narrow with a small façade at the street. The new furniture curvy walls absorbed any obstacles of the existing structure as columns, electrical switchboards etc and produce space of different size and depth for the products. The whiteness, the smooth curves in combination with a degraded perforated blue ceiling provide a sense of purity and simplicity in rather complex forms. The “Greek aura” is redefined in an abstract interpretation of the intense Cycladic light and of the vernacular Cycladic architecture.

天花板和地板的设计遵循了流动性的原则,而不同材料的使用使商店现有的地板和天花板按照房东的意愿被保留下来。
Ceiling and floor design followed the principles of fluidity while the use of different materials allowed the existing floor and ceiling of the shop to be preserved following the wish of the landlord.

克拉布对光线的使用决定了这个空间。产品从后面通过磨砂的Perspex被照亮。照明来自天花板的穿孔,LED照明在家具的边缘实施,给人以分离的飞墙的错觉。
Klab use of lightdetermines the space. Products are illuminated from the back through sand-frosted Perspex. Lighting comes from the perforation of the ceiling and led lighting is implemented at the edges of the furniture giving the illusion of a detached flying wall.





Architects: KLab architecture
Area: 40 m²
Year: 2015
Photographs: Roland Halbe
Graphic Designer:
Construction Management:
Architect In Charge:
Design Team:
Country:Luxembourg