两个朋友想要一个属于自己的房子。他们买了一块地,一起设计了一座房子。然而,他们的家庭组成不同,生活方式不同,对房子的想法也不同。
Two friends wanted a house of their own. They bought a land and designed a house together. However, they had different family composition, different lifestyles as well as different ideas on the house.
[caption id="attachment_265121" align="alignnone" width="700"]
SONY DSC[/caption]


一个人专注于两个女儿的家庭,而另一个人,保持单身,专注于他的私人空间。一个人希望空间是明亮和开放的,而另一个人希望它是微妙和私人的。一个人希望房子有各种空间,为孩子们有趣地纠缠在一起,而另一个人则希望空间安排简单,尽可能地宽敞。
One had his focus on a family of two daughters while the other, staying single, focused on his private spaces. One wanted the space to be bright and open while the other wished it to be subtle and private. One hoped the house to have a variety of spaces amusingly entangled together for the children while the other wanted spaces to be simply arranged and as spacious as possible.

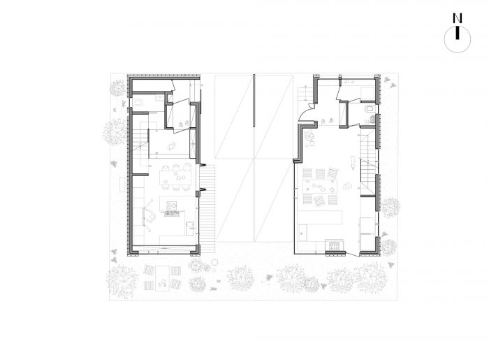
然而,他们有一个共同的问题需要克服--新房子的尺寸不能比他们当时居住的房子大。这个问题是不可避免的,因为两个不同的家庭必须共享一块土地和上面的房子。因此,这些家庭必须首先考虑并决定他们所有必要空间的实际尺寸,通过查看平面图来确定。这个过程让他们思考一些基本问题--当他们住在 "现成 "的房子里时,从来没有需要思考的问题。这也要求他们适应新房子里的空间大小,并将他们的思维从水平方向的生活和思考转移到垂直方向和三维方向。
Yet, they had a common problem to overcome—a size of a new house could not be larger than the houses they lived at the time. The problem was unavoidable as two different families had to share a land and a house above it. Thus, the families had to first think about and decide on an actual size of all their necessary spaces by looking at floor plans. The process made them think about something fundamental—something that they had never needed to think about when living in ‘ready-made’ houses. It also required them to adapt to the size of spaces in their new house and to shift their mind from living and thinking horizontally to vertically and three dimensionally.



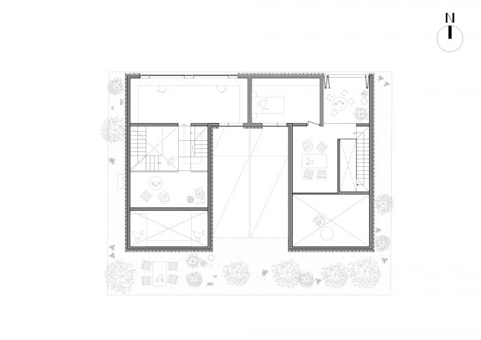
因此,新房子的形状被确定为在当地法规允许的范围内确保尽可能大的面积。首先,为了保持建筑与土地的比例,在中心位置建造了一个可以作为停车场的院子。其次,按照当地的日光规定,屋顶从南向北倾斜,为舒适的阁楼创造了一个空间。
因此,房子自然而然地暴露出它的裸露的红色皮肤,在坚硬的灰砖层中被院子揭开,有一种有点冷但随意的感觉。
As such, the shape of a new house was determined in a way to secure as large area as possible within the limit allowed by local regulations. First, a courtyard that would function as a parking lot was built at the center in order to keep to the building-to-land ratio. Second, a roof that slopes upward from the south to the north following the local daylight regulation created a space for a cozy attic.
As a result, the house naturally exposed its bare red skin that was uncovered by the courtyard among hard layers of greish bricks with a somewhat cold but casual feeling.

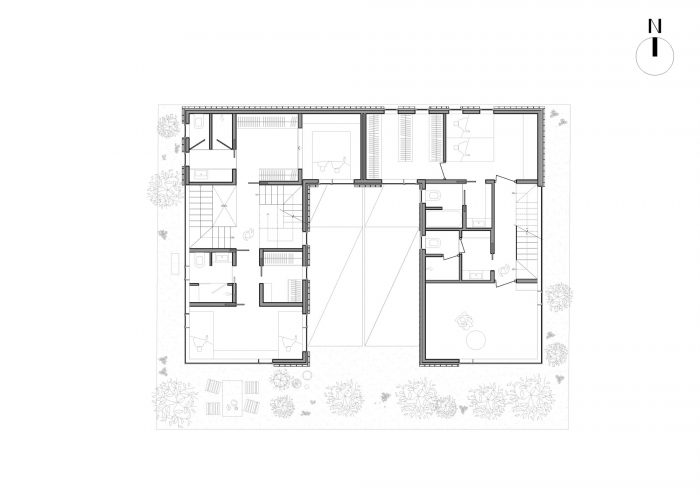
此外,与相同感觉的外观不同,放置在院子左右两边的两座房子的内部被设计成从地下室到阁楼的不同感觉和结构,以满足前面提到的各自的品味和特点。
Furthermore, unlike the exterior of the same feeling, the interior of two houses placed on the right and left side of the courtyard was designed to have a different feeling and structure from a basement to an attic in order to meet their respective tastes and characteristics mentioned earlier.

建造房屋是一个非常困难的过程。在许多原因之上,最明显的一个原因是有太多的事情需要决定。因此,为两个家庭建造房子或两个看起来像一个的房子肯定会造成巨大的困难。毫无疑问,这两位朋友和他们的家人不得不面对许多困难,并在无休止的谈话和不眠之夜后处理了这些困难,这些困难肯定会在他们的新房子里持续多年。
Building a house is a very difficult process. Above many reasons, the most apparent one would be the fact that there are too many things to decided on. Therefore, building a house for two families or two houses that look like one would definitely create enormous difficulties. Without doubt, the two friends and their families had to face many difficulties and dealt with them after endless conversations and sleepless nights which would surely go on for years ahead in their new houses.

我们在此深深感谢这两个家庭,他们明智地克服了所有的障碍,并为他们今后的幸福生活送上我们的祝福和欢呼。
We hereby deeply thank the two families who have wisely overcome all the obstacles and send our wishes and cheers for their happier lives ahead.

[caption id="attachment_265125" align="alignnone" width="700"]
SONY DSC[/caption]















Architects: JYA-RCHITECTS
Area : 283 m²
Year : 2015
Photographs :Hwang Hyochel
City:SEONGNAM-SI
Country:SOUTH KOREA