Bureau Fraai设计了一个豪华的顶层公寓,在一栋曾经的办公大楼里,可以看到海边和市中心的全景,而这栋大楼已经被改造成了高端住宅楼。为了保持顶层公寓的180度视野,Bureau Fraai决定采用独立的橡木体量,创造一个开放的楼层概念,而不是传统的用墙壁挡住视野的布局。
Bureau Fraai designed a luxurious penthouse with panoramic views toward both the seaside and the city center in a former office building, that had been transformed into a high-end residential building. To maintain the 180-degree views from every spot in the penthouse Bureau Fraai decided to introduce free-standing oak volumes creating an open floor concept instead of a traditional layout with walls blocking the view.



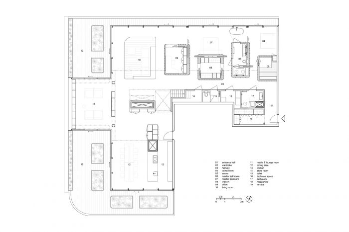
对于这个面积近300平方米、天花板高度达4.75米的阁楼,Bureau Fraai被要求进行设计,以尊重和充分拥抱一边是大海、另一边是城市的美丽全景。框住这些迷人景色的外墙由沿整个顶楼宽度从地板到天花板的窗框组成。为了保持甚至最大化这些景观,Fraai局决定不引入任何阻碍性的墙壁。
For the casco penthouse of nearly 300 square meters with a ceiling height of up to 4,75m, Bureau Fraai was asked to make a design that respected and fully embraced the beautiful panoramic views of the sea on one side and the city on the other side. The facades framing these mesmerizing views consist of window frames from floor to ceiling along the whole width of the penthouse. To maintain and even maximize these views Bureau Fraai decided to not introduce any obstructing walls.

通过设计一个带有独立橡木体量的开放式平面图,使外墙保持清晰。这样一来,周围的环境始终存在于顶层公寓的每一个部分,使你充分意识到季节、潮汐和日出日落的颜色变化,而这些都是不一样的。为了加强与周围环境的关系,建筑师为地板、天花板和现有的墙壁选择了白色和浅灰色的中性基础。
By designing an open floor plan with free-standing oak-wood volumes the façade was kept clear. This way, the surroundings are always present in every part of the penthouse making you fully aware of the changing colors of the seasons, the tides, and of the sunrise and sunset that are never the same. To strengthen this relationship with the surroundings the architects chose a neutral basis of white and light grey colours for the floors, ceilings and existing walls.




为了与这些中性色彩形成良好的对比,海边的独立体量与沙丘和海滩的颜色有关,因此采用了浅色的橡木材料。这些体量以其颜色、纹理和精致的细节创造了一种温暖和自然的感觉。与此相反,在厨房和餐厅中,清醒的灰色是指现代城市的天际线。
In a well-balanced contrast to these neutral colors, the free-standing volumes on the seaside are related to the colors of the dunes and beaches and therefore materialized in light oak wood. These volumes create a warm and natural touch with their color, texture, and refined details. In contrast, in the kitchen and dining room, the sober grey colors refer to the modern city skyline.


独立的木质体量可容纳私人功能,如主浴室、步入式衣柜、桑拿房和办公空间。同时,这些体量将公共区域和走廊与两间卧室大致 "分开"。如果需要,可以通过关闭整齐地集成在木质体量中的全玻璃钢制滑动门来实现物理隔离。在夜间,滚动的百叶窗和非玻璃门可以在视觉上将房间与公寓的其他部分分开。在顶层公寓的短端,公共区域被组织成一个三脚架,包括高架起居室、媒体和休息室、以及用餐区和厨房。
The free-standing wooden volumes accommodate private functions such as the master bathroom, the walk-in closet, the sauna, and the office space. At the same time these volumes roughly ‘separate’ the common areas and hallway from the two bedrooms. If needed a physical separation can be made by closing fully glazed steel sliding doors that are integrated neatly in the wooden volumes. During the night rolling blinds and non-glazed doors can visually close off the rooms from the rest of the apartment. At the short end of the penthouse, the common areas are organized as a tripod containing the elevated living room, the media & lounge room, and the dining area and kitchen.

这些区域直接连接到室外的露台。在核心区域,天花板高度为4.75米,一个长方形的中央体量被引入,用于容纳技术和储藏室、厕所和第二卫生间。在这个体量的顶部,一个夹层创造了额外的存储空间,同时提供了一个独特的内部空间和周围天空不断变化的颜色的视野。
These areas are directly connected to the outdoor terraces. At the core, with a ceiling height of 4,75 meters, a rectangular central volume is introduced accommodating the technical- and storage room, toilet, and second bathroom. On top of this volume a mezzanine creates extra storage spaces and at the same time provides a look-out to the unique interior and ever-changing colours of the surrounding skies.










Architects: Bureau Fraai
Area : 322 m²
Year : 2022
Photographs :Flare Department
Manufacturers : JUNG, &Tradition, De Rooy Steel Doors, Foscarini, GUBI, JEE-O, Ligne Roset, Senso, Tonone, Watermark Designs
Country:The Netherlands