建造什么和保留什么。一个有50年历史的小教堂。这是一座老建筑,一下雨就漏水,而且没有隔热材料,无法在隆冬时节阻挡寒风。我们需要一座新的建筑,但同时,我们必须考虑哪些部分应该保持原样。一道石墙围绕着这个地方。
What to build and What to keep. A 50-year-old chapel. It is an old building that leaks when it rains and there is no insulation to block the cold wind in the middle of winter. We needed a new building, but at the same time, we had to think about which parts should be kept as before. A stone wall surrounds the site.




就我个人而言,我喜欢这种质地粗糙的石墙。我以为,用水泥连接的光滑巨石的石墙是不自然的。但有时,温暖的记忆比时尚的外观更重要。我没有勇气把他们建的石墙一个个拆掉,所以我决定留下时间的痕迹。我留下了真诚和记忆的印记。场地边上那棵骄傲而庄重的冷杉树也必须被保留下来。它为新建筑增加了稳定性和平衡性,仿佛它是这片土地的原主人。
Personally, I like the rough-textured stone wall. I thought that stonework with smooth boulders attached with cement was not natural. But sometimes, warm memories are more important than stylish looks. I did not have the courage to tear down the stone walls they had built one by one, so I decided to leave a trace of time. I left a mark of sincerity and memory. The proud and dignified fir tree on the side of the site had to be preserved as well. It adds stability and balance to the new building as if it were the original owner of the land.


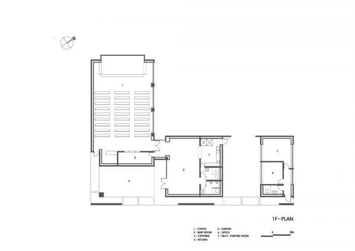
形式和材料。白色和灰色的外墙和深色的消光屋顶在绿色森林的背景下给人以干净和简洁的印象。虽然它的面积约为350平方米,但建筑分布在充足的土地上,形成了35米的细长形状。而不是将建筑集中在一个地方,拥有一个大花园。将土地分割成多个领域,有时是一个好的策略。在一个密集的城市,这首先是不可能的,但我们决定要充分利用土地。
Form and material. The white and gray exterior walls and the dark achromatic roof give the impression of cleanliness and simplicity with the green forest in the background. Although it is about 350 square meters in size, the building is spread out on ample land and a slim shape of 35 meters was created. Rather than concentrating the building in one place and having a large garden. Segmenting and dividing the land into multiple domains is sometimes a good strategy. In a dense city, it would be impossible in the first place, but we decided to make the most of the land.

各种外部空间,包括前花园、后院和庭院,被插入到建筑之间,实现了丰富的体验。三个像兄弟一样高耸的屋檐被暴露的混凝土板所包围。形成层的混凝土板创造了一种深度感,运动线也被组织起来。内部空间。室内用自然光装饰,由砖和裸露的混凝土制成。一个装满光的盒子被放在了小教堂的前面。柔和的光线通过侧面低而长的窗户充满了整个空间。
A variety of external spaces, including the front garden, backyard, and courtyard, were inserted between the buildings, enabling a rich experience. The three gable roofs soaring like brothers were surrounded by exposed concrete plates. The concrete plate forming the layer created a sense of depth, and the movement lines were organized. Inner space. The interior is decorated with natural light and made of bricks and exposed concrete. A box filled with light was put in the front of the chapel. A soft light filled in through the low, elongated window on the side.











Architects: Oh Jongsang
Area : 352 m²
Year : 2022
Photographs :Oh Jongsang
Manufacturers : DAELIM BATH, HANGLAS
City : Hwacheon
Country : South Korea