位于Vall d'Hebron医院的Parc Sanitari Pere Virgili的多功能医院大楼是一个医疗基础设施,是与加泰罗尼亚卫生系统进行的研究过程的结果,以应对2020年3月COVID-19的到来。
The Multipurpose Hospital Building in the Parc Sanitari Pere Virgili of Vall d’Hebron’s Hospital is a healthcare infrastructure that was a result of a research process carried out with the Health System of Catalonia, to respond to the arrival of COVID-19 in March 2020.



这个过程被具体化为一个可以在任何综合医院附近实施的类型学模型,目的是根据中心在不同情况下的具体需求,支持当地的卫生网络。
The process was materialized in a typological model that can be implemented near any general hospital, with the aim of supporting the local health network, according to the specific needs of the center in different circumstances.


该建筑的组织不仅对卫生专业人员来说是高效和安全的,而且还旨在为病人、他们的访客和医疗中心的所有工作人员提供人性化的空间。
The organization of the building is not only efficient and safe for health professionals, but it is also designed to offer humanized spaces for patients, their visitors, and all workers in the medical center.



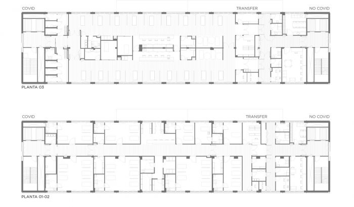
该建筑有56张医院床位,分布在2层,32张常规ICU床位,分布在3层,是2020年最后一个季度在加泰罗尼亚地区建造的5个相同建筑类型的建筑之一,因以下特点而脱颖而出:
This construction, with 56 hospital beds distributed over 2 floors and 32 conventional ICU beds distributed over 3 floors, is one of the five buildings of the same architectural typology built in the Catalan territory during the last quarter of 2020, standing out for the following characteristics:

紧凑: 其设计理念是为88张床位占用尽可能少的太阳能面积(975平方米)。
快速施工: 它是通过精益施工方法和模块化和工业化系统在20周内建成的,以满足最后期限。
Compact: Its design is conceived to occupy the minimum possible solar surface (975 m2) for 88 beds.
Fast construction: It was built in 20 weeks through the Lean Construction methodology and through a modular and industrialized system, to meet deadlines.


灵活: 由于采用了各种策略,如模块化(62个模块5x15米)和使用 "参数化窗口",允许在不改变外墙的情况下进行分配变化,因此设计是灵活的。
Flexible: The design is flexible thanks to various strategies such as modularity (62 modules 5x15m) and the use of the “parametric window” to allow distribution changes without altering the façade.

融入环境: 该建筑通过地下连接得到综合体基础设施的支持。
Integrated into the environment: The building is supported by the complex’s infrastructures through underground connections.


安全: 清洁和肮脏的循环从不交叉,使各区之间的连接通过转移来实现。
Safe: Clean and dirty circulations never cross, making the connection between zones through transfers.

为人着想: 患者、卫生工作者和维护人员是这个基础设施设计的中心,通过建筑积极参与医疗服务的人性化。
Thought for people: Patients, health workers, and maintenance personnel are at the center of the design of this infrastructure, through an architecture that actively participates in the humanization of health care.






Architects: PMMT
Area: 43777 ft²
Year: 2021
Photographs:Gael del Rio, Luca Bani
Manufacturers: Flexbrick, Andreu Barberá, Armstrong, CDC-HIACRE, DANOSA, Dinor, Hormiconsa, Isoplac, Lafac, Orona Pecres, Pesudo Grupo, Roca, Simex, Soleco, Steel Innovation, THU Ceiling Solutions, Tecalum Sistemas, Tollens, URSA, VIDRESIF
Lead Architects: Patricio Martínez, Maximià Torruella, Luis Gotor
Team Manager: Susana Aristoy
Construction Director: Patricio Martínez, Maximià Torruella, Luis Gotor, Susana Aristoy
Promoter: Servei Català de Salut
Program: Arquitectura sanitaria
City: Barcelona
Country: Spain