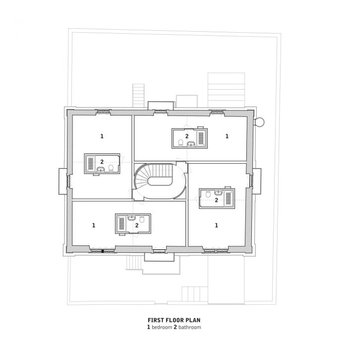
这座建筑的内部已处于废墟状态,但尽管如此,它的屋顶仍然存在。它复杂的几何形状,四个角的金字塔体量,决定了项目的结构和内部分区,将平面划分为9个模块。在中心模块,一个楼梯连接了三个楼层,用它的黄色光芒和来自上方的自然光污染了空间。它急剧的圆角以一种隐蔽的方式承载着建筑的所有垂直服务。
The interior of this building was in a state of ruin but, despite that, its roof was still standing. Its complex geometry, with four corner pyramidal volumes, determined the project structure and interior partitions, dividing the plan into 9 modules. In the center module, a staircase joins the three floors, contaminating the space with its yellow glow and natural light coming from above. Its drastically rounded corners carry, in a hidden way, all the building’s vertical services.





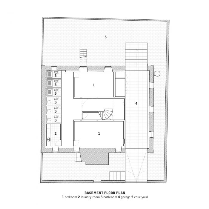
我们被要求考虑该项目在未来使用方面具有高度的灵活性。起初是一个旅馆,能够成为一个单户住宅,只需很少的变化。这就是包含浴室的独立体量的由来,如果人们想要更大的卧室,可以很容易地拆除。
We were asked to consider the project as having a high level of flexibility in terms of future use. A Hostel at first, capable of becoming a single-family house with little changes. This is how the autonomous volumes containing the bathrooms came to be, easily removable should one want larger bedrooms.

整个建筑的结构也来自于易于未来改造的逻辑。主要的结构网格是由层压钢组成的,在板和墙上有轻钢框架。在上层,有4间卧室,每间卧室都有一个独立容积的浴室。
The overall building’s structure also derived from the logic of easy future transformation. The main structural grid is composed of laminated steel, with light steel framing in slabs and walls. On the upper floor, there are 4 bedrooms, each one with a bathroom within an autonomous volume.



在入口处,有前台、可供所有客人使用的公共区域--厨房和餐厅/客厅。半地下室也有卧室。有一个外部通道,完全是蓝色的,直接连接到房子的前面和后面的天井。这个天井朝东,有两棵树,将是一个户外休息区。
At entrance level, there is the front desk, common areas that can be used by all guests – kitchen and dining/living room. The semi-basement is also occupied with bedrooms. There is an exterior passage, completely painted in blue, that connects directly to the front of the house and the back patio. This patio facing east, with two trees, will be an outdoor lounge area.


































































Architects: Aurora Arquitectos, FURO
Area: 560 m²
Year: 2017
Photographs: do mal o menos
Manufacturers: Knauf, Ofa, Sanitana
Engineering:Espaço Civil e Nichos Urbanos
Construction:Teixeira & Matos
Supervision:Iperplano
Team:Sérgio Antunes, Sofia Reis Couto, Bruno Pereira, Tânia Sousa, Rui Baltazar, Ivo Lapa, Carolina Rocha, António Louro, José Castro Caldas, Paula Vargas, Pedro França
City:Parede
Country:Portugal