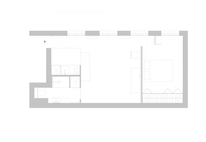
在这个位于玛莱区中心的典型的17世纪公寓里,三条工作轴线构成了工作。
- 在36平方米的空间内,将有一个卧室、一个晚餐区、一个休息室、一个办公室、一个厨房和一个浴室。
In this typical 17th Century flat located in the heart of the Marais, three working axes have structured the work :
- Within the 36 m2 space, there will be a bedroom, a dinner-area, a lounge, an office, a kitchen and a bathroom.



- 通过视觉上延长公寓的长度,将有一个更大的表面的错觉。- 空间将被改造,同时保持旧有的特征。
- There will be an illusion of a larger surface by visually lengthening the flat. - The space will be transformed while keeping the character of the old...

一个紧凑而有效的技术区,包括浴室、厕所和厨房,将位于公寓的一端,以便为卧室和客厅腾出最大的空间。位于另一端的卧室将通过一个振动的风琴式隔断与客厅分开。这个隔断的设计是为了创造一个通往卧室的亲密和隐蔽的通道。技术区和卧室之间的中央空间将专门用于建造客厅和办公室。每件家具都将是定制的,并有一个特定的功能,以这样的方式来创造一个画意的构成。
A compact and efficient technical block including the bathroom, toilets and kitchen will be located at one end of the flat in order to free a maximum space for the bedroom and the living-room. The bedroom, located at the other end will be separated from the living-room by a vibrating accordion partitioning. This partitioning will be designed to create an intimate and hidden access to the bedroom. The central space contained between the technical block and the bedroom will be dedicated to the living-room and the office. Every piece of furniture will be custom-made and have a specific function that fits in such a way as to create a pictorial composition.

该项目的目的是在这个原本很长的公寓里创造出一种频闪效果。像隔断一样,没有一件家具会到达天花板,以暴露梁的位置。
The aim of the project is to create a stroboscopic effect in this originally long flat. Like the partition, no piece of furniture will reach the ceiling in order to expose the beams.

同样的视觉连续性在地面上通过中空的连接点和覆盖着镜子的家具腿来实现。储存单元,如壁橱、书架、厨房家具和图书馆,都被放置在公寓的纵轴上,增加了长度的印象。相反,生活区、办公室和酒吧则被布置在公寓的横向。定制设计的灯具悬挂在家具和公寓纵向的横梁之间。
The same visual continuity is facilitated at the ground level by hollow joints and mirror covered items of furniture legs. Storage units such as the closet, the shelves, the kitchen furniture and the library are laid in thhe longitudinal axis of the flat, increasing the impression of length. On the contrary, the living areas, office and bar, are laid out in transverse of the flat. Custom-designed lamps are suspended between furniture and beams running lengthwise in the flat.

该公寓完全被涂成白色,以强调每种材料的特殊纹理。这种关于质地的工作可以在所使用的新元素中找到:手风琴、马赛克、大理石和白色浮雕的漆料。这种中性的色调,几乎不受来自镜子的光线干扰,将允许新旧之间的微妙对比。
The flat has been entirely painted in white to emphasize the specific texture of each material. This work on texture can be found in the new elements that have been used: accordion, mosaic, marble and lacquers in a cameo of white. This neutrality of tints, barely disturbed by the light coming from the mirrors, will allow a subtle contrast between Old and New.












Architects: UBALT
Area: 36 m²
Year: 2016
Manufacturers: LOTTE CHEMICAL, CE.SI. Ceramica, Cassina, Saint-Gobain, Charlotte Perriand
City:Paris
Country:France