该项目位于巴黎第十二区,于2020年10月为房地产公司GECINA完成,封闭在一个街区的中心,周围是建于1970年代的公寓楼。
The project is located in the twelfth district of Paris, completed in October 2020 for the real estate company GECINA, enclosed at the heart of a block, surrounded by an apartment complex built in the 1970s.



施工现场与街道被一栋11层楼房隔开,禁止任何传统的起重装置和任何空中通道。同样,在施工期间,现有建筑的大厅必须为其居民保持运作。
The construction site, separated from the street by an eleven-storey building, prohibited any conventional lifting installation and any passage by air. Likewise, it was imperative that the hall of the existing building remained operational for its residents during the construction.


所有这些限制导致我们通过连接街道和街区中心的停车场,通过尺寸极小的地下室(3.5米宽x 2.3米自由高度)来进行这一操作。除了通道限制,还有重量限制,因为新建筑必须跨越现有的停车场,而不妨碍居民使用它。
All these constraints led us to carry out this operation by going through the car park connecting the street to the heart of the block via the basement with extremely small dimensions (3.5m wide x 2.3m free height). In addition to access constraints, there were weight constraints, since the new construction had to span the existing parking lot without keeping the residents from using it.

在社会雄心的驱使下,面对场地的限制(通道、重量),我们选择了木制结构和外墙的建设。技术创新不仅仅是对材料的选择:它必须是其逻辑的一部分。虽然必须在材料的来源上下功夫,并朝着选择生物基材料的方向发展,以创造不能搬迁的工作岗位,但也必须特别注意建设性的细节:装配、节奏、比例、木材类型......以提供一种体现在美学中的建设性模式。
它的结果是重复了在窗户的规模上所做的决定,这些决定的动机是结构上的限制,以及对耐用性的追求,由于突出的阳台和白色的保护漆,保护了木梁的末端,在外墙上创造了一种节奏,使其具有自己的特性。
Driven by a societal ambition and faced with site constraints (access, weight), we opted for a wooden construction both for the structure and the facade. Technical innovation is not just about the choice of material: it must be part of the logic of it. While it is essential to work on the origin of the materials and to move towards the choice of biobased materials that generate jobs that cannot be relocated, it is also essential to pay particular attention to constructive details: assemblies, rhythms, proportions, types of wood… in order to offer a constructive mode embodied in an aesthetic.
It results from the repetition of decisions taken at the scale of the window, decisions motivated by structural constraints and by the search for durability with the protection of wood against bad weather thanks to the projecting balconies and the white protective paint that protects the ends of the wooden beams and which creates a rhythm on the facade, giving it its own identity.

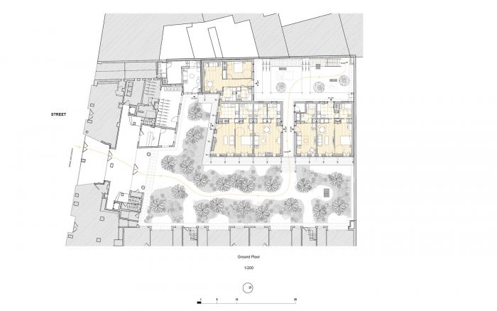
该项目的建筑风格是严谨的,与自然主义花园的明显自由形成对比。该项目的主要挑战之一在于入口的顺序,在城市的宇宙和家庭的私密宇宙之间创造一个平滑的过渡。
The architectural style of the project is rigorous, contrasting with the apparent freedom that the naturalistic garden takes. One of the major challenges of the project lies in the entry sequence, creating a smooth transition between the urban universe of the city and the intimate universe of the home.


景观在这里扮演着感觉位移的首要角色。为了实现这一目标,进入一个看起来像灌木丛的植物群的想法在这里似乎比修剪整齐的庭院花园更合适,画成一条直线。
该项目必须是当前关注的典范:高质量的住房(光线、气氛、材料)和节俭的建筑和能源消耗。开放式画廊的策略使得为所有单位系统地设计贯穿式平面配置成为可能,这种内在的质量允许空间扩展、清除走廊以及简单而有效的自然通风。
The landscape plays a primordial role here in the displacement of sensations. To achieve this goal, the idea of entering a plant mass that looks like an undergrowth seems more appropriate here than a well-pruned courtyard garden, drawn in a straight line.
The project has to be exemplary with current concerns: quality housing (light, atmosphere, materials) and frugality in their construction and energy consumption. The open gallery strategy made it possible to design run-through plan configuration for all flats systematically, an intrinsic quality allowing space expansion, clearance of corridors as well as a simple and effective natural ventilation.

总之,该项目使彻底更新场地成为可能,并在一个更全面的层面上,思考集体住房和环境方法,这两者在这里都得到了更新,以创造一个新的可持续的城市模式,能够在质量上使城市自我增长。
In conclusion, the project makes it possible to completely renew the site, and on a more global level, to think about collective housing and about the environmental approach which is both renewed here in order to create a new sustainable urban pattern capable of qualitatively growing the city on itself.





Architects: MARS Architectes
Year : 2020
Photographs :Charly Broyez
Client : GECINA
City : Paris
Country : France