在村子中心的教堂对面,一个长方形的地块上坐落着帕罗之家。这座修长的房产向东倾斜,由于它的位置,可以从屋顶上看到乡村的景色。
Opposite the village church in the village center, on a rectangular plot lies the House Parlow. The elongated property slopes downward towards the east and, thanks to its location, allows a view over the roofs into the countryside.




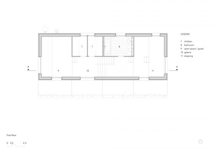
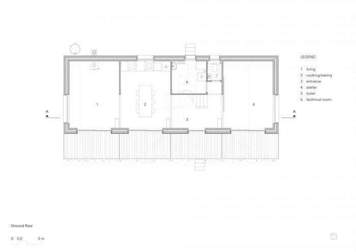
该建筑只有5米宽,15米长。由于房子的 "脚印 "很小,所以保留了大量的开放空间。棚顶的角度被选择为与地形平行。景观对室内也有构成性的影响。地面层在四个高原上层层叠叠。在它们上面,纯交叉层压木材制成的平台被安排在不同的高度,并由不同倾斜度的楼梯连接。
The building is only 5m wide and 15m long. Due to the small ´´footprint´ ´of the house, a lot of open space is preserved. The angle of the shed roof is chosen parallel to the topography. The landscape also has a constitutive effect on the interior. The ground floor cascades over four plateaus. Above them, platforms made of pure cross-laminated timber are arranged at different heights and connected by stairs with varying inclinations.


底层的四个平台是基于钢筋混凝土的基础,并被赋予了暴露的混凝土地板。所有上升的结构元素都是由不同厚度的交叉层压木板制成的,这些木板在内部仍然可见。外墙的交叉层压木构件是建筑高的,天花板挂在墙之间。这大大减少了部件的数量。外墙从外面用纤维素纤维进行保温,并覆盖着粗切的云杉木板。它们的红色有助于增强房屋的特殊性。
The four plateaus of the ground floor are based on reinforced concrete foundations and were given exposed concrete floors. All rising structural elements are consistently made of cross-laminated timber panels of different thicknesses, which remain visible inside. The cross-laminated timber elements of the exterior walls are building-high, and the ceilings are hung between the walls. This significantly reduced the number of components. The exterior walls are insulated from the outside with cellulose fiber and covered with rough-cut spruce planks. Their red color contributes to the house's special character.

屋顶是一个绿色的屋顶,其保留层可以储存雨水并长期释放给植物。该项目的可持续发展的特点是所选择的木质建筑材料,带有保留量的绿色屋顶,以及能源概念。暖气由空气热泵提供,并由一个木制火炉作为补充。
The roof is a green roof with a retention layer that stores rainwater and releases it to the plants over a long period. The project's sustainability is characterized by the chosen wood building materials, a green roof with retention volume, and an energy concept. Heating is provided by an air heat pump and supplemented by a wood stove.

只有底层的地板配备了地暖。温暖的空气可以通过中间的空间流过建筑,减少能源消耗。大型组件(混凝土地板)储存热量,并延迟释放热量。屋顶为安装光伏组件做了准备。绿色屋顶可以防止夏季的过度加热。
Only the floors on the ground floor are equipped with underfloor heating. Warm air can flow through the building through the intermediate spaces, reducing energy consumption. Massive components (concrete floors) store heat and release it with a delay. The roof is prepared for the installation of PV modules. The green roof protects against excessive heating in summer.

大的、部分固定的玻璃墙面开口使外部和内部空间相互流动,特别是在前端。在天幕的保护下,南侧的露台顺着室内的瀑布而上。坚韧的猕猴桃植物沿着南侧的植物链交织在一起,框住了露台,并在夏季提供了阴凉。
The large, partly fixed-glazed wall openings allow the exterior and interior spaces to flow into one another, especially at the front ends. Protected by a canopy, a terrace follows the interior's cascades on the south side. Hardy kiwi plants intertwine on the plant strands along the south side, framing the terrace and providing shade in the summer months.

由于原始建筑材料和饰面的表面质量,房子的材料很坚固,而且经得起考验。
The house's materials are robust and age-worthy due to the surface quality of the raw building materials and finishes.

























Architects: ANNABAU Architektur and Landschaft GmbH
Area: 166 m²
Year: 2022
Photographs:Hanns Joosten
Wood Construction: Zimmerei David Krebs
Facade Builder: Zimmerei David Krebs
Heating And Plumbing: Bau Casekow
City: Friedrichswalde
Country: Germany