这座房子的设计策略是基于对工匠精神的诚实承诺,对城市地区自然环境的尊重,以及不断寻找一种居住方式,让材料的简洁性提供空间质量。房子的主体位于土地的南部边界,尊重北侧原有的3棵果树,并尽可能地利用最佳的通风和自然光。
The design strategy of this house is based on a commitment to artisanal constructive honesty, the respect towards natural context in an urban area, and the constant search for a way of inhabiting where material austerity provides spatial quality. The main body of the house is located in the southern boundary of the land, respecting the 3 preexisting fruit trees on the north side and taking advantage of the best ventilation and natural light possible.




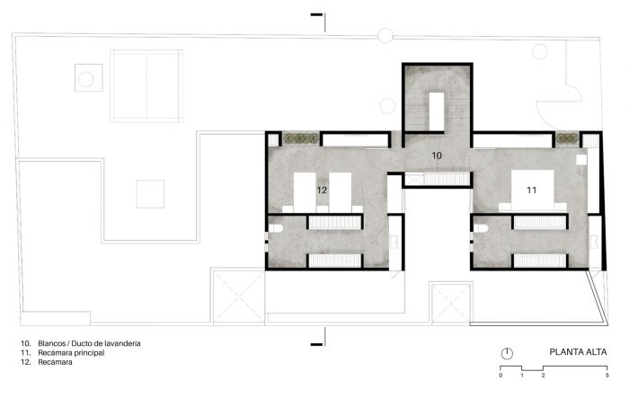
该方案包括2间卧室、社交区、一个家庭室和服务设施,被浓缩在一个整体块中,以减少其占地面积。作为一个主要的策略,上层屋顶倾斜21度,向房间所在的北方增长,并向服务所在的南方降低其高度。中间部分的减去和旋转在上层卧室之间产生了一个转变,允许交叉通风,以及容纳屋顶设备和管道和电气管道。在截面上,该构图允许南北风的循环,通过在高于其他空间的热空气的排放来冷却厨房。
The program, which includes 2 bedrooms, social area, a family room and services, is condensed in a monolithic block to reduce its footprint. As a main strategy, the upper roof tilts 21 degrees, growing to the north, where the rooms are located, and reduces its height to the south, where the services are located. The subtraction and rotation of a middle segment generates a shift in between the upper floor bedrooms, allowing cross ventilation, as well as the accommodation of rooftop equipment and the plumbing and electrical ducting. In section, the composition allows the circulation of north-south winds, cooling the kitchen by the escape of hot air in that space higher than the rest.


建设性的解决方案考虑到了所有元素的材料诚实性。一楼的混凝土墙,用回收的模板进行打磨,给人一种不完美的感觉,与屋顶的简洁一致,但与上层的清洁和体积的连续性形成对比。
The constructive solution contemplates material honesty in all the elements. The concrete walls on ground floor, pured with recycled formwork, give an imperfect finish consistent with the roof’s austerity, but contrasted with the cleanliness and volumetric continuity of the upper floor finish.



鉴于巨大的经济负担依赖于屋顶和地砖的米数,我们决定完全取消这两方面的饰面,使用裸露的抛光混凝土地板,为了表现建筑性和结构性,屋顶使用裸露的混凝土托梁系统,与拱形件相结合,使用当地工匠铁匠的模具设计和制造。这个作品的设计使我们能够拥有与传统拱顶相同的混凝土浇筑量,同时通过每块较小的质量来减少板块的重量。
Given that a great economic burden relies on the meters of roofs and floor tiling, it was decided to completely eliminate the finishes on both, using bare polished concrete floors and, in order to express the constructive and structural performance, the roofs use a system of bare concrete joists in combination with vaulted pieces, designed and manufactured using a mold made with local artisan blacksmithing. The design of this piece allowed us to have the same amount of poured concrete as a traditional vault, while reducing the weight of the slab by having a smaller mass per piece.


















Architects: Central de Proyectos SCP
Area : 320 m²
Year : 2018
Photographs :Eduardo Calvo Santisbón
Manufacturers : Cosentino, Cemex, Adocretos Cholul, Adocretos Edron, Chukum, Coconats, Helvex, Hoüt, Kimicolor, Millet, Tecnolite, Teka, VALVO
Lead Architects : Ana Laura Puig Casares, Eduardo Calvo Santisbón
Structural Engineering : ADECSA
City : Merida
Country : Mexico