中等教育学院的大楼位于智利天主教大学的圣华金校园内。该建筑与教育学院大楼相邻,在1995年和2006年期间建造和扩建,显示了所要求的项目的多功能性和适应性。这样一来,该项目与现有的建筑一起,在45公顷的校园内形成了一个专门用于教育的空间。该项目的另一个条件是与校园的一条次要道路平行,位于现有树木的后面,这将为该项目提供保护和隐私。
The building for the school of Pedagogy in Secondary Education is located within the San Joaquin Campus for the Pontifical Catholic University of Chile. The building is adjacent to the Faculty of Education Building, built and expanded over the years 1995 and 2006 showing the versatility and adaptability of the requested program. In this way, the project, together with the existing buildings, make a space dedicated to Education within the 45 hectares Campus. Another condition of the project is to be located parallel to a secondary path of the campus behind a line of existing trees which will give protection and privacy to the project.





除了场地位置和周围的建筑外,校园的密度和不同建筑上存在的不同形式语言的数量,决定了项目的最初想法;建筑的建设从重复的元素开始,这些元素可以在这个地方以中立的方式运作,因此对于那些走过校园的人来说,不会被注意。
In addition to the site location and its surrounding buildings, the density of the campus and the number of different formal languages existing on the different buildings, define the initial idea of the project; the construction of a building that starts from the repetition of elements that can operate in the place with neutrality and therefore to go unnoticed for those who walk through the campus.


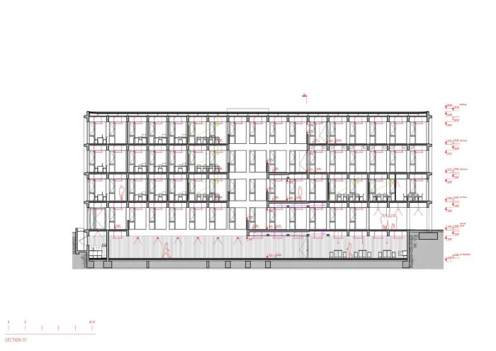
为此,在2.45的距离上定义了一个加固的原位混凝土结构,这也定义了内部程序的最小单元。周边结构是由一个单一的元素设计的,它的转动取决于它是用于梁还是柱,减少了施工时间和现场决策,在Mockup的过程中,它解决了由于其几何形状而可能产生的任何不完美。这种严格的几何秩序定义了建筑的外部形象。
For this, a reinforced in situ concrete structure is defined at a distance of 2.45, which also defines the minimum unit of the interior program. The perimeter structure is designed from a single element that turns depending on whether it is used for a beam or a column, reducing the construction times and decision making on-site, which in the process of Mockup solves any imperfection that may arise due to its geometry. This strict geometric order defines the exterior image of the building.

为了定位进入建筑的通道,一部分体量从所有的非结构元素中释放出来,定义了一个空隙,建立了通道,它位于校园的两个循环轴的连接处。朝着教育学院的方向,有一个下沉的庭院,定义了一个外部循环,与现有的学院建筑相连接。
内部有一个中央核心,它是建立在一个不连续的循环中的,创造了一个循环系统,使用户在进入建筑时能有一个对整个空间的感知。由于核心区的形状,位于内部的不同项目,办公空间、研讨室和学生学习区,在视觉上和空间上都有联系。
To locate the access to the building, a part of the volume is released from all of the non-structural elements, defining a void that builds the access, which is located in the connection of two circulation axes of the campus. Towards the Faculty of Education, there is a sunken courtyard that defines an exterior circulation that connects with existing faculty buildings.
The interior features a central core that is built in a discontinuous circulation creating a circulation system that allows the user to have a perception of the entire space when is moving into the building. Because of the shape of the core the different programs located inside, Offices Space, Seminar Rooms, and Study, areas for the students, are visually and spatially connected.











Architects: Alberto Moletto, Sebastián Paredes
Area : 2300 m²
Year : 2021
Photographs :Cristobal Palma / Estudio Palma
Architect : Alberto Moletto
Associate Architect : Sebastián Paredes
Client : Universidad Católica
Collaborators : Sebastian Fache, Juan Samaniego, Bettina Kagelmacher, Alessandra Dalmos, Giulio Moriani, Elena Fiocci , Andrea Roverato
Timber Engineering : Hohemann / Stagno
City : Macul
Country : Chile