佩德罗之家 "旨在通过修复一栋20世纪初的建筑并在后面增加一个附属建筑来拯救城市的建筑遗产,从而在历史和现代之间建立起一个离散的、尊重的对话。作为瓜达拉哈拉历史中心大规模城市复兴计划的一部分,佩德罗之家在部分无人居住和缺乏活力的地区的重新密集化中发挥了作用。
Casa Pedro aims to rescue the city’s architectural heritage by restoring an early-20th century building and adding an annex to the back, thus establishing a discrete and respectful dialogue between the historical and contemporary. As part of a large-scale urban reactivation plan for Guadalajara’s Historic Center, Casa Pedro plays a role in the re-densification of an area that is partially unoccupied and devitalized.




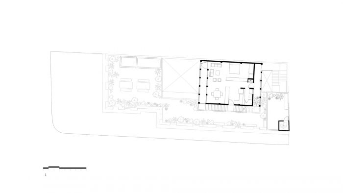
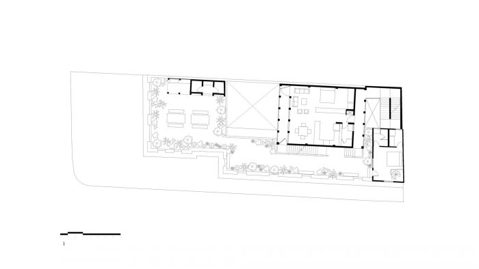
修复工作尊重了先前存在的分割房屋的门和窗,而附属建筑被放置在较少见的露台区域,以避免修改建筑的原始循环和中央天井,它是项目的核心。
The restoration respected the preexisting doors and windows that divided the home, while the annex was placed in the lesser-seen terrace area in order to avoid modifying the building’s original circulations and central patio, which functions as the heart of the project.



整个房子有六个住宅单元—四个在原来的建筑内,两个在附属建筑内--有适合一个人或一对夫妇的类型,也有能够容纳一个家庭的大单元。尊重项目的原始分布,确保了遗产屋内的每个公寓单元都是独一无二的。位于附楼的两个单元都是开放式的阁楼。在屋顶上,一个绿色的空间增加了建筑的共享区域。
Six residential units are located throughout the house — four within the original building and two in the annex — in typologies suited for one person or a couple, as well as larger ones that are able to accomodate a family. Respecting the project’s original distribution ensured that each apartment unit within the heritage house is unique. Both of the units located in the annex function as open-plan lofts. On the rooftop, a green space adds to the building’s shared-use areas.

















Architects: Diagrama Arquitectos
Area : 525 m²
Year : 2019
Photographs :César Béjar
Manufacturers : AutoDesk, Adobe, Trimble
Lead Architects : Luis Aurelio Piña Plaza, Laura Elena Barba Prieto
Design Team : Arturo Molina
Clients : Huella Desarrollos
Landscape : BAC Taller de paisajismo
Collaborators : Isadora Vargas, Gisela Reyes, Regina Alarcón.
City : Guadalajara
Country : Mexico