这座建筑是位于市中心的1924年折衷主义画廊,其壮观的气氛是思考设计概念时的主要特征,尽管对外壳的干扰是最小的选择。该设计是围绕着在私人庭院中聚会的想法而建立的,周围都是手工制作的奇特物品,是对好奇心柜的一种接待方式。
The building, a 1924 eclecticist galleria located in the city’s center, and its spectacular atmosphere were the major characteristics while thinking about the design concept, even though the interference with the shell was minimal by choice. The design was built up around the idea of gatherings in private courtyards surrounded by artisanal peculiar items, a hospitality take on cabinets de curiosités.



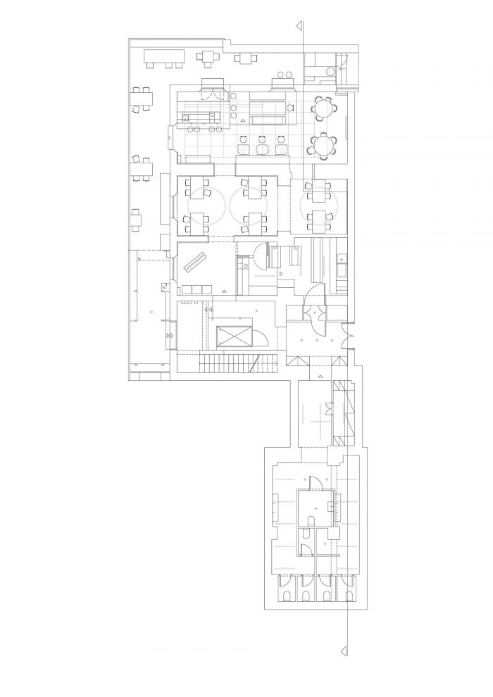
一楼由四个空间单元组成,入口、天井、酒吧和休息室。一个由代表城市和建筑的不同重叠层次的物品构建的场景,创造了多种叙事联系,具有主要的工艺特征和未来主义的技术本质:一个广泛的中央大理石桌,刻有原始符号的墙壁,霓虹灯和土耳其土耳其浴室马赛克瓷砖,鲜红的墙壁和新切的草的氧化铝口袋,想象中的国家的鲜艳旗帜,吹制的玻璃装饰品,一个几乎赤裸的入口在热闹的外部和私人内部之间创造一个通道。
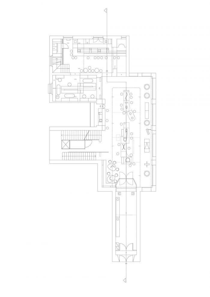
地下室,也由四个单元组成:餐厅、等候室、户外空间和辅助设施。其目的是为了区别于底层,但也要保持主要的叙述方式:在符号和文物之间的聚会,但在一个更宁静和接地气的环境中。风景变得朴实无华,完全是一种方式。
The ground floor consists of four spatial units, the entrance, the patio, the bar, and the lounge room. A scenery built by objects that represent the diverse overlapping layers of the city and the building, creating multiple narrative connections with a predominantly crafted identity and futuristic techno essence: an extensive central marble table, engraved walls with primitive symbols, neon lamps, and Turkish hammam mosaic tiles, bright red walls and inox pockets of freshly cut grass, bright-colored flags of imaginary countries, blown glass ornaments, an almost bare entrance creating a passage between the buzzing exterior and the private interior.
Save this picture!Pelosof Bar / Post-Spectacular Office - Image 43 of 48Plan Diagram Level -1
The basement, consists of four units as well: the restaurant, the waiting room, an outdoor space, and auxiliary facilities. The aim was to differentiate from the ground floor but also to keep the main narrative: gatherings among symbols and artefacts but in a more serene and grounded environment. The scenery becomes earthly-toned and total in its approach.

在地中海农村的后院里吃一顿悠闲的晚餐,这种舒适感是餐厅和后院的愿望。"未完成的 "石膏墙,大理石台面,以及带有陶瓷照明装置的渐变效果的油漆天花板,与裸露的机器和粉红色的米白色金属基础设施相结合。
The comfort of a laid-back dinner in a Mediterranean rural backyard was the desire for the restaurant and the backyard: “unfinished” plaster walls, marbled tabletops, and gradient effect painted ceilings with ceramic lighting fixtures, combined with naked machinery and pastel off-white metallic infrastructures.


中间空间是自发放置奇特符号的借口:教堂般的座位、咆哮的橙色霓虹灯龙、神圣的天花板。所有这些协调了对独特物体的某种吸引力,这种兴趣可以在整个项目的细节设计中找到。
The intermediate spaces work as excuses for spontaneous placements of peculiar symbols: church-like seatings, a roaring neon orange dragon, a holy ceiling spot. All these coordinate a certain attraction on unique objects, an interest that can be found throughout the detailing of the project.










































Architects: Post-Spectacular Office
Area : 600 m²
Year : 2021
Photographs :Yannis Drakoulidis, Kostas Amiridis
Manufacturers : Afrokoptiki, BRIGHT, Custom Light Now, Damon Sidiropoulos, Fanis Manglaras, Gig me Up, Giorgos Gerontides, Kiskinidis, Mexil, Moschou S.A., Passion Home Rentzios, Stelios Delivanidis, Taxiaris Inox, Vaggelis Symvoulidis, Yiannis Ivanov
Construction Management : Agni Balafouti
Branding : Post-Spectacular Office
City : Thessaloniki
Country : Greece