一个年轻的家庭找到我们,希望在他们的牧场式平房的内部和后院之间创造一个更大的联系。现有的几个非常小的窗户和门是面向院子的,这阻碍了父母与他们的孩子一起花大量的时间在户外照料花园、鸡舍和景观的愿望。这个家庭希望在室内和室外之间实现无缝连接。
A young family approached us to create a greater connection between the interior of their ranch-style bungalow and the rear yard. Several very small existing windows and doors were facing the yard that impeded the parents’ desire to spend copious amounts of time outdoors with their children tending the garden, chicken coop, and landscaping. The family sought to live seamlessly between the interior and exterior.



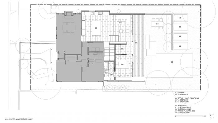
拟建的厨房、家庭室、办公室和主人套房被设计成向室外开放的住宅。从厨房到家庭室,再到后院的直接视野,使一家人在一天中都能保持相互交流。
The proposed kitchen, family room, office, and master suite were designed to open the home to the outdoors. A direct view from the kitchen, over the family room, and onto the rear yard allows the family to stay engaged with one another over the course of the day.

自然光通过后立面的大玻璃窗,以及建筑中心更分散的天窗和缝隙窗,被引入到现有住宅的深处。后部露台上的深色悬垂可以调节阳光的恶劣影响。
Natural daylight is brought deep into the existing home with large panes of glazing at the rear elevation, as well as, more discrete skylights and slot windows towards the center of the building. A deep overhang at the rear deck mediates the harsh impact of the sun.

后院被设计成三个特定的区域:用餐/座位区,草坪/游戏区,以及菜园/鸡舍区。板状混凝土挡土墙和混凝土及石块铺装,以一种舒适的方式界定这三个区域。与户外的直接联系现在是家庭日常生活的一个组成部分。
The rear yard was designed as three specific zones: dining/seating area, lawn/play area, and vegetable garden/chicken coop area. The board-formed concrete retaining walls and the concrete & stone pavers serve to define these three zones in a comfortable way. A direct connection to the outdoors is now an integral part of the family’s daily life.







Architects: Michael Hennessey Architecture
Area: 2787 ft²
Year: 2014
Photographs: Adam Rouse
Manufacturers: Hansgrohe, Bosch, Epco, Pendants
Site Area:5000 ft2
City:San Francisco
Country:United States