Pergolenviertel描述了汉堡市北部和Barmbek之间的城市环境中的 "绿色街区"。这些静态街区以圆形拱门的形式向自然开放,坐落在原来作为配给定居点的绿色空间中,它流经并塑造了新的街区。
The Pergolenviertel describes the „block in the green“ in the urban environment between Hamburg‘s City Nord and Barmbek. The static blocks, which open up to nature with passages in the form of round arches, sit in the green space originally used as an allotment settlement, which flows through and shapes the new quarter.

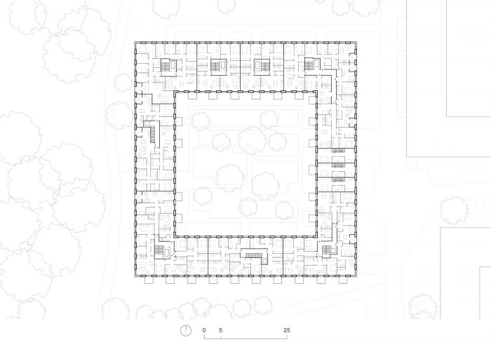
城市状况。Pergolenviertel描述了汉堡市北区和Barmbek之间城市环境中的 "绿色街区"。在Pergolenviertel的西边是汉堡城市公园。建筑物位于约80000平方米的大型物业的北部和南部地区,由开放空间连接。开放空间由同名的凉亭定义,被设计成圆形拱门,引导居民和游客穿过该地区。住宅区相互之间的定位和旋转,在小区的南部地区创造了类似广场的街道空间,其几何形状不断变化。结构上的中断和通道将街道空间与周围的绿地和路径连接起来。
Urban situation. The Pergolenviertel describes the „block in the green“ in the urban environment between Hamburg‘s City Nord and Barmbek. To the west of the Pergolenviertel lies the Hamburg City Park. The buildings are located in the northern and southern areas of the approx. 80000m2 large property and are connected by open space. The open space is defined by the eponymous pergolas, designed as round arches that guide residents and visitors through the area. The positioning and rotation of the residential blocks in relation to each other create plaza-like street spaces with changing geometries in the southern area of the neighborhood. Structural interruptions and passageways connect street spaces with the surrounding green spaces and pathways.


建筑。设计以清晰的网格为基础,这在建筑的外部立面设计和内部结构中都有体现。城市规划原则在这里成为一个跨尺度的设计主题,甚至在内部空间效果中找到了它的视觉实现。建筑的几何形状是明确的。侧面的长度是相同的,而东、南、西三面的建筑部分被限制在3层,北面的建筑部分被限制在6层,形成了一个结论。
Architecture. The design is based on a clear grid, which is reflected both in the external facade design and in the internal structure of the building. The urban planning principle becomes a cross-scale design theme here and even finds its visual implementation in the interior spatial effect. The geometry of the building is clearly defined. The side lengths are identical, while the building sections on the east, south, and west sides are limited to 3 and on the north side to 6 full stories formulating a conclusion.


进入公寓的通道几乎都是通过公共使用的内院。以前作为配给园定居点的用途在这里体现为基于设计网格的拼凑。各个区域的差异化设计反映了不同的功能。大部分的住宅单元形成了穿插的生活空间。居民一方面有机会面对外面的绿色植物,另一方面也可以参与到庭院的生活中。
The access to the apartments is almost exclusively through the communally used inner courtyard. The former use as an allotment garden settlement is reflected here in a patchwork based on the design grid. The differentiated design of the areas reflects a variety of functions. The majority of the residential units form interspersed living spaces. Residents have the opportunity to face the greenery outside on the one hand, and to participate in the life of the courtyard on the other.

外墙。一个微妙的颜色梯度延伸到整个凉棚区。在北部,邻近的City-Nord似乎被染上了颜色,而在该区的南部地区,邻近的住宅区Barmbek的红色被染上了。总的来说,外墙是用红褐色的熟料砖半粘合而成。在楼层的高度,熟料砖形成了一个浮雕:每隔一排砖就会在这个区域跳回,创造了一个高度的可塑性。
Facade. A subtle color gradient extends over the entire pergola quarter. In the north, the neighboring City-Nord seems to color off, and in the southern area of the quarter, the red of the adjacent residential quarter Barmbek colors off. Overall, the façade is faced with a reddish-brown clinker brick in a semi-bond. At the height of the floors, the clinker bricks are formed as a relief: every second row of bricks jumps back in this area, creating a high degree of plasticity.





Architects: blrm Architekt*innen
Area : 16600 m²
Year : 2023
Photographs :Joshua Delissen
Landscape Architecture : Michael Nagler Landschaftsarchitekt
City : Hamburg
Country : Germany