投资者与舞蹈和当地的密切关系,使这个项目为一个位于1960年代住宅区的零售建筑注入了新的生命。作为改造的一部分,在临街的商店和办公室之上的高层建造了一个舞蹈室。
The investor’s close ties to dance and to the locality gave rise to a project that has breathed new life into a retail building set within a 1960s housing estate. As part of the transformation, a dance studio was built on the upper floors above the street-level shops and offices.




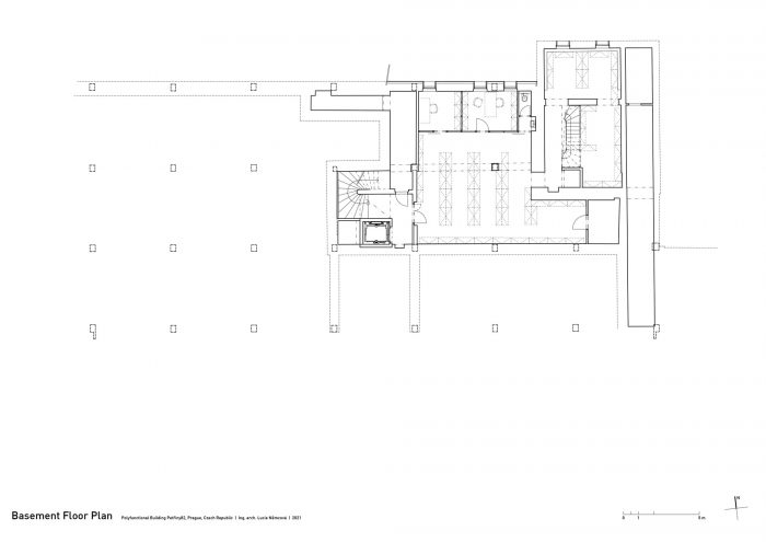
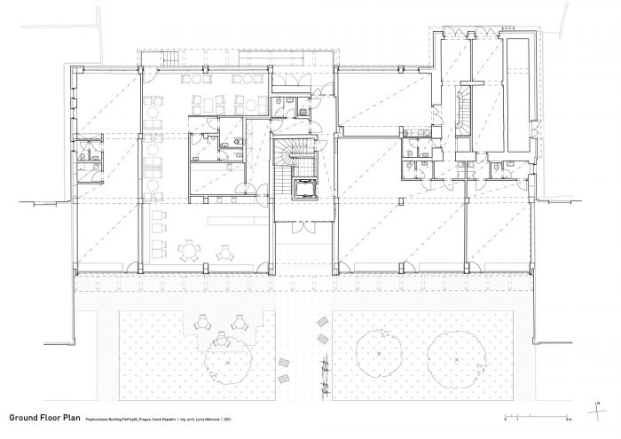
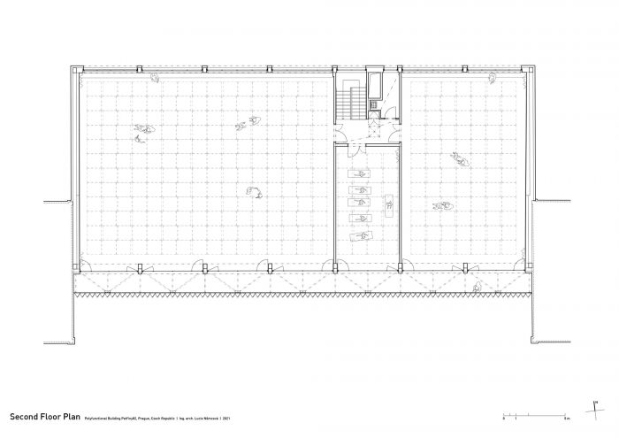
该建筑被完全翻新。在现有的地面层上建造了第二层,一个没有内部承重构件的大跨度屋顶允许创造宽阔的大厅,以满足专业舞蹈运动的要求。由于建筑的内部承重骨架系统,这种空间在低层是不可能的。舞蹈工作室在一楼也有设施,包括接待处、更衣室和一个较小的芭蕾舞厅。这一层的其余部分包括办公租赁空间。
The building was completely renovated. A second floor was constructed atop the existing aboveground levels, and a broad span roof void of internal loadbearing members allowed for the creation of expansive halls fulfilling the requirements for professional dancesport. Such spaces would not have been possible in the lower levels due to the building’s internal loadbearing skeleton system. The dance studio also has facilities on the first floor, including the reception, changing rooms, and a smaller ballet hall. The remainder of this floor comprises office rental space.

因为该项目的主要目的之一是支持建筑的零售园地功能,所以一楼原有的商店被完全翻新,并增加了合适的公用设施空间。这为小企业提供了一个机会,即在当地明显缺失的咖啡馆,可以利用宽敞的空间,从大尺寸的商店窗户向外看,可以看到沿着主要林荫道的修订空间。市政府授予了这个正面空间的租赁权,该建筑的所有者承诺对其进行维护,并资助景观设计师对其进行翻新。在街道上,该建筑有一条人行通道,鉴于其位于两座直线型公寓楼之间,这大大增加了周围公共空间的可及性和实用性。
Because one of the key aims of the project was to support the retail parterre function of the building, the original shops on the ground floor were completely renovated and enhanced with suitable utility spaces. This provided an opportunity for small businesses, namely a café, which had been noticeably missing in the locality, to make use of the generous spaces with large-format shop windows looking out on the revised space along the main boulevard. Granted a lease on this frontal space by the city, the owner of the building has committed to its upkeep and financed its renovation by landscape architects. At street level, the building features a pedestrian passage, which in light of its position between two linear apartment buildings significantly increases the accessibility and utility of the surrounding public space.


这座朝南的建筑位于一条繁忙的城市大道上,有电车服务。阳台平台的立面很有特色,由非典型弯曲的穿孔板条组成的浮动结构为其遮阳,同时也实现了纯粹的功能目的。该设计反映了为建筑的裸露正面提供一定程度的遮阳,减少街道噪音,以及为上层建筑扩展可用的室外空间的需要。这个概念产生了一个亲密的相互空间,阳台沿着建筑的整个表面延伸,向办公室和舞蹈室的用户开放。
The south-facing building is situated on a busy city boulevard with a tram service. At once distinctive, the façade with balcony platforms shaded by a floating structure of atypically bent perforated slats fulfills a purely functional purpose as well. The design reflects the need to cast a degree of shade on the exposed front of the building and reduce street noise as well as expand the upper floors with useable outdoor space. The concept resulted in an intimate interspace, with the balconies extending along the entire face of the building open to the users of the offices and the dance studio.

板条以不同角度倾斜。与观察者的运动相结合,他们几乎总是从纵向看建筑,因为有了通道林荫道,他们给人的印象是温柔的涟漪在外墙移动。
The slats are tilted at various angles. In combination with the movement of the observer, who almost always views the building lengthwise thanks to the access boulevard, they give the impression of gentle ripples moving across the façade.

该建筑是一个三层楼的结构,有一个钢筋混凝土骨架系统。新增加的三层楼位于预应力板的屋顶下,外围是钢筋混凝土承重结构。该建筑有一个部分地下室。新的二楼的额外重量需要对基础柱进行喷射灌浆。为了满足当代的功能需求,该建筑的内部布局被重新设计。在建筑南面的一楼和二楼,安装了可行走的钢制阳台悬臂,外侧是穿孔金属板条的浮动结构。
The building is a three-story structure with a reinforced concrete skeleton system. The new third-floor addition lies beneath a roof of pre tensioned panels with a peripheral reinforced concrete loadbearing structure. The building has a partial basement. The extra weight of the new second floor required jet grouting of the foundation columns. The interior layout of the building was redesigned in order to meet contemporary functional needs. On the first and second floors of the building’s south face, walkable steel balcony cantilevers were installed with an outer floating structure of perforated metal slats.




























Architects: Lucie Nemcova
Area : 2115 m²
Year : 2021
Photographs :Václav Novák
Manufacturers : Boen, Dulux, HERAKLITH, Harlequin, Rako, Sto, Atepaa, Ecophon, Egoé, Perfolinea, Schuco
Lead Architect : Ing. arch. Lucie Němcová
Structural Engineer : ANTRE, Ing. Karel Šíp
Collaboration : Studio ANTA, Ing. arch. Karel Scheib (The Land Planning Procedure Documentation)
Landscape Architect : Ing. arch. Alice Boušková
Building Graphic Designer : Petr Kněžek
City : Praha 6
Country : Czech Republic