位于巴西利亚的郊区,Casa Petry的设计是通过对场地的仔细分析而产生的。在物理上,它的特点是一个微妙的1.2米的斜坡,宽17米,长35米。它的近邻几乎占据了其特定地块的所有横向尺寸,具有相当高的高度,从建筑学角度看,这创造了一种不稳定的感觉。
Located in the outskirts of Brasília, the Casa Petry design emerges from a careful analysis of the site. Physically it is characterized by a subtle 1,2m slope, measuring 17 meters wide by 35 meters long. Its immediate neighbors occupy virtually all the transversal dimensions of its specifics plots with a considerable height, which, architecturally wise, creates an unsettling feeling.



因此,以下的挑战被放在了这里,并引导了整个设计过程。
[1] 如何正确地插入一个占地面积约为235平方米的建筑作品,同时占据两层楼,而不失去一个更令人愉快的规模?
[2] 怎样才能更好地利用明显的平坦地形?
[3] 最终,如何在项目和其自身的景观之间阐明一种无限制的共生感?
Therefore, the following challenges were placed and led the design process as a whole:
[1] How to correctly insert an architectural piece with an approximate 235m² footprint, also occupying two floors, without losing hand of a more pleasant scale?
[2] What should be the better way to take advantage of the apparent flat topography?
[3] Ultimately, how to articulate a sensation of unrestricted symbiosis between the project and its own landscape?



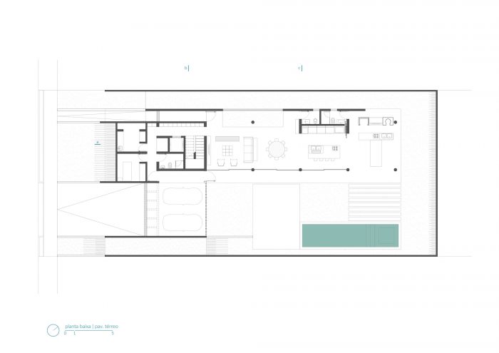
一个明确的意图是将建筑构图与代表它们的尺度相协调,促使该项目战略性地利用1.20米的坡度,并将底层置于这一水平。这种做法的目的不仅是为放置在这一点上的空间创造隐私,也是为了减轻建筑的总体峰值,使其比例的和谐构成符合人类尺度。
A clear intention of structuring the architectural composition in tune with the scales that represent them has driven the project to strategically take advantage of the 1,20m slope and place the ground floor at this level. This approach had the intention not only to generate privacy for the spaces placed at this point but also to relieve the general peak of the construction, enabling a harmonic composition of its proportions, accordant to the human scale.



在其脆弱的边界内,底层包含了房子的更多开放和民主的空间,如客厅和餐厅,一个开放的厨房,烧烤空间和公共区域。这个空间的气氛与奇特的pilotis氛围相呼应,几乎像一个适当的巴西利亚 "超级街区"。在Casa Petry的上层,与街道水平垂直错开1.50米,放置了家庭的更多私人和限制空间。
In its tenuous boundary, the ground floor embraces the more open and democratic spaces of the house, such as living and dining rooms, an open kitchen, barbecue space, and communal areas. The atmosphere of this space echoes the peculiar pilotis ambiance, almost like a proper Brasília “superblock”. In Casa Petry’s upper floor, vertically dislocated 1,50m from street level, are placed the more private and restricted spaces of the family.

理性地讲,一个亭子式的类型显示出它是分配住房空间的最适当的方式。这种方法有助于项目的总体排序,以相对轻松和简单的方式应对构思住宅的挑战。事实上,简单正是这个亭子与周围环境的区别所在,它被轻轻地嵌入到它的场地。
Rationally, a pavilion-esque typology displayed itself as the most adequate way of distributing the housing spaces. This approach contributed to the general ordering of the project, answering with relative ease and simplicity the challenges of conceiving a home. Simplicity, as a matter of fact, is precisely what distinguishes this pavilion, gently embedded in its site, from its surroundings.














Architects: Estúdio MRGB
Area : 420 m²
Year : 2019
Photographs :Hermes Romão
Manufacturers : Alutec, Bontempo, Centrogran, Deca, Hill House, Lumini, Madipê, Portinari
Lead Architects : Igor Campos, Hermes Romão, Rodolfo Marques
Project Team : Ana Orefice, Ana Carolina Moreth, Filipe Bresciani, Larissa Pontes, Lucas Felipe Campos
Engineering : André Torres
Landscape : Ana Paula Roseo
Country : Brazil