我们的客户选择了一个被重新利用为出租房的旧仓库作为他们新家的所在地。该项目设计的重点是垂直平面,强调了这种仓库建筑特有的原始双层高空。
Our clients chose an old warehouse that had been repurposed as rental housing as the location for their new home. The project was designed with a focus on the vertical plane, emphasizing the original double-height void characteristic of this type of warehouse architecture.





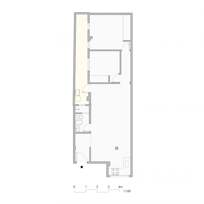
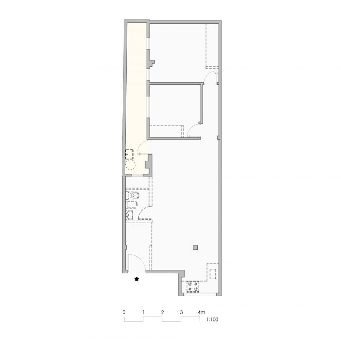
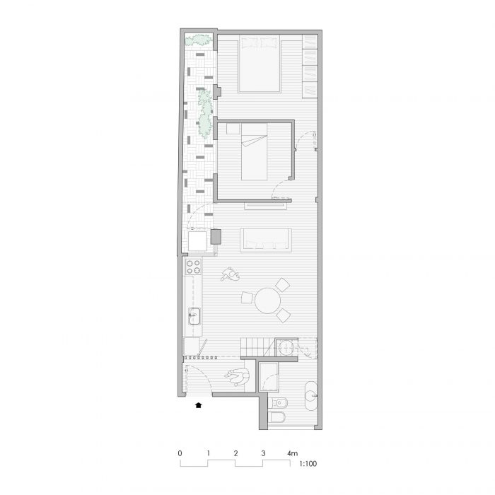
该项目围绕中央空间的两边组织。一个带有木质包层的夹层优化了该区域,将工作室提升到最高层。面向双高空间的阳台创造了一个动态的相互作用,并使空间的不同用途成为可能。在下层,房屋的入口位于一个走廊,有一个指定的空间用于放置鞋子和户外装备。楼梯下的一个隐藏的门通向位于走廊后面的浴室。
The program is organized around two sides of the central space. A mezzanine with wood cladding optimizes the area, elevating the studio to the top level. Balconies facing the double-height space create a dynamic interplay and enable different uses of the space. On the lower level, the entrance to the house is situated through a hallway with a designated space for shoes and outdoor gear. A hidden door under the stairs leads to the bathroom located behind the hallway.


在对面,靠着抛光的水泥大墙的位置是厨房。厨房被设计成一个带有木质元素的综合空间,与周围的体量完美地融合在一起,形成一个有凝聚力的、战略性的布局。
On the opposite side and positioned against the large wall of polished cement is the kitchen. Designed as an integrated space with wooden elements, the kitchen blends seamlessly with the surrounding volumes to form a cohesive and strategically placed layout.









Architects: CDC ARQ
Area: 65 m²
Year: 2021
Photographs:Ana Grucki
Manufacturers: Calyfornio, Glassic, Grifería, Humitronic, Huup, Purastone
Director: Rodrigo del Castillo
Designer: Paula Casado
City: Buenos Aires
Country: Argentina