Ilot Cambridge是格勒诺布尔前岛ZAC的一个住宅区,它本身也是整个城市群的城市发展项目的一部分。所提出的与流动性、能源汇集和加强社会联系相关的建筑解决方案,使其有可能纳入国家EcoCité 2计划。
Ilot Cambridge is a residential area of the ZAC Grenoble Presqu’île, which itself takes part in the urban development project of the entire agglomeration. The proposed architectural solutions related to mobility, the pooling of energy, and the strengthening of social ties, have made it possible to integrate the national EcoCité 2 program.





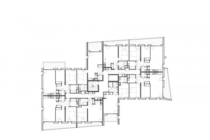
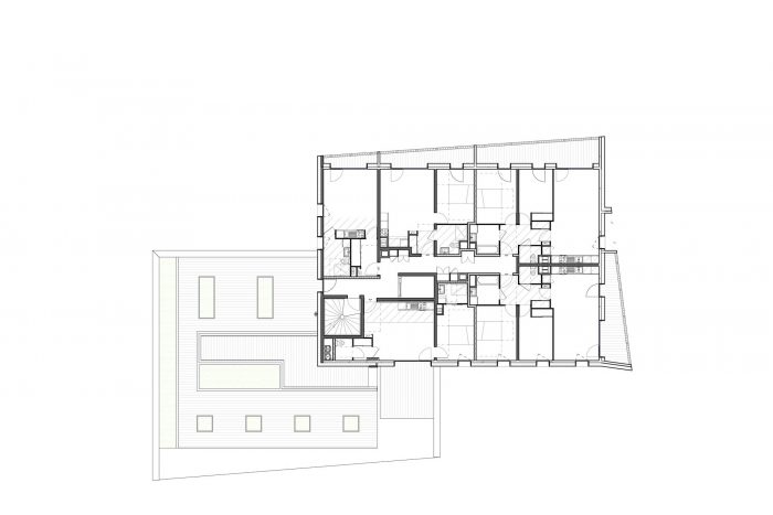
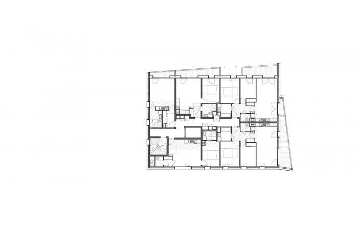
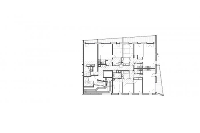
预测建筑的新环境挑战,接近新的生活方式,确保建筑物整个生命周期的可持续能源消耗管理,引入住房的灵活性,以及促进户外或建筑空间内的代际关系,是目标目标。分为三个建筑,菲莱是其中之一。
Anticipating the new environmental challenges of construction, approaching new ways of living, ensuring sustainable management of energy consumption across the lifespan of buildings, introducing flexibility in housing, and promoting intergenerational within outdoor or built spaces, are the targeted objectives. Divided into three buildings, Philae is one of them.



Macary Bensh团队提出的计划非常巧妙,显示出对住房问题的高度掌握。不可否认的是,这些计划的组合方式,给每个住宅带来了舒适和创新。Ch. de Portzamparc.
‘’The plans proposed by the Macary Bensh team are very ingenious and show great mastery of housing issues. There is an undeniable virtuosity in the way the plans combine and bring comfort and innovation to each dwelling.’’ Ch. de Portzamparc.




























Architects: Flloo Architecture & Urbanism, Macary Bensh Architecture
Area : 3430 m²
Year : 2018
Photographs :Sandrine Riviere
Manufacturers : Alucoil, Sto, Alucobond
Structure Engineers : Delta
Environmental Quality : Canopée
Economists : Eiffage Cinstruction
Fluides : CET
City : Grenoble
Country : France