背景--越南的首都--河内是一个在各方面都迅速发展的城市,是东南亚地区充满活力的代表。伴随着城市化进程的加快,河内现在也有800万居民。其中,60%的居民位于市中心,这给城市带来了巨大的压力,特别是在住房需求和就业方面。这不可避免地导致越来越多的现代城市高层建筑出现在中心地区的传统工匠村,形成了不同文化混合的城市景观,新的文化价值取代了旧的和传统的。
Background - Vietnam’s capital - Hanoi is a rapidly developing city in all aspects, a representative of the dynamic South-East Asian region. Along with the increasing rate of urbanization, Hanoi is now also home to 8 million residents. Among which, 60% are located in the city's center, which put a tremendous strain on the city, especially regarding housing needs, and employment. This inevitably leads to more and more modern urban highrises appearing in traditional artisan villages in the central areas, creating a cityscape with a mixture of different cultures, and new cultural values replacing the old and traditional.




传统医学--传统医学是越南医学中的一门学科,通过它,疾病得到传统的治疗。这种做法的独特之处在于其药物中使用了天然材料和成分。每一剂药都是由不同的草药混合而成的,是通过许多世代和文化流传下来的配方,对治疗的安全性和有效性有严格的验证。传统诊所SPD项目旨在保护和增强传统医学的积极价值,所有在现代医学最流行的时候,帮助人们更好地了解和照顾自己的健康。
Traditional medicine - Traditional medicine is a discipline in Vietnamese medicine, by which, ailments are traditionally treated. The unique aspect of this practice is the use of natural materials and ingredients in its medicine. Each dose is a mixture of different herbs, made with formulae passed down through many generations and cultures, with strict verification of safety and effectiveness in treatment. The Traditional Clinic SPD project aims to preserve and augment the positive values of traditional medicine, all while modern medicine is most popular, helping people to better understand and take care of their own well-being.

场地位置 - 传统诊所SPD位于河内的一个新的混合公用事业住宅高层建筑群中。该项目分为两个主要功能。除了位于大楼7层的专业临床空间外,还有作为信息枢纽的接待区,向大众传播传统医学知识--位于大楼的主厅内。
Site location - The Traditional Clinic SPD is located in a new mixed utility residential highrise complex in Hanoi. The project is divided into two primary functions. Along with the specialized clinical space on the 7th floor of the building, there is the reception area serving as the information hub, spreading knowledge of traditional medicine to the masses - located in the building’s main hall.


接待区--底层--接待区位于大楼的主厅,紧邻住宅区最繁忙的交通路线之一。设计以利用自然和传统材料为导向,如陶瓷瓦片、天然岩石和木材......,结合起来,带来一种欢迎的感觉和温暖的感觉。一个浸泡在传统中的空间与当代的现代环境交织在一起,有助于弥补工业环境的不足,并创造出一种诱人的氛围,呼吁人们去体验和发现。这个空间的焦点是由木材和岩石混合制成的弧形墙,采用传统的手工方法建造。优雅的曲线不仅决定了每个功能,而且还突出了传统药剂师的形象,他们在装有110多种不同草药的柜子墙前仔细而精确地调制每一剂药,唤起了空间中传统医药的独特感。在它的旁边是专家在柜台前的说明,帮助病人更好地理解,对传统医学的方法更加放心和信任。
The Reception Area - Ground Floor - The reception area is located in the main hall of the building, adjacent to one of the busiest traffic routes in the residential area. The design is oriented around the utilization of natural and traditional materials, such as ceramic tilings, natural rock, and wood..., combined to bring about a welcoming feeling and a sense of warmth. A space soaked in tradition intertwines with the contemporary, modern environment, helps to remedy the industrial setting, and creates an inviting atmosphere, calling on people to experience and discover. The focal point of this space is the curved wall made of a mixture of wood and rock, built using traditional, artisanal methods. The elegant curve not only decides each function but also highlights the image of the traditional pharmacist, carefully and precisely concocting each dose of medicine in front of the wall of cabinets, containing over 110 different herbs, invoking the sense of uniqueness of traditional medicine in the space. By its side are the instructions given by specialists at the counter, helping patients to better understand, to be more reassured and trusting in the methods of traditional medicine.

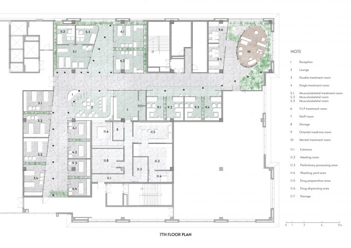
临床空间 - 7楼 - 根据这门学科从业者的信念,为了有效地治愈疾病,必须对病人进行身体和精神上的双重治疗。正因为如此,这个专门的临床空间的设计从传统越南建筑的宁静中寻求灵感。 这个空间的特殊节奏是由31根岩石柱形成的,横跨主走廊。除此之外,每个专业诊所都被绿色植物隔开,为他们创造了必要的隐私和新鲜感,进一步增加了特殊的韵律。走廊的每一端都向自然元素开放,让病人接触到更多的绿色植物和自然光......带来舒适和放松,帮助他们在治疗开始前与自然重新联系。与接待区不同,临床空间是由自然和人造材料组合而成的。玻璃被用来最大限度地提高项目接受自然光的能力。这与垂直的建筑元素相结合,使空间具有高度和空气感。
The Clinical Space - 7th Floor - According to the belief of those who practice this discipline, to effectively cure an ailment, a patient must be treated both physically and mentally. Because of that, the specialized clinical space's design seeks inspiration from the tranquillity of traditional Vietnamese architecture. The special rhythm of this space is formed by 31 rock columns, spanning the main hallway. Besides that, each specialized clinic is separated by greenery, creating in them the necessary privacy and freshness, further adding to the special rhythm. Each of the hallway's ends opens up to natural elements, granting patients access to more greenery and natural light... bringing about comfort, and relaxation and helping them to reconnect with nature before their treatments commence. Different from the reception area, the clinical space is made with a combination of natural and man-made materials. Glass is used to maximize the project's ability to receive natural light. This, combined with the vertical architectural elements, gives the space a sense of height and airiness.

绿化 - 绿化也是这个项目的一个重要方面,它不仅给空间带来了新鲜感,而且还传播了传统医学知识,教育了人们,帮助他们更好地了解不同的草药及其药用价值。每一个配方都可以用日常生活中熟悉的草药和植物进行复制。因此,绿色植物为人们提供了照顾自己健康的另一种方式,帮助他们与大自然建立更多联系,对自己和大自然的福祉更加负责,并减少对西医的依赖。
Greenery - Greenery is also an important aspect of this project, not only does it bring freshness into the spaces, but also spread knowledge of traditional medicine and educates people, helping them better understand the different herbs and their medicinal values. Each and every formula can be replicated using herbs and plants familiar to everyday living. Thus, the greenery provides people with an alternative means of taking care of their own health, helps them connect more with nature, become more responsible for their own and nature's well-being, and less dependent on western medicine.

传统诊所SPD项目展示了人类、建筑和自然元素的结合,利用传统的医学哲学来连接和平衡每个元素。这方面,在繁忙和充满活力的现代生活方式的背景下,为人们提供了一个宁静的避难所,一个在精神和身体上得到治疗的空间。在这些临床空间内的经验也丰富了他们的知识和他们与自然环境的关系。建筑在这个项目中扮演着不可或缺的角色,希望尽可能完美地展示传统和文化价值在快速和充满活力的城市发展时期的融合。
The Traditional Clinic SPD project demonstrates a combination of human, architectural, and natural elements, utilizing the traditional philosophy of medicine to connect and balance each of them. This aspect, under the context of a busy and dynamic modern way of living, provide people with a tranquil refuge, a space in which they are spiritually and physically healed. The experiences within these clinical spaces also enrich them with knowledge and their relationship with the natural environment. Architecture plays an indispensable role in this project, aspiring to demonstrate as seamlessly as possible the incorporation of traditional and cultural values in a time of rapid and vigor urban development.











Architects: ODDO architects
Area : 1100 m²
Year : 2022
Photographs :Hoang Le
Design Team : Mai Lan Chi Obtulovicova, Nguyen Duc Trung, Marek Obtulovic, Nguyen Viet Anh
City : Hanoi
Country : Vietnam