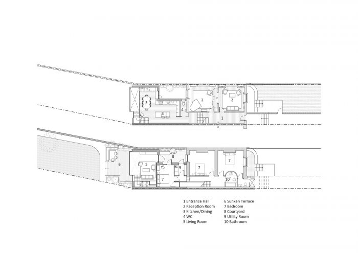
这座红砖维多利亚式排屋的特点是最初吸引客户的原因。现有房屋的布局--以及该排屋相邻的邻居房屋的布局--是不寻常的,因为上层入口处包含接待室和厨房/餐厅功能,而卧室规定位于地面下层。
The character of this red brick Victorian terrace house was what originally attracted the client to the property. The layout of the existing house- and the layout of the adjacent neighbouring houses in the terrace- is unusual, in that the upper entry level contains reception rooms and kitchen/ dining functions, with bedroom provisions located at the lower ground level.



客户希望保留现有房屋的特点和布局,但希望扩展房屋的后面,以创造一个大型的现代厨房和家庭生活空间。
The client wanted to retain the character and the layout of the existing house but wanted to extend the back of the house to create a large modern kitchen and family living space.

扩建部分包括一个新的厕所和厨房,以及一个新的卧室,公用设施和客厅。新的卧室和杂物间通向一个新的内部院子。厨房通过一个双层高度的空隙与下面的家庭室相连,落地玻璃将厨房和客厅与花园相连。
The extension contains a new WC and kitchen at upper ground level and a new bedroom , utility and living room at lower ground level. The new bedroom and utility open into a new internal courtyard. The kitchen is connected to the family room below by a double height void and the floor to ceiling glass connects the kitchen and living room to the garden.










Architects: Plus Architecture Ireland
Area: 185 m²
Year: 2016
Photographs: Donal Murphy
Manufacturers: Louis Poulsen, Reynaers Aluminium, ADT Façade Solutions, Arena Kitchens
City:DUBLIN
Country:Ireland