新图书馆建在30年前发生恐怖袭击的同一地点,当时有10人死亡。这一事实对维克市来说是个创伤,也是倡议的起源,因为该市希望将这一地点奉献给新图书馆的建设,作为代表文化、社会融合和宽容价值的设施。
The new library is built on the same site where a terrorist attack took place 30 years earlier in which 10 people died. This fact, traumatic for the city of Vic, is also the origin of the initiative since the city wanted to dedicate this site to the construction of a new library as a facility that represents the values of culture, social integration, and tolerance.



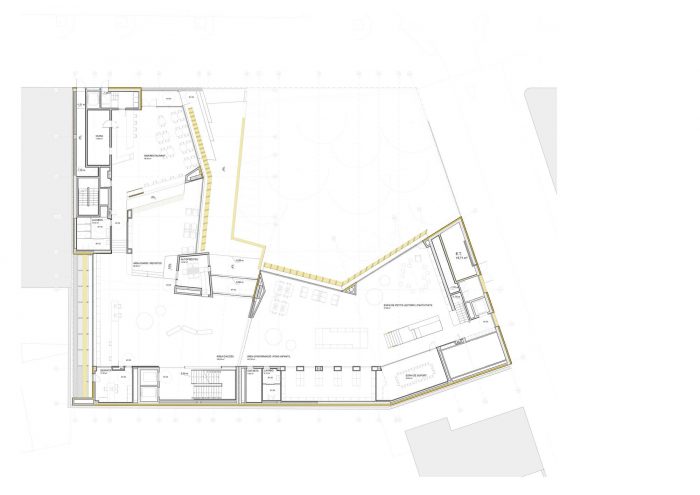
这是一个友好的建筑,它脱离了街角的排列,以 "L "形围绕着一个向城市开放的花园展开,除了作为一个在户外休息和阅读的空间外,还被设想为一个纪念空间,那里生长着10棵树,每棵树代表袭击事件的受害者。
This is a friendly building that is removed from the alignment of the street on the corner and unfolds in an 'L' shape around a garden open to the city that, in addition to being a space for resting and reading in the open air, is conceived as a memorial space, where 10 trees grow, one for each of the victims of the attack.

在立面上,横向体量与邻近建筑的城市立面融为一体,而面向花园的立面则由大型垂直木条框架解决,这些木条过滤光线,解决了室内和室外的关系,并保护阅览室免受下午阳光的影响。
In the facades, there is a difference between the lateral volumes, which are integrated with the urban facades of the neighboring buildings, and the facade facing the garden, resolved with a framework of large vertical wooden slats that filter the light, resolving the relationship between the interior and exterior and protect the reading rooms from the afternoon sun.

体积的衔接响应了区分图书馆内空间的愿望,并创造了具有家庭维度的房间,确保用户的宁静和舒适。
The articulation of the volumes responds to the desire to differentiate the spaces within the library and create rooms with a domestic dimension that ensures the tranquility and comfort of the users.

所有的阅读空间都朝向花园,花园的倾斜度也允许较低的楼层,即半地下室,向外开放,改善其空间质量,并允许该楼层有独立的通道,这给新设备的服务提供了极大的使用灵活性。
All the reading spaces are oriented towards the garden, whose inclination also allows the lower floor, semi-basement, to be opened to the outside, improving its spatial quality and allowing this floor to have independent access, which gives great flexibility of use to the services of the new equipment.

主要的通道在花园里有一个平滑的切向坡道,可以进入到主厅、儿童区、杂志区和酒吧餐厅整合的那一层。
The main access goes up a smooth tangential ramp in the garden and gives access to the floor where the main hall, the children's area, the magazine area, and the bar-restaurant are integrated.

内部构思为一个连续的空间,允许阅读和整个公民、娱乐、文化和教育活动的集合在中心。
体积的相互连接允许其中一个屋顶,直接从阅览室进入,成为一个露台和户外阅读空间。
空间的内部夜间照明通过大型的水平灯来促进空间的横向分隔,其屏幕提供了纸莎草的图像,这是东地中海地区的第一个书写媒介。每个屏幕上都有一个世界上现有的字母或书写系统的铭文。在上层房间,面向城市屋顶的视角揭示了铭文的含义。知识照亮了生活。
The interior is conceived in a succession of spaces that allow reading and the entire collection of civic, recreational, cultural, and educational activities in the center.
The interconnection of the volumes allows one of the roofs, directly accessible from the reading rooms, to become a terrace and outdoor reading space.
The interior night lighting of the spaces contributes to the transversal compartmentalization of the spaces through large horizontal lamps whose screen offers the image of papyrus, the first writing medium in the Eastern Mediterranean. Each of the screens includes an inscription in one of the existing alphabets or writing systems in the world. In the upper room, the viewpoint, facing the roofs of the city, reveals the meaning of the inscription: Knowledge illuminates life.












Architects: BCQ Arquitectura, Toni Casamor
Area : 55628 ft²
Year : 2022
Photographs :Toni Casamor
Autores : Toni Casamor, BCQ Arquitectura
Program : Biblioteca
City : Vic
Country : Spain