屋顶变成了一个板式花园
这座位于圣保罗市的房子属于同一个家庭的第三代,为了接待新的住户--一对年轻的夫妇和他们的狗,它被翻新了。过于隔断的空间,低矮的照明和低矮的天花板,没有达到预期的效果。
A roof turned into a slab garden
Belonging to the third generation of the same family, this house in the city of Sao Paulo was renovated to receive the new residents, a young couple and their dog. The overly compartmentalized spaces with low lighting and low ceiling did not meet expectations.



为了使房子适应当代的生活方式,旧的结构被拆除了,只保留了砖石墙,这些墙是由实心砖制成的,具有结构功能。
In order to adapt the house to the contemporary way of living, the old structure was demolished and only the masonry walls were maintained, which are made of solid brick and had a structural function.


拆除后,4x24米的城市地块被新方案占据,新方案分为三个层次:底层、上层和花园盖。
After the demolition, the urban plot measuring 4x24 meters was occupied with the new program which was divided into three levels: ground floor, upper and garden cover.

在底层,空间组织的解释是明确的,厨房、客厅、花园、烤肉之间的对话是坦率的,没有垂直封闭。
On the ground floor the interpretation of the spatial organization is clear, the dialogue between the kitchen, living room, garden, barbecue is frank, free of vertical closures.


课程开始于正面的撤退,其中由大西洋森林的原生物种形成的景观使房子的到来具有诱惑力。进入房子的通道是一个旋转门和一个滑动框架,当它们完全打开时,可以扩展社交区域。
The course begins in the frontal retreat in which the landscaping formed by species native to the Atlantic forest makes the arrival the house seductive. The access to the house is from a pivoting door and a sliding frame, which when open completely allow the extension of the social area.

大理石烹饪岛旁边的餐桌,一边是厨房,另一边是去生活区的人的通道。厨房是由建筑师设计的木工家具组成,地板是液压砖和石凳。这些环境加起来有3.60 x 5.15米。
The dining table next to the island made of marble cooking organize on one side the kitchen and on the other the circulation of those who go to the living area. The kitchen is composed of furniture designed in carpentry by the Architects, floor in hydraulic tile and stone bench. Together, the environments measure 3.60 x 5.15 meters.

在客厅里,结构变得很明显:圆柱形截面的金属支柱、金属梁、板坯、大量的砖,最后是建筑师设计的金属板架。
In the living room, the structure becomes apparent: cylindrical section metal pillars, metal beams, panel slabs, massive bricks and finally the metal sheet shelf that was designed by the Architects.

在起居室和烤肉架之间的中央花园,接受了一个成年的jabuticabeira,在工程的最后阶段移植的。除了有助于热舒适,这棵树还与居民分享它的果实。
The central garden, between the living room and the barbecue, received an adult jabuticabeira, transplanted in the final phase of the work. In addition to contributing to thermal comfort, the tree shares its fruits with the residents.

在该地块的最后部分,烧烤炉和厕所被划分在覆盖板下面,那里有中等大小的果树。
In the final portion of the lot, the barbecue and the toilet are divided below the covering slab, which houses fruit trees of medium size.

通往上层的路线是从混合结构中执行的梯子上走的,这两组梯子本身并不接触,第一组是抛光的混凝土,另一组是折叠的金属板。
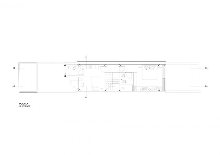
上层楼被划分为两个套间。
The route to the upper floor takes place from the ladder executed in mixed structure in two sets that do not touch itself, the first in polished concrete and the other in folded sheet metal.
The upper floor is divided between two suites.


金属梯子延伸到盖子上,可以从自动舱口进入。在升高的地板上为基础设施的通过增加了新的结构,使得在与木质甲板相同的水平上安装带花园和菜园的草坪成为可能。洗衣房和基础设施设备被解决在一个可以通过 "虾型 "穿孔金属门打开或关闭的体积中。
The metal ladder extends to the cover, which is accessed from the automated hatch. The new structure added to the raised floor for the passage of the infrastructure made possible the installation of a lawn with garden and vegetable garden on the same level as the wooden deck. The laundry and the infrastructure equipment are solved in a volume that can be opened or closed by perforated metal doors of the “shrimp type”.



























Architects: Estúdio BRA
Area: 110 m²
Year: 2017
Photographs: Maíra Acayaba
Manufacturers: Brasil Imperial, Pedras Armani, Reka Iluminação, Tableria
Construction: DJA
Structure: Estrutec Engenharia
Metal Structure: Gomez e Moraes
Authors:André Di Gregorio, Rodrigo Maçonilio
Design Team:Beatriz Rocha, Lorran Siqueira, Alanna Scarcelli, Júlia Brückmann
Landscape Design:Flávia Tiraboschi
Management:Estúdio BRA
Hydraulic:Martenge
Electrical:Martenge
Wood Work:Rutra Marcenaria
City:Pinheiros
Country:Brazil