Pistohiekka桑拿餐厅是重建Pistohiekka度假区的第一步,该度假区在20世纪80年代之前一直很繁荣,但后来就消失了。该项目以湖边桑拿和餐厅的形式将人们期待已久的服务带回了该地区。Pistohiekka桑拿-餐厅是Puisto工作室为发展Pistohiekka的旅游业和木结构建筑而设计的关键发展地点之一。这个概念拥有强烈的设计美学,基于一个中央的、弯曲的户外空间,餐厅和桑拿空间围绕它旋转。
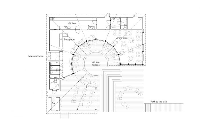
Pistohiekka sauna-restaurant is the first step towards rebuilding the Pistohiekka resort area which flourished until the 1980s but has since disappeared. The project brings long-awaited services back to the area in the form of a lakeside sauna and a restaurant. Pistohiekka sauna-restaurant is one of the key development sites in Studio Puisto’s design for developing tourism and wood construction in Pistohiekka. The concept boasts a strong design aesthetic based on a central, curved outdoor space with the restaurant and sauna spaces spiraling around it.



这些建筑位于湖边的一块土地上,在现有的树木中,它们以其深色的外墙融入精致的塞马风景,与诱人和温暖的浅色木质内饰形成对比。在桑拿-餐厅本身,湖边的风景和露台的户外休闲区发挥着重要作用。客人们可以在高质量的餐厅用餐和在桑拿房里悠闲地躺着之间享受夏日的日落。
The buildings are situated on a lakeside lot amongst existing trees where they blend into the delicate Saimaa scenery with their dark exteriors, contrasted by the inviting and warm light wooden interiors. In the sauna- the restaurant itself, the lakeside sceneries and terraced outdoor leisure areas play an important part. The guests can enjoy summertime sunsets between high-quality restaurant meals and leisurely lounging in the sauna.


皮斯托希卡(Pistohiekka)桑拿餐厅的出发点是位于宁静海湾的岩石区之间的壮丽位置。这套建筑的设计与该地区的整体开发设计一起,与项目业主一起提炼成一个独特的整体概念,突出了该地区的特殊性,使该度假村成为一个值得远道而来的地方。随着该地区的不同特征在建筑物的位置上被仔细考虑,其结果是一个概念,两座建筑物似乎邀请周围的风景进来,创造了外部和内部,无论天气如何,你都可以欣赏到美丽的塞马风景。
The starting point for the Pistohiekka sauna restaurant was the magnificent location, situated between rocky areas in a tranquil cove. The set of buildings designed along with the overall development design for the area was refined together with the project owner into a unique overall concept highlighting the particular aspects of the area and making the resort a place worth visiting even from further away. With the different features of the area carefully considered in the placement of the buildings, the result is a concept where two buildings seem to invite the surrounding scenery in, creating exteriors and interiors where you can always admire the beautiful Saimaa scenery regardless of the weather.


弯曲的餐厅内院创造了建筑内外的观景点,而有顶棚的桑拿房外墙在屋顶上有一个独特的圆形开口,创造了建筑之间的主题联系。由于有一个顶级的专业团队,从设计到施工,一直到最终的结果,都进行得很顺利,很迅速。由于项目业主的决心和承包商的技术水平,原来的概念在最终的结果中真正闪耀。
The curved inner courtyard of the restaurant creates viewpoints both in and out of the building, and the covered sauna exteriors with a unique, round opening in the roof create a thematic link between the buildings. Thanks to a team of top professionals, the process from design to construction and all the way to the finished result went smoothly and quickly. The original concept truly shines in the end result thanks to the determination of the project owners and the skill level of the contractors.
















Architects: Studio Puisto
Area : 715 m²
Year : 2022
Photographs :Marc Goodwin
City : Puumala
Country : Finland