PK26是一个混合用途的建筑,位于保加利亚瓦尔纳的中心地带。该地块所处的社区主要是一些道德和物理上过时的单一住房单元,没有任何美学或建筑价值。实际上,这是该地区通过的城市发展总体规划所预见的第一座新建建筑,这使我们能够创造出一个具有独特的简约形式的现代建筑。
PK26 is a mixed-use building, situated in the central part of Varna, Bulgaria. The neighborhood, in which the plot is situated, is predominantly filled with morally and physically outdated single-housing units with no aesthetic or architectural value. In reality, this is the first new-built edifice foreseen by the adopted Urban Development Masterplan for the area which allows us to create a contemporary building with a distinguishable minimalistic form.



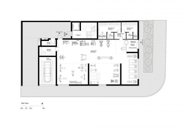
邻近地块丰富的绿色植物和当地的基础设施网络也强调了这条线路,因为它们在视觉上与外墙的实体和空隙模式配合得很好。预算、美学和功能之间的平衡是投资理念的基础,以创造一个谨慎和现代的建筑。它的项目分布在地上九层和地下两层停车场。它由一个健身房、灵活的出租空间、办公室和公寓组成。
The rich greenery in the neighboring plot and the local infrastructure grid additionally emphasizes this line, as they visually work well together with the facades’ solids and voids pattern. The balance between budget, aesthetics, and function is at the base of the investment concept, in order to create a discreet and modern building. Its program is distributed throughout nine floors above ground and two underground parking levels. It consists of a gym, flexible spaces for rent, offices, and apartments.




一个精品健身房位于底层,是由工作室设计的。它的概念是拥有一个现代的24/7健身俱乐部,在那里不需要工作人员,并提供可控的访问。通过扫描由专门开发的应用程序生成的二维码,通过个人联锁系统进入该场所。这样一个创新和高科技的概念对当地市场来说是一个新的东西,这使得该健身房在该地区是独一无二的。
A boutique gym is located on the ground floor which is designed by the studio. Its concept is having a contemporary 24/7 fitness club, where no staff is needed and controlled access is provided. Entering the premises happens through a personal interlock system after scanning a QR code that is generated from a specially developed app. Such an innovative and hi-tech concept is something new for the local market, which makes the gym one of a kind for the region.


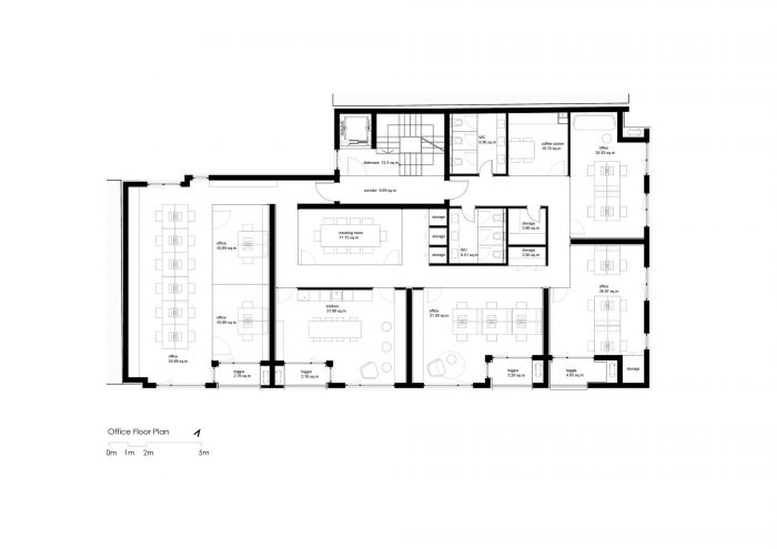
在上层,所有的场所都可以占据整个平面,这要归功于拉长的建筑体量,从一端到另一端都可以看到,人们可以享受到黑海的美景。公寓和办公室的设计方式非常相似,几乎没有区别,实现了把工作场所当作自己家的概念。
Going to the upper floors, all the premises could occupy the whole floor plan thanks to the elongated building volume having views from one end to another, where a person could enjoy the vista towards the Black Sea. Both the apartments and offices are designed in a very similar manner, that is almost not distinguishable from one another, implementing the concept of experiencing the workplace as your home.


作为一个混合用途的建筑,项目的概念是提供一种与当今不断变化的动态有关的居住方式。每天的活动都集中在一个中等规模的建筑中,这使得人们可以在一天的时间内保留时间和精力,从而可以将其用于个人生活、爱好和家庭。
As a mixed-use building, the project’s concept is to offer a way of inhabiting that is co-related with nowadays’ ever-changing dynamics. Everyday activities are concentrated in a medium-sized building, which allows a person to preserve time and energy over the span of a single day, that could be channeled to their personal life, hobbies, and family.
















Architects: STARH
Area: 4246 m²
Year: 2020
Photographs: Dian Stanchev
Manufacturers: Baumit, Grohe, Kronospan, POLYREY, Saint-Gobain, Wienerberger, dormakaba, King Klinker, Knauf Ceiling Solutions, Life Fitness, Pavigym, Porcelanosa
Architectural design: Iva Kostova, Radostina Petkova, Peter Nikolov, Dimitar Katsarov, Ivan Kovachev, Borislav Stanchev, Hristo Dushev, Sanya Kovacheva, Vladimir Kavaev, Georgi Pasev
Interior Contractor: Fison Build
Architectural Design, Interior Design:Svetoslav Stanislavov, Debora Dimitrova, Desislava Georgieva
Interior Design:Barbara den Breejen
City:Varna
Country:Bulgaria