Plas Gwyn是一个被列为二级*的农舍,也是北威尔士的二级建筑,可以追溯到16世纪。唐纳德-英索尔事务所被委托对房子进行敏感的修复,并提供一个适合现代生活的现代扩展,同时尊重农舍的历史意义和特征。这种 "plas "具有独特的阶梯式屋檐,是一种罕见的建筑类型,在17世纪末之前是斯诺多尼亚地区最主要的贵族住宅形式。
Plas Gwyn is a Grade-II* listed farmhouse and with Grade-II listed buildings in North Wales dating from the 16th century. Donald Insall Associates was commissioned to sensitively restore the house and provide a contemporary extension fit for modern living whilst respecting the farmhouse’s historic significance and character. With distinctive stepped gables, this ‘plas’ is a rare building type and was the dominant gentry house form in Snowdonia before the end of the 17th century.




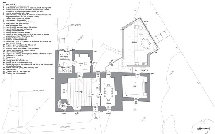
在创建单层的新扩展部分时,尊重被列入清单的农舍的原始设计完整性是一个关键的考虑因素,该扩展部分容纳了一个厨房和非正式的用餐空间。低矮的外形确保了,虽然提高了高度以允许平视,但它位于现有乳品厂的屋脊线以下,最大限度地减少了对房屋的影响。扩建部分的脚印特意与乳品厂的边界墙保持一致,以确保伊丽莎白时代范围的后部仍然是主要的。细长的双层玻璃窗向北倾斜,可以看到开阔的乡村、斯诺多尼亚国家公园及其山麓的壮丽景色。一个玻璃链接连接到历史上的房子,使历史上的砖石墙可以清楚地看到。
Respecting the original design integrity of the listed farmhouse was a key consideration in the creation of the single-storey new extension which houses a kitchen and informal dining space. The low profile ensures that, although raised to allow level-access, it sits below the ridge line of the existing dairy, minimising impact onto the house. The foot print of the extension is deliberately aligned with the boundary walls of the dairy to ensure that the rear of the Elizabethan range will still be dominant. Slim-profile double glazed windows angle to the north to give magnificent views of open countryside, Snowdonia National Park and its foothills beyond. A glazed link connects to the historic house and allows the historic masonry wall to be clearly seen.


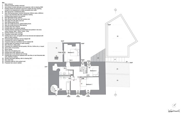
提供扩建允许保留乳制品,这对19世纪的农业改进发展具有重要意义,并对历史上的房子进行了仔细的维修。改建内容包括大厅的地板采暖和维多利亚时代的后部扩建。 封闭的历史窗户被打开,为石阶提供了额外的光线,拆除了内部的隔断,创造了一个扩大的主卧室。Plas Gwyn在威尔士的名录建筑中排名前8%。 每一个元素都明显具有其时代特征,翻新和现代扩展清楚地表明了在历史背景下的敏感设计。该房屋可通过Airbnb出租。
Providing the extension allowed for the retention of the dairy, significant in relation to the developments of agricultural improvements in the 19th century, and the careful repair of the historic house. Alterations included underfloor heating to the hall and Victorian rear extension. Blocked historic windows were opened up to provide additional light to the stone stair, and the removal of an internal partition created an enlarged main bedroom. Plas Gwyn is in the top 8% of the listed buildings in Wales. With each element visibly of its time, the renovation and contemporary extension clearly demonstrates sensitive design within a historic context. The house is available for let via Airbnb.












Architects: Donald Insall Associates
Area : 200 m²
Year : 2019
Photographs :Andy Marshall
Manufacturers : AutoDesk, Firestone Building Products, Broadleaf, Greenway Architectural Glass, Masterclass Kitchens, Trimble, Ty Mawr, VMZINC, Wolf System
Clients : Jim Ellis
Engineering : Datrys
City : Pwllheli
Country : United Kingdom