Hawkins/Brown将Plumstead高街的一座未被充分利用的图书馆建筑改造成一个综合中心,代表格林威治皇家区提供公共文化、休闲和体育设施。新的设施包括独立的儿童和成人图书馆、咖啡馆、灵活的合作空间、健身房和羽毛球场,以及两个用于表演艺术、瑜伽或展览的大型工作室。
Hawkins\Brown has transformed an under-used library building on Plumstead High Street into a combined centre that provides public cultural, leisure and sports facilities on behalf of the Royal Borough of Greenwich. New amenities include separate children’s and adults’ libraries, a café, flexible collaboration space, a gym and badminton court, and two large studios for performing arts, yoga, or exhibitions.




普拉姆斯蒂德中心的建成标志着格林威治皇家区为普拉姆斯蒂德制定的城市框架的第一个阶段。该项目的合作方式是由重新定义的 "当地图书馆 "的目的驱动的,为现有建筑带来了新的生命,并为普朗斯蒂德的人们创造了一个新的目的地。
The completion of The Plumstead Centre marks the first phase of the Royal Borough of Greenwich’s Urban Framework for Plumstead. The collaborative approach to the project has been driven by a redefined purpose of the ‘local library’, bringing new life to the existing building and creating a new destination for the people of Plumstead.

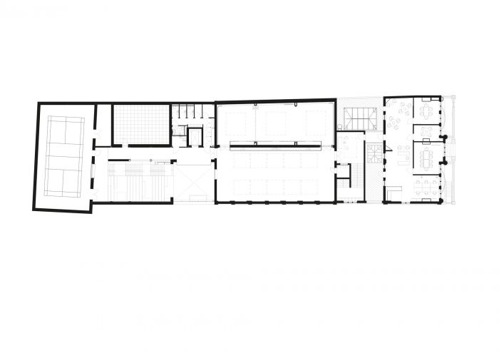
普拉姆斯蒂德图书馆的重建工作保留并加强了现有图书馆建筑的历史特征,对内部进行了翻新,使其符合现代标准,并提供了升级的设施。图书馆建筑后部的两层扩建部分为新的休闲设施提供了一个家。在新旧之间的门槛上,一个全高的玻璃 "盒子 "创造了一个新的、可平移的入口,通向一个非正式的社交空间,强调了该建筑作为一个开放的公民中心的功能。
The redevelopment of the Grade II listed Plumstead Library has preserved and enhanced the historic character of the existing library building, refurbishing the interior to bring it in line with modern standards and provide upgraded amenities throughout. A two-storey extension to the rear of the library building provides a home to new leisure facilities. At the threshold between old and new, a full-height glazed ‘box’ creates a new, level-access entrance that leads to an informal social space that emphasizes the building’s function as an open civic centre.


扩建部分采用了与图书馆相同的材料:砖、玻璃和金属被用来创造一个现代的建筑,它与邻居的风格是一致的,但又是不同的。在新建筑的中心,入口和 "书山 "提供了一个非正式的社会环境,供人们阅读、工作或简单地眺望整个建筑的其他部分。该中心的设计以开放性和包容性为核心,使用户可以通过不同的空间和活动看遍整个建筑,从一端到另一端,欢迎所有人。
The extension has been constructed in the same materials as the library: brick, glass and metal are used to create a modern building that is sympathetic, but stylistically distinct from its neighbour. At the heart of the new building, the entrance and ‘book mountain’ provide an informal social setting for reading, working, or simply looking out across the rest of the building. The centre has been designed with openness and inclusiveness at its core, allowing users to look across the full length of the building, through the different spaces and activities, from one end to the other, welcoming all.

图书馆的许多原始特征在现有建筑的剥离过程中被揭示出来,整修工程给它们带来了新的生命。楼上工作室中隐藏了70多年的桶状拱形天窗已被打开,现在为灵活的工作室空间提供自然光。原有的镶木地板在整个建筑中得到了恢复,主楼梯间的马赛克瓷砖也得到了恢复。
Many original features of the library were revealed during the strip-out of the existing buildings and the refurbishment has given them a new lease of life. Barrel-vaulted skylights in the upstairs studio, which were hidden away for over 70 years, have been opened up and now provide natural light within the flexible studio spaces. Original parquet flooring has been restored throughout the building, as has mosaic tiling in the main stairwell.

除了加强图书馆的现有功能—提供舒适的阅读和工作间,并增加信息技术的供应--HawkinsBrown还向公众开放了整个挂牌建筑和扩建部分,而以前只有30%可以使用。在253米长的定制书架后面,服务沿着现有的墙壁交织在一起,使原有的建筑特色得到了彰显。
As well as enhancing the library’s existing functions – with comfortable reading and working rooms and an increase in IT provision – Hawkins\Brown has opened the entirety of the listed building and extension to the public, when only 30% was previously accessible. Services are woven along the existing walls behind 253m of bespoke shelving, allowing the original architectural features to be celebrated.









Architects: Hawkins\Brown
Area : 2329 m²
Year : 2020
Photographs :Jack Hobhouse
Manufacturers : Lazenby, Nora, Aluk, Dynamik, Fired Earth, Havwoods, Janinhoff klinker, Johnson Tiles, Mosa, Object Carpet
Principal Contractor : Osbourne
Services Engineer : Stantec
Cdm Coordinator : Faithful & Gould
Approved Building Inspector : MLM, RGB Contractors
City : Plumstead
Country : United Kingdom