POG的房子位于法国布列塔尼的Arradon。布列塔尼是一个具有强烈特征的地区,因为它的语言、它的美食、它与大西洋的联系以及它的建筑。布列塔尼的传统建筑保存完好,由花岗岩房屋组成,有小的开口,可以抵御风暴,屋顶是石板,这种石头最初产于邻近的昂热镇。如今,占房屋建筑90%的大规模建筑是由涂有白色涂层的混凝土块和从西班牙进口的石板屋顶组成的。除了这些经典特征外,建筑商一般还增加了平行四边形的体量,模仿勒-柯布西耶在1930年代的现代建筑。
The POG house is located in Arradon, Brittany, France. Brittany is a region with a strong identity because of its language, its gastronomy, its link with the Atlantic Ocean, and its architecture. The traditional architecture, well preserved, is made up of granite houses with small openings protecting from storms and slate roofs, a stone originally produced in the neighboring town of Angers. Nowadays, mass construction, constituting 90% of house construction, is made of concrete blocks coated in white and gable roofs made of stone slate imported from Spain. In addition to these classic characteristics, builders generally add a parallelepipedal volume, imitating the modern architecture of the 1930s by Le Corbusier.



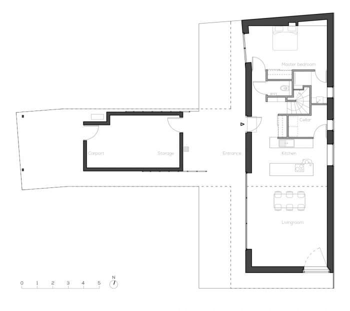
POG的房子位于一个由这种类型的房子组成的住宅生活区,可以追溯到80年代。这个项目的挑战很简单: 构思一栋与周围环境融为一体的房子,接受当地建筑的规范,同时满足客户想要一个现代房子的愿望。此外,该地区受到特殊城市法规的保护,需要由专门从事建筑项目历史/遗产方面的委员会建筑师进行验证。
The POG house is located in a residential living quarter composed of this typology of house, dating from the 1980s. The challenge of the project is simple: To conceive a house integrated into its neighborhood, taking up the codes of local architecture, while responding to the client’s wishes who wants a modern house. Moreover, the area is protected by a special urban regulation which requires validation by a council architect specialized in the historical/heritage aspects of architectural projects.


房子是由砖石砌成的,像邻居的房子一样用白色抹灰。当地不再生产石板,因此它不再有意义。它被像石板一样的深色铝所取代。屋顶和木质框架构成了传统的檐形屋顶。然而,屋顶的坡度,通常是45°,被增加到60°,以细化房屋的轮廓。西北和东北方向的外墙不太开放,但可以看到美丽的树木。在东南和西南方向,房子被大大地打开,在内部和外部之间创造了一个强有力的联系。
The house is made of masonry plastered in white like the neighbor houses. Slate is no longer produced locally, and therefore it no longer makes sense. It is replaced by aluminum in a dark color like slate. The roof and the timber frame make up the traditional gable roof. However, the slope of the roof, usually 45°, is increased to 60° to refine the silhouette of the house. To the North-West and North-East, the facades are less open but offer a view toward beautiful trees. To the South-East and South-West, the house is generously opened creating a strong link between the interior and the exterior.



自然光大量进入房屋,其双层高的客厅为喜欢弹奏竖琴的客户提供了一个壮观的体积。楼上的卧室由于屋顶的陡峭坡度而受益于一个非典型的印度帐篷形状的体积。其中一间在树上有一个视角,就像一个小木屋,而另一间则可以鸟瞰双层高度的客厅。在整个房子里,光线和空间的设计是为了创造一个和平和慷慨的气氛。墙壁和天花板是白色的,放大了光线。木制的窗户和地板使光线变得温暖和柔和,产生一种舒适的氛围。
Natural light enters generously into the house whose double-height living room offers a spectacular volume to the client who likes to play the harp. Upstairs, the bedrooms benefit from an atypical volume in the shape of an Indian teepee due to the steep slope of the roof. One has a viewpoint in a tree, like a cabin, and the other has a bird's eye view of the double-height living room. Throughout the house, light and space are designed to create a peaceful and generous atmosphere. The walls and ceilings are white, amplifying the light. The wooden windows and floor warm and soften the light to produce a cozy ambiance.



















Architects: NODE architectes
Area: 115 m²
Year: 2019
Photographs:François Dantart
Manufacturers: Isover, MCFrance, PREFA, Velux
Thermal Engineering Consultant: Tyéco2
Painter: L'arbre à couleurs
Masonry: Vaugrenard
Roofing: Mauguen couverture
Architect: Willy Durieu
Insulation: Nicolas Boursicot
City: Arradon
Country: France