便携式小屋是一个由两个经过改造的海运集装箱组成的全年生活空间。投资者是一对勇敢的人,他们与临时建筑有接触,并有兴趣寻找有趣和难以适应的空间。实施便携式小屋和远程工作场所,结果是对现在的时代做出了很好的回应。该设施目前位于波兹南Szelagowski公园旁边的社区花园,在未来,它要去森林,最终站在水上。集装箱在生产车间完全准备好了,而它的运输和在地块上的组装花了一天时间,现场只剩下最后的内部整理工作。
Portable cabin is a year-round living space made of two adapted shipping containers. Investors are a couple of brave people who have contact with temporary architecture and are interested in searching for interesting and difficult to adapt spaces. The implementation of a portable cabin and remote workplace turned out to be a great response to the present times. The facility is currently located at the community garden next to the Szelagowski Park in Poznan, and in the future, it is to go to the forest and ultimately stand on the water. Containers were fully prepared in the production hall, while its transport and assembly on the plot took one day, and only the last internal finishing works remained on site.



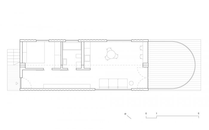
小木屋部分被放置在之前站立的集装箱的屋顶上,这些集装箱作为花园的存储空间。由于地形和景观的倾斜,固体被移开了一半的长度,在一侧创造了一个大的露台,面向附近的河流,在另一侧,它更接近地块,降低了进入地块所需的高度。船舱由两个货运集装箱组成,12 x 2.5米,高2.9米。
The cabin was partially placed on the roof of previously standing containers, which serve as storage space for a garden. Due to the sloping terrain and views, the solid was shifted by half its length, creating a large terrace on one side facing the nearby river, and on the other side, it came closer to the plot, lowering the height needed to enter it. The cabin consists of two cargo shipping containers, 12 x 2.5 m and 2.9 m high.


通过安排里面的功能,包括带厨房的客厅、工作场所、卧室和带浴缸的浴室,可以获得总共54平方米的可用空间和24平方米的露台绿化空间。便携式小木屋的墙壁是用喷涂泡沫保温的,并用桦木胶合板装饰,这给室内带来了一种独特的氛围。通过使用适当的材料,有可能在光线下获得2.6米的内部高度,并隐藏连接集装箱框架时产生的门楣。
By arranging the function inside, which includes a living room with a kitchen, place to work, bedroom, and bathroom with bathtub, it was possible to obtain a total of 54 m2 of usable space and 24 m2 of space among greenery on the terrace. The walls of the portable cabin are insulated with spray foam and finished with birch plywood, which gives a unique atmosphere inside. By using appropriate materials, it was possible to obtain 2.6 m of internal height in the light and to hide the lintel created when connecting container frames.

由厚重的梯形金属板制成的特色外墙被有意留下,以显示原始建筑材料的真诚。墙面被涂成昏暗的绿色,使物体与周围环境融为一体。在俯瞰河流的生活区,在原来金属门的地方安装了大型阳台窗户。在侧立面,窗户被放置在墙体高度的中间,以留下尽可能多的室内布置选择。
The characteristic façade made of thick trapezoidal sheet metal was intentionally left to show the sincerity of the raw construction material. The walls are painted a dim green color which blends the object with the surroundings. In the living area overlooking the river, large balcony windows have been installed in the places where the metal gates were located. On the side elevations, windows have been placed in the middle of the wall height to leave as many interior arrangement options as possible.


它们是方形的,在风格上完美地融入了一个简单的形状,并根据其功能,组合成双倍和三倍的配置。该设施与设计的外部钢楼梯和露台上的特色拱形栏杆相得益彰。照片中的家具,即一张长凳、一张桌子和一把带圆形靠背的椅子,也是我们设计的。
They are squares that stylistically fit perfectly into a simple shape and, depending on their function, combine into double and triple configurations. The facility is complemented by designed external steel stairs and a characteristic arched balustrade on the terrace. The furniture shown in the photos, i.e. a bench, a table and a chair with a round backrest, are also of our design.

这种设施的最大优势在于其流动性。在这种情况下,房子不再是被束缚在一个特定地点的财产,而是可以随着业主生活的变化而改变其位置。
The great advantage of this facility is its mobility. In this case, the house ceases to be a property tied to a specific place, but it can change its location along with the changes accompanying the life of the owners.















Architects: wiercinski-studio
Area: 60 m²
Year: 2020
Photographs: ONI Studio
Manufacturers: Ikea, Rako
Lead Architects: Adam Wiercinski
Contractor:Modulo
City:Poznan
Country:Poland