在完成客户的威尼斯海滨住宅多年后,建筑师Dan Brunn被要求提供第二座海滨住宅,与第一座住宅仅一箭之遥。他提出了一个直接的要求,即建造一个能够承受恶劣的海洋气候,并且维护量最小的结构。Brunn的直接设计反应是建造一个全混凝土结构。
Years after completing a client’s Venice beachfront home, Architect Dan Brunn was tasked with delivering a second beach house, just a stone’s throw from the first one. A straightforward request was made, to build a structure that would sustain the harsh marine weather with minimal maintenance. Brunn’s immediate design response was to construct an all-concrete structure.



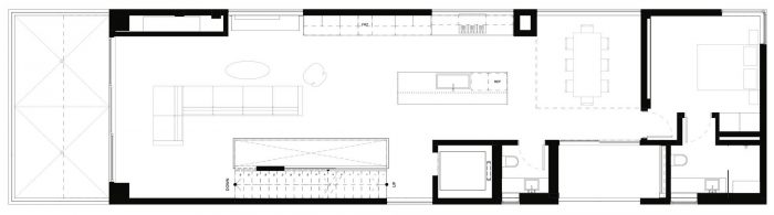
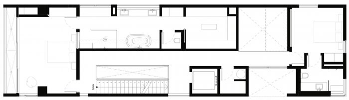
建在一个密集的场地上,面向海滩,宽度只有28英尺,这种条件要求对细节给予极大的关注,以允许动态的建筑程序、自然光和户外空间。
Built on a dense site, fronting the beach and measuring a narrow 28’ in width, the conditions demanded extreme attention to detail to allow for a dynamic building program, natural light, and outdoor space.



Brunn的设计从空间规划开始,通过在3D BIM软件中堆叠虚拟立方体来构思,直到解决了一个合适的设计,可以满足景观、隐私和自然光的对比。一般来说,设计的立方体性质导致了一种推拉,具有积极和消极空间的双重性,因此被命名为。正负的。人们可以把这个设计比作一块被凿开的石头;作为一个坚实的体块,在其原本沉重的性质中,有轻盈的空气空间。
Brunn’s design began with spatial programming, conceived by stacking virtual cubes in 3D BIM software until an appropriate design was resolved that could answer to the contrast of the view, privacy, and natural light. The generally cubic nature of the design resulted in a push and pull, with a duality of positive and negative spaces, hence named: Positively Negative. One can compare the design to a stone that has been chiseled away; as a solid mass with light airy spaces within its otherwise heavy nature.

设计方法的一个组成部分是循环的编排,其特点是空间和结构的安排,使你在整个空间移动时有一个充满活力的导航步伐。这种体验被中央楼梯的中庭所点缀,其重复的形状形成了一连串的右转来下降每一层。
Integral to the design approach is the choreography of circulation, which is characterized by a spatial and structural arrangement that allows for a vibrantly navigated pace as you move throughout the space. This experience is notably punctuated by the central staircase atrium, whose repetitive shape forms a sequence of right turns to descend each level.


形成的步行模式,突出了广阔无垠的视野的多个有利位置,带来了凄美的视觉冲击。以用户体验来处理建筑问题与Brunn的人本主义方法是一致的,他称之为 "移情设计",其目的是引起思考和参与。
The walking pattern that arises is highlighted with multiple vantage points of the immense expanse of unfurling vistas and delivers a poignant visual impact. Addressing architecture with the user experience in mind is consistent with Brunn’s humanistic approach, which he dubs “Empathetic Design” which is intended to elicit reflection and engagement.

大量空间的组合、开放的阳台和不同的材料,渗透到了生态友好设计方法的各个方面。主体结构由垂直的板状混凝土建成,由光滑的白色石膏墙、哑光的木制品和光亮的水磨石地板点缀而成。屋顶上有一个高效的太阳能系统,而被动冷却和地板辐射采暖则为住宅提供了条件。
An assemblage of voluminous spaces, open balconies, and varied materials, permeate all aspects of the ecologically friendly design approach. The main structure, built out of vertical board-formed concrete, is punctuated by smooth, white plaster walls, matte wood millwork, and glossy terrazzo floors. On the roof is an efficient solar energy system, while passive cooling and radiant floor heating condition the home.


































Architects: Dan Brunn Architecture
Area: 2520 m²
Year: 2021
Photographs: Brandon Shigeta
Manufacturers: Atlas Concorde, Mosa, Caesarstone, Concrete Collaborative, Miele, Cambridge Elevating, SYNLawn, StyleLine, Sun Valley Skylights
Lead Architects: Dan Brunn
Civil: Obando and Associates
General Contractor: RJC Builders
Structural Engineer: Franceschi Engineering
Audio Video:One Button
City:Los Angeles
Country:United States