一个简单的、单层的、无障碍的房子不是一个纪念碑,而是为所有年龄段的用户提供的工具/设计的本质是最大的开放性和透明度,光线和空气/没有展示建筑的规模,而是强调它的公共服务/四个独立的部分(医生办公室、多功能厅、市政府、邮局)由前庭连接/前庭是一个拱廊,在舞会期间是一个 "缓解 "区。舞会、活动和音乐会期间,前厅是拱廊和 "休息 "区,偶尔也是展览空间/内部中庭照亮内部空间/相互协同,各部分可根据实际使用情况而变化/中性材料用于内部空间的民用特性和光线/正面的图案外墙有一个可变的银白色反光效果,使市民对 "抽象箱 "有更多的认同感
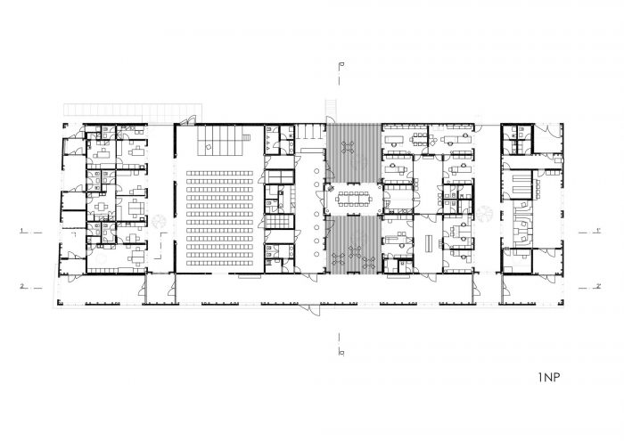
A simple, single-story, accessible house is not a monument but rather an instrument for it’s users of all ages / The essence of the design is maximum openness and transparency, light and air / no demonstration of the magnitude of the building but an emphasis on it’s public service instead / four separate sections (doctors' offices, multifunctional hall, municipality, post office) connected by the vestibule / vestibule as an arcade and a "relieving" area during balls, events and concerts and a occasional space for exhibitions / the inner atrium to illuminate internal spaces / mutual synergy, sections may vary according to the actual use / neutral materials for the civil character of the interior space and the light / front side of the patterned façade has a variable silver-white, reflective effect for greater identification of citizens with a "abstract box"





结构和技术
承重结构由一个坚实的4×4米的木质框架构成/外墙和屋顶覆盖有隔热板/用于结构和声学目的的部分liapor衬里/Panbex地板/外部为铝质填充物,内部为木质/广泛的绿色屋顶/用空气-空气热泵进行加热和冷却/电锅炉+公共区域的地板加热作为附加热源/大厅的强制通风系统、安全、音频视频
Structure and technology
load-bearing structure made of a solid, wooden 4 x 4m frame / facade and roof from the exterior side covered with thermal insulating panels / partial liapor lining for structural and acoustic purposes / Panbex flooring / aluminum fills on the outside, wooden inside / extensive green roof / heating and cooling with air-air heat pumps / electric boiler + underfloor heating in common areas as an additional heat source / forced ventilation system in the hall, security, audio video




















Architects: A.LT Architekti
Area: 1685 m²
Year: 2018
Photographs: Tomáš Balej
Manufacturers: Trimo, Liapor, Panbex, Tesařství Biskup
City:PRAHA
Country:Czech Republic