版画工作室位于圣布伦丹路(St Brendan's Way)的人行道上,新都柏林工业大学格朗戈尔曼校区的边缘地带与前布罗德斯通火车站和公共汽车站的工业景观相遇。
The Printmaking Workshop is located along the pedestrianized St Brendan’s Way, where the fringe of the new TU Dublin Grangegorman Campus meets the industrial landscape of the former Broadstone Railway Station and Bus Depot.




作为对校园内所有基本建设项目进行的公正和无偏见的选择评估的一部分,版画工作室最初有可能被安排在模块化的小屋里。 在我们研究的早期阶段,我们的团队证明了一个专门建造的、光线充足的、坚固的、灵活的解决方案更有价值,也能提供多种未来用途。尽管有经济效益,一个适合的环境将为最终用户、大学校园提供巨大的收益,并为当地社区带来巨大的社会红利。
The Printmaking Workshop was at first potentially destined to be provided in modular cabins, as part of an impartial and unbiased options appraisal undertaken for all capital projects on campus. During the early stages of our research, our team demonstrated better value for money with a purpose-built, well-lit, robust, and flexible solution also offering a multitude of future uses. Notwithstanding the economic benefits, a fit-for-purpose environment would offer significant gains for the end-users, the University campus, and a significant social dividend for the local communities.

短暂的交付计划要求建筑形式是现成的、普遍的、简单的,并且为业界所熟悉,以确保一系列中小型承包商的竞争兴趣。
该结构包括重复的钢框架桁架,采用标准的钢截面尺寸,包覆在低成本的薄金属衬板、厚矿棉保温层和通常用于快速建造工业建筑的波纹钢包层中。 对经济手段的关注和对建筑外部边缘的关注使其具有通常与这些建筑类型无关的精确性和精致性。 在内部,我们开发了数量有限、不复杂但目的明确的建筑细节。
A short delivery program demanded forms of construction that were readily available, commonplace, simple to build, and familiar to the industry to ensure competitive interest from a range of Contractors at the small to medium scale.
The structure comprises repetitive steel frame trusses on columns using standard steel section sizes enveloped in built-up layers of low-cost thin metal liner sheets, thick mineral wool insulation, and corrugated steel cladding normally used on rapid-build industrial buildings. A focus on an economy of means and attention to the external edges of the building lends it precision and refinement not normally associated with these building types. Internally we developed construction details that were limited in number, unsophisticated but purposeful.

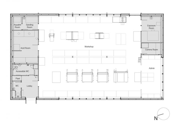
微妙的空间特征,如桁架底弦,类似于莸的柱子,脚轮上的可移动墙体,以及南面的全玻璃行政附属建筑,在一个简单的围墙内产生了节点和重叠的房间式的划分。 车间的目的不是为了表现或模仿工业空间。相反,我们正在寻找一个具有特殊性质的地方,一个用于生产的地方,一个可以有力地参与和改变的地方。
Subtle spatial characters such as the truss bottom chords, caryatid-like UC columns, moveable walls on castors, and a fully glazed Admin annex to the south produce nodal points and overlapping room-like divisions within a simple enclosure. The Workshop was not intended as a representation or pastiche of industrial space. Instead, we were searching for a place of a specific character, a place for production, a place to be robustly engaged with and altered.


锯齿形屋顶的方向是最佳的,有三个全玻璃的北灯和朝南的斜屋顶,在最南边的窗台上有40个光伏电池板的完整阵列。 在中央的三个窗台下是大型的自然采光的主车间,用于非化学工艺,而需要控制环境的酸蚀和水印则在与车间相邻的北部和南部的小型技术室进行。
这座独特的建筑位于东四区入口对面的圣布伦丹路(St Brendan's Way)步行街上,这条步行街将校园与布罗德斯通(Broadstone)Luas车站连接起来。这个突出的位置使街道生活从字面上划过大学生活。从St Brendan's Way,全高的窗户可以看到车间的深处。这意味着学生和教职员工工作的实践性质--在当前向虚拟交流手段倾斜的情况下越来越少--不断地被展示出来。
The saw-tooth roof form is orientated optimally, with three fully glazed north lights and south-facing sloped roofs hosting a full array of 40 photovoltaic panels on the southernmost bay. Under the three central bays are the large naturally lit main workshop for non-chemical processes, whilst acid etching and aquatinting, requiring controlled environments, take place in smaller technical rooms adjoining the workshop to the north and south.
The distinctive building edges itself onto the pedestrian St Brendan’s Way opposite the entrance to the East Quad which links the campus to Broadstone Luas stop. This prominent location allows street life to quite literally slice through university life. From St Brendan’s Way, full height windows allow views deep into the Workshop. It means that the hands-on nature of the student and staff work — increasingly rare in the current tilt to virtual means of communication — is on show constantly.





















Architects: Plus Architecture, Scullion Architects
Area: 320 m²
Year: 2021
Photographs: Aisling McCoy
Manufacturers: Eternal Cladding and Roofing Supplier, Eternal Roofing and Cladding Installer, Window Installer, Window Supplier
Contractor: Weslin Construction Limited
Service Engineer: OCSC
Quantity Surveyor: Cogent Associates
Structural Engineer:Nicholas O'Dwyer
Client:Grangegorman Development Agency
Project Architects:Scullion Architects, PLUS Architecture
City:Dublin
Country:Ireland