安特卫普是著名的照明解决方案的创造者和建设者的故乡,对一个历史悠久的仓库进行了无厘头的改造和设计。
No-nonsense renovation and design of a listed historic warehouse for the Antwerp home of these renowned creators and builders of lighting solutions.





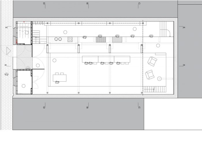
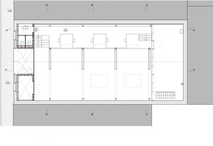
工作室混合了新的和现有的结构和层次,为员工和客户提供了一个创造性的平台。泥土色和基本材料沐浴在微妙的暗光中。
The workshop is a mix of new and existing constructions and levels and forms a creative platform for employees and customers alike. Earthy colours and basic materials are bathed in subtle dim light.

机房将自然和日光引入建筑中。
The plant room brings nature and daylight into the building.
























建筑师: B-architecten
面积:262平方米
年份:2019年
摄影:Ilse Liekens
设计团队:Evert Crols, Dirk Engelen, Sven Grooten, Sebastiaan Leroy, Kristel Posen
城市 : 安特卫普
国家:比利时
Architects: B-architecten
Area: 262 m²
Year: 2019
Photographs: Ilse Liekens
Design Team:Evert Crols, Dirk Engelen, Sven Grooten, Sebastiaan Leroy, Kristel Posen
City:Antwerp
Country:Belgium