这座建筑面积为502.7平方米,高3层的房子是为一个年轻的四口之家建造的。该地位于越南中部城市顺化的西北部。
This 502,7 m2 floor area and 3 storey high house is built for a young family of 4 members. The site is located in the North – West side of Hue, a city in the middle of Vietnam.



一年有两个主要季节,夏天有充足的阳光,冬天有漫长的雨季。业主希望住在这样的房子里,加强他们的家庭联系以及与周围花园的联系。
There are 2 main seasons in a year, the summer with hash sunlight and the winter with long rainy time. The owners wish to live in a house that enhances their family connection as well as the link with the surrounding gardens.



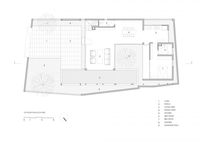
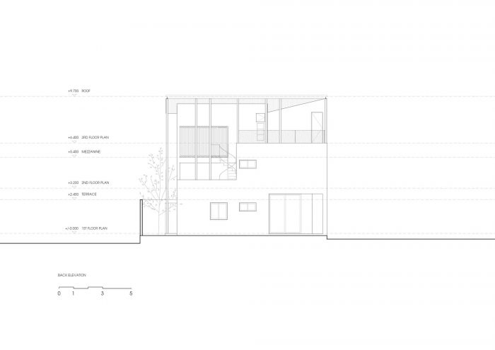
设计的目的是将房子的楼层交替堆叠(在高度和平面上),使所有主要房间的景色都能看到,并在每个楼层创建露台和阴影。
The design aims to stack the floor levels of the house alternatively (in height and plan) that allows the view throughout from all the main rooms as well as creating the terraces & shadows on each floor level.

因此,自然空气可以通过缝隙沿着房子走,有助于减少热带环境的高湿度。
As a result, the natural air can go along the house through the gaps and helps to reduce the high humidity of the tropical environment.



有了这样的结构,家庭成员之间的联系变得更好,也提供了与周围绿色植物的良好关系。各个空间都被一个大屋顶所覆盖,该屋顶向房屋中心的花园倾斜。木材百叶窗表面被用来保护私人区域不受外界和夏季阳光的影响。
With this structure, the connection among the family members getting better and also provide the good relationship with the surrounding greenery. The individual spaces are covered by a big roof that leans toward a garden in the center of the house. Timber louver surfaces are used to protect the private areas from the outside and also the hash sunlight of the summmer.





















Architects: BHA, SILAA
Year : 2018
Manufacturers : AutoDesk, INAX, Eurowindow, Hongducglass, Philip, Vietceramics
Lead Architects : Nguyen Huu Son Duong, Nguyen Xuan Minh
Design Team : Hoang Thi Van Anh, Pham Viet Anh, Nguyen Vu Hoang, Phung Kim Phuoc, Nguyen Van Quang, Ngo Van Quyen, Tran Thi Hong Thuy
Clients : Pham Quang Phuc, Nguyen Huyen Trang
Engineering : Le Quang Vinh
City : Thành phố Huế
Country : Vietnam