最近在中国,越来越多的农村地区的老房子被改造成以城市居民为对象的度假酒店。这个项目位于云南省白沙村,那里是一个拥有纳西族传统房屋的田园地区。
An increasing number of old houses in rural area are being renovated to resort hotels targeting for city dwellers recently in China. This project is located in Baisha Village, Yunnan Province, where is an idyllic rural area with Naxi traditional houses.




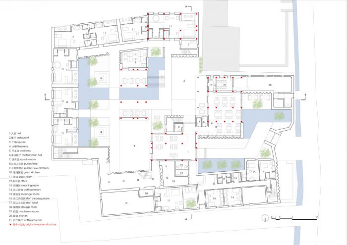
老房子的砖石外墙是由当地的五花石堆砌而成,人们可以在附近看到雄伟的玉龙雪山。我们被要求重新利用现有的四座房屋和正门,同时在它们周围的不规则形状的扩展场地上建造新的建筑。
The masonry façade of the old houses is made by stacking local Wuhua-stones, and people can take a view of the majestic Jade Dragon Snow Mountain nearby. We were requested to reuse the four existing houses and the main gate, also build new buildings in irregular shaped extended site around them.

首先,我们假设现有建筑中只有木质框架结构是暴露的。在这种情况下,我们设置了随机堆放的石块体量组合,以形成各种舒适的平台,用于欣赏雪山和村庄的景色。
First, we assume that the only wooden frame structures of the existing buildings were exposed. Under this condition, we set the combination of randomly stacked stone volumes to make various cozy platforms for enjoying the view of the snow mountain and the village.
另一方面,屋顶从现有的4个部分开始有规律地排列,以便让建筑与周围的传统环境相协调。因此,裸露的木质框架结构和墙面与坚硬的五花石外壳相比,轻盈和沉重形成了鲜明的对比。
On the other hand, the roofs are regularly arranged starting from the existing 4 sections so as to let buildings harmonize with the traditional surrounding environment. As a result, the exposed wooden frame structures and wall surfaces were compared with the hard outer shell of Wuhua-stones, so the lightness and the heaviness form a sharp contrast.

为了使镂空的五花石外墙既有漂浮感又有庄重感,每块石头的平面都被做成梯形,以掩盖墙面上的层叠线。客房内及走廊眼处的采光墙采用了当地的东巴纸,并安装了层次分明的木质百叶窗以适度压制光线。
For the external hollow Wuhua-stone wall to have the both of floating feeling and solemn presence, the plane of each stone was made trapezium to conceal the laminated line on the wall surface. The light wall in guestrooms and at eye-stop of corridor was made of local material Donba paper, and a gradation wooden louver was installed to suppress the light moderately.


使用当地材料插入新的想法,与旧的记忆,如陈旧的木结构或粗糙的砖石墙,形成反差。用单纯的怀旧保存,只是为了在时空坐标上绘制一个点。为了让记忆以一种螺旋式的方式连接过去和未来,我们主动在这个建筑中叠加新的和旧的时间和空间。
Insert new thoughts using local materials counter to old memories such as aged wooden structures or rough masonry walls. With mere nostalgic preservation, it is only to plot a point in the space-time coordinates. For memories to connect the past and the future in a spiral way, we initiatively overlay new and old times and spaces in this architecture.


























































Interior Designers: Tsutsumi & Associates
Area : 2482 m²
Year : 2017
Photographs :Hiromatsu, Yuming Song (Beijing Ruijing Photo)
Manufacturers : LURAIN, PG, 东陶, 冠军瓷砖, 西顿照明
Lead Architects : Tsutsumi & Associates (Yoshimasa Tsutsumi, Siming Li, Weiwei Shi, Lin Song, Jun Cu)
Facility Planning : Beijing Dongzhouji Technical Consultation, Hoshiaki Ishikawa, Katsunori Takebayashi, Ryuji Yamazaki
Structural Design : Beijing Yanhuang International Architecture & Engineering Co.Ltd, Liansheng Bao, Yanhui Liu
Lighting Design : Lightmoment Co.Ltd, Keigo Tanaka, Yoshihiro Kanamori
Construction : Yunnan Lixiang Zhuangshi Sheji Gongcheng Youxian Gongsi
Client : Tsingpu
Production : Shaoyin Tian
City : Lijiang
Country : China